Local commercial
1214 Vernier
A convenir
À Vernier, découvrez ce dépôt et bureau à louer dans un bâtiment neuf, offrant un total de 120 mètres carrés de dépôt et 110 mètres carrés de bureau avec WC. Le dépôt mesure environ 16 mètres sur 7,5 mètres, avec une hauteur de 4,65 mètres, offrant ainsi un espace spacieux et fonctionnel pour vos activités professionnelles. Situé à proximité de toutes les commodités, cet emplacement est idéal pour votre entreprise. Les charges mensuelles de 450 CHF comprennent l'électricité, le chauffage et l'accès à Internet, vous garantissant ainsi un environnement de travail confortable et connecté. De plus, des places de parking extérieur sont disponibles à la location pour 180 CHF par mois en supplément, offrant une solution pratique pour vos déplacements professionnels. Ne manquez pas cette opportunité de louer un espace polyvalent et moderne pour développer votre entreprise. Contactez-nous dès maintenant pour plus d'informations et pour organiser une visite.
Bureau
492 m²
492 m²
CHF 280.-/m²/an
Route de Peney 2, 1214 Vernier
2ème étage
A convenir
Surface au sein d'un centre administratif et commercial
Implanté à Vernier, le centre administratif et commercial ARCenter attire toujours plus d'entreprises. A proximité d'importants axes routiers, le centre bénéficie également d'une excellente desserte en transport public, par la route et par le rail. Le bâtiment, Minergie, propose une surface semi-aménagée, lumineuse et traversante de 492 m² au 2ème étage offrant une entière flexibilité d'aménagement. L'espace de coworking, au 1er étage, complète l'offre du centre avec des salles de conférence en location. Descriptif de la surface : - Ascenseur - Open space - Faux plancher technique - Plafond actif - Sanitaires H/F et PMR Possibilité de louer des places de parking en sous-sol. Contact pour les visites: Fabiola Christe +41 22 319 89 24 commercial@comptoir-immo.ch
Bureau
687 m²
687 m²
CHF 280.-/m²/an
Route de Peney 2, 1214 Vernier
2ème étage
A convenir
Surfaces au sein d'un centre administratif et commercial
Implanté à Vernier, le centre administratif et commercial ARCenter attire toujours plus d'entreprises. A proximité d'importants axes routiers, le centre bénéficie également d'une excellente desserte en transport public, par la route et par le rail. Le bâtiment, Minergie, propose une surface aménagée, lumineuse et traversante de 687 m² au 2ème étage. L'espace de coworking, au 1er étage, complète l'offre du centre avec des salles de conférences en location. Descriptif de la surface : - 2 entrées indépendantes - 3 ascenseurs - 3 open space - 4 salles de conférence - 9 bureaux cloisonnés - 2 locaux IT - 1 local stockage - Faux plancher technique - Boites de sol - 2 cuisines - Plafond froid - 6 sanitaires dont un avec une douche - Douche et vestiaire au 2ème sous-sol 20 places de parking en sus viennent compléter ce bien. Contact pour les visites: Fabiola Christe +41 22 319 89 24 commercial@comptoir-immo.ch
Bureau
435 m²
435 m²
CHF 280.-/m²/an
Route de Peney 2, 1214 Vernier
3ème étage
A convenir
Surfaces au sein d'un centre administratif et commercial
Implanté à Vernier, le centre administratif et commercial ARCenter attire toujours plus d'entreprises. A proximité d'importants axes routiers, le centre bénéficie également d'une excellente desserte en transport public, par la route et par le rail. Le bâtiment, Minergie, propose une surface aménagée, lumineuse et traversante de 435 m² au 3ème étage. L'espace de coworking, au 1er étage, complète l'offre du centre avec des salles de conférence en location. Descriptif de la surface : - Ascenseur - Bureaux cloisonnés - Open space - Faux plancher technique - Boites de sol - Moquette au sol - Cuisine équipée - Plafond froid - Sanitaires Possibilité de louer des places de parking en sous-sol. Contact pour les visites: Fabiola Christe +41 22 319 89 24 commercial@comptoir-immo.ch
Bureau
2'568 m²
2'568 m²
CHF 67'868.-/mois
Route de Peney 2 -4 ARCENTER, 1214 Vernier
1er étage
A convenir
À LOUER – Bureaux modulables de 2'759 m² au coeur de l'ARCENTER | Vernier
Implantez votre entreprise dans un environnement international de premier plan, au sein d'un centre administratif high-tech, dynamique et multifonctionnel. ARCENTER – Un pôle d'affaires stratégique et attractif Idéalement situé à Vernier, au coeur d'un quartier en plein essor, ARCENTER accueille déjà des acteurs majeurs tels que : - SANOFI-AVENTIS - Centre de Biométrie de l'État de Genève - BG Ingénieurs Conseils SA - Centre Médical de Vernier Le bâtiment bénéficie également d'un centre commercial intégré au rez-de-chaussée, regroupant Migros, Denner, Galenicare, Peggy Sage, Valora, Zebra, ainsi que de nombreux services : restauration, cosmétique, optique, coiffure, mode, etc. Une surface clé en main – Entièrement agencée : Au 1er étage, cette surface moderne et fonctionnelle offre une configuration optimale pour les entreprises exigeantes : - Bureaux individuels prêts à l'emploi - Salles de conférence équipées - Grande réception professionnelle -...
Bureau
687 m²
687 m²
CHF 16'890.-/mois
Route de Peney 2 -4 ARCENTER, 1214 Vernier
2ème étage
A convenir
Surface de bureaux à louer – 687 m² – Centre ARCenter, Vernier
Au coeur de Vernier, le centre administratif et commercial ARCenter séduit de plus en plus d'entreprises grâce à son emplacement stratégique et son environnement professionnel de qualité. Emplacement privilégié & parfaitement connecté Situé à proximité immédiate des principaux axes routiers, ARCenter bénéficie d'une excellente accessibilité : - Transports publics : Bus 6 & 19, gare de Vernier à quelques minutes à pied - À seulement 10 minutes de l'Aéroport International de Genève - - Accès rapide à l'autoroute Une surface lumineuse, flexible et moderne Au 2ᵉ étage d'un bâtiment Minergie parfaitement entretenu, découvrez une surface traversante semi-aménagée de 687 m², idéale pour les entreprises recherchant modularité et confort. Caractéristiques techniques : - 2 entrées indépendantes, - 3 ascenseurs, - Faux plancher technique avec boîtes de sol, - Plafond froid pour un confort thermique optimal, - Douche et vestiaire au 2e sous-sol...
Bureau
492 m²
492 m²
CHF 12'095.-/mois
Route de Peney 2, 1214 Vernier
2ème étage
A convenir
Bureaux modernes à louer – 492 m² au coeur de Vernier – Centre ARCenter
Installez votre entreprise dans un environnement professionnel en plein essor, au sein du centre administratif et commercial ARCenter, un lieu prisé par les entreprises dynamiques à la recherche d'accessibilité, de confort et de flexibilité. Emplacement stratégique & ultra connecté Idéalement situé à Vernier, ARCenter bénéficie d'une accessibilité optimale : - Transports publics : lignes de bus 6 & 19, gare de Vernier à quelques minutes - Aéroport international : à 10 minutes en bus - Autoroute : à proximité immédiate - Proximité de commerces, restaurants et services Un cadre de travail durable et lumineux : Située au 2ème étage d'un immeuble Minergie, cette surface traversante de 492 m² est baignée de lumière naturelle et entièrement modulable selon vos besoins. Un cadre idéal pour des bureaux ouverts, salles de réunions ou des espaces collaboratifs. Caractéristiques de la surface : - Open space flexible - Ascenseur - Faux plancher technique pour...
Bureau
450 m²
450 m²
CHF 11'063.-/mois
Route de Peney 2 -4 ARCENTER, 1214 Vernier
3ème étage
A convenir
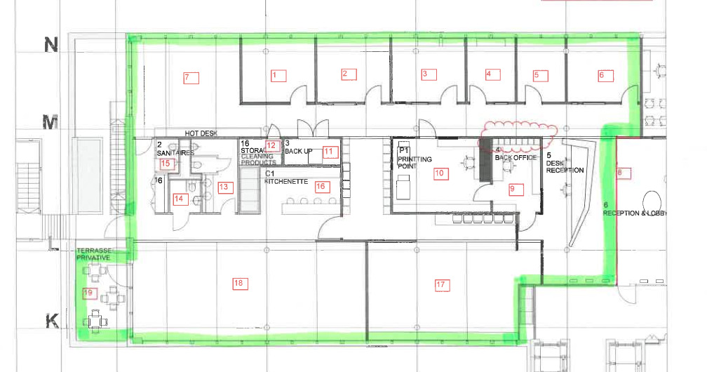
À louer – Surface de bureaux moderne de 450 m² avec terrasse privative | ARCenter – Vernier
Installez votre entreprise dans un cadre dynamique et parfaitement connecté, au sein d'un pôle d'affaires en pleine expansion. Situé au coeur de Vernier, le centre administratif et commercial ARCenter ne cesse d'attirer des entreprises de tous horizons grâce à ses infrastructures de qualité, son accessibilité exceptionnelle et son environnement stimulant. Un emplacement stratégique & parfaitement desservi : - À deux pas des axes routiers majeurs de la région - Transports publics efficaces : bus n°6 et 19, gare CFF de Vernier - Aéroport international à seulement 10 minutes en bus - Accès rapide à l'autoroute et au centre-ville de Genève Une surface fonctionnelle, lumineuse et modulable – env. 450 m² au 3ᵉ étage : Dans un bâtiment certifié Minergie, cette surface traversante et baignée de lumière naturelle offre un environnement de travail agréable et évolutif. Aménagements & caractéristiques : - Ascenseur - 2 grands open spaces - 6 bureaux...

Local commercial
CHF 4'269.-/mois
Chemin de Mouille-Galand 3, 1214 Vernier
A convenir
WESTPARK : Dans un immeuble de standing, surface de Dépôt de 394 m2 au 3ème sous-sol
Au coeur du village de Vernier, le nouveau business center West Park est un projet de trois bâtiments de cinq étages totalisant environ 23'000 m2 destinés à l'usage de commerces, de bureaux et d'hôtellerie. Le bâtiment B, qui fait l'objet de la location, est entouré d'une part par le bâtiment A dédié à la chaîne hôtelière Appart'City, et d'autre part par le bâtiment C qui accueille fondations, associations et un promoteur immobilier. Le dépôts est idéalement situés au 3ème sous-sol, accessibles à l'aide des monte-charges à proximité. 20 places de parking à disposition au 3ème sous-sol à CHF 150.-/mois. Les prix indiqués sont actuellement indicatifs et ne sauraient constituer une offre ferme. Photos non contractuelles.
Bureau
CHF 4'400.-/mois + ch.
Route, 1214 Vernier
2ème étage
Immédiatement
Spacieux bureaux à quelques minutes de l'aéroport
À quelques pas du centre commercial ARCenter et à proximité des commodités ainsi que des axes autoroutiers, nous vous proposons une vaste surface de bureaux de 230 m² située au 2e étage. Emplacement idéal à quelques minutes de l'aéroport et des transports en commun. Ce bel espace dispose de deux entrées indépendantes et est accessible par trois ascenseurs. Il comprend un open spaces, 2 salles de conférence, 1 bureau cloisonné, une kitchenette, un lounge et une salle de présentation ainsi que 2 sanitaires. De plus, des douches et un vestiaire sont disponibles au 2e sous-sol. Une belle opportunité à ne pas manquer.
Bureau
CHF 8'050.-/mois + ch.
Route, 1214 Vernier
2ème étage
Immédiatement
Bureaux spacieux à louer, emplacement stratégique proche de l'aéroport.
À quelques pas du centre commercial ARCenter et à proximité des commodités ainsi que des axes autoroutiers, nous vous proposons une vaste surface de bureaux de 420 m² située au 2e étage. Emplacement idéal à quelques minutes de l'aéroport et des transports en commun. Ce bel espace dispose de deux entrées indépendantes et est accessible par trois ascenseurs. Il comprend un open spaces, 2 salles de conférence, 5 bureaux cloisonnés, 2 locaux IT, 1 local de stockage, une cuisine et 3 sanitaires, dont un avec douche. De plus, des douches et un vestiaire sont disponibles au 2e sous-sol. Une belle opportunité à ne pas manquer.












































































