Bureau
Rue des Sablières 5, 1242 Satigny
2ème étage
Immédiatement
Ces locaux lumineux et modulables offrent un cadre idéal pour une activité professionnelle. Situés dans une zone industrielle bien desservie, ils bénéficient d’un accès facile et d’un environnement dynamique Surface Env. 205 m² Type Bureaux - 2ème étage Configuration 3 grands ‘open space’, dont une salle de conférence pour 15 p Sanitaires Toilettes communes dans le couloir Parking Places de parkings disponibles et incluses dans le prix (Places non nominatives) Loyer mensuel CHF 2'255.- charges incluses (eau chaude et chauffage) Disponibilité A partir du 1er Janvier 2026
Arcade
CHF 5'918.-/mois
Route d'Aire-la-Ville 229 SATIGNY CENTRE, 1242 Satigny
A convenir
Arcade de 212 m2 à Satigny Centre
Au coeur du village de Satigny, dans le récent Satigny Centre, arcade neuve de 212 m2. Cette surface convient particulièrement pour des activités de santé, fitness et bien être mais également pour décoration, création, atelier artistique, etc. La restauration n'est pas admise dans ces locaux. Facilement accessible à pied et en transports publics. Un parking public est à disposition devant le centre.
Arcade
CHF 2'792.-/mois
Route d'Aire-la-Ville 229 SATIGNY CENTRE, 1242 Satigny
A convenir
Arcade de 100 m2 à Satigny Centre
Au coeur du village de Satigny, dans le récent Satigny Centre, arcade neuve de 100 m2. Cette surface convient particulièrement pour des activités de santé, fitness et bien être mais également pour décoration, création, atelier artistique, etc. La restauration n'est pas admise dans ces locaux. Facilement accessible à pied et en transports publics. Un parking public est à disposition devant le centre.
Bureau
381 m²
381 m²
CHF 18.-/mois
Pré-de-la-fontaine 19, 1242 Satigny
4ème étage
A convenir
Bureaux, locaux administratifs de 381m2 à louer à Satigny
Idéalement situé à proximité de l'autoroute Transports publics à 5 minutes - Gare de Zimeysa Distribution modulable Accès facile pour les livraisons Très lumineux Hauteur sous plafond : 2.90 m Sanitaires H/F Chauffage et rafraîchissement de l'air Gaines de ventilation Monte-charge privatif Nombreuses places de parc Proximité des douanes Disponibilité : immédiate Loyer : CHF 210.-/m2/an HT. HC. Adresse : Rue pré-de-la-Fontaine 19, CH-1242 Satigny
Bureau
400 m²
400 m²
CHF 18.-/mois
Pré-de-la-fontaine 19, 1242 Satigny
1er étage
A convenir
Bureaux, locaux administratifs de 400m2 à louer à Satigny
Idéalement situé à proximité de l'autoroute Transports publics à 5 minutes - Gare de Zimeysa Distribution modulable Accès facile pour les livraisons Très lumineux Hauteur sous plafond : 2.90 m Sanitaires H/F Chauffage et rafraîchissement de l'air Gaines de ventilation Monte-charge privatif Nombreuses places de parc Proximité des douanes Disponibilité : immédiate Loyer : CHF 210.-/m2/an HT. HC. Adresse : Rue pré-de-la-Fontaine 19, CH-1242 Satigny
Bureau
373 m²
373 m²
CHF 18.-/mois
Pré-de-la-fontaine 19, 1242 Satigny
5ème étage
A convenir
Bureaux, locaux administratifs de 373 m2 à louer à Satigny
Idéalement situé à proximité de l'autorouteTransports publics à 5 minutes - Gare de Zimeysa Distribution modulable Accès facile pour les livraisons Très lumineux Hauteur sous plafond : 2.90 m Sanitaires H/F Chauffage et rafraîchissement de l'air Gaines de ventilation Monte-charge privatif Nombreuses places de parc Proximité des douanes Disponibilité : immédiate Loyer : CHF 210.-/m2/an HT. HC. Adresse : Rue pré-de-la-Fontaine 19, CH-1242 Satigny
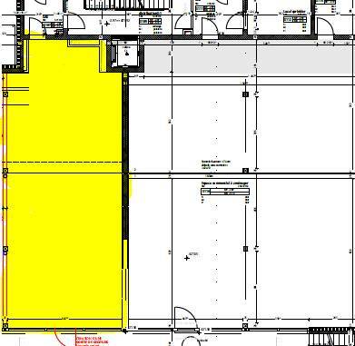
Bureau
337 m²
337 m²
CHF 15.-/mois
Rue des Sablières 5 -7, 1242 Satigny
2ème étage
A convenir
Surface de bureaux/ateliers de 337m2 à Satigny
Grande surface de bureaux/atelier de 337m2 au 2ème étage en plein cur de la zone industrielle de Satigny. Descriptif : - Open Space - Salle de conférence - Cuisine - Sanitaires - Espace archives et informatique La surface est aménageable au gré du preneur. Quelques places de parking sont disponibles au sein du bâtiment.
Arcade
CHF 2'100.-/mois + ch.
Route, 1242 Satigny
Rez-de-chaussée
Immédiatement
Belle surface à exploiter
À seulement trente mètres du centre commercial de Satigny, au rez-de-chaussée d'un immeuble résidentiel, se trouve une vaste arcade immédiatement disponible. Elle propose une variété de surfaces et d'options d'aménagement intérieur, selon les besoins des locataires. Cet espace est parfait pour des open-spaces, du coworking, des fiduciaires, des cabinets comptables, ainsi que pour des activités médicales, paramédicales, sportives ou de fitness, entre autres. Vous bénéficierez d'un accès direct au parking couvert du centre commercial. Satigny est en pleine expansion, avec déjà des établissements tels qu'une pharmacie, un cabinet dentaire, un salon de coiffure et une Coop. De nombreuses options d'accompagnement technique et financier, ainsi que des conseils en agencement, sont également à votre disposition.
Arcade
CHF 3'886.-/mois + ch.
Route, 1242 Satigny
Rez-de-chaussée
A convenir
Idéal profession libérale - activités paramédicales ou sportives
À seulement trente mètres du centre commercial de Satigny, au rez-de-chaussée d'un immeuble résidentiel, se trouve une vaste arcade immédiatement disponible. Elle propose une variété de surfaces et d'options d'aménagement intérieur, selon les besoins des locataires. Cet espace est parfait pour des open-spaces, du coworking, des fiduciaires, des cabinets comptables, ainsi que pour des activités médicales, paramédicales, sportives ou de fitness, entre autres. Vous bénéficierez d'un accès direct au parking couvert du centre commercial. Satigny est en pleine expansion, avec déjà des établissements tels qu'une pharmacie, un cabinet dentaire, un salon de coiffure et une Coop. De nombreuses options d'accompagnement technique et financier, ainsi que des conseils en agencement, sont également à votre disposition.
Entrepôt
CHF 200.-/m²/an
Adresse sur demande, 1242 Satigny
Rez-de-chaussée
Immédiatement
Dépôt de 2200 m2 divisibles dès 1500 m2 à louer à Meyrin - Satigny
Dépôt logistique de 2200 m2 divisibles dès 1500 m2 à louer à Meyrin - Satigny 1- Rez : 1226 m2 - Zone de picking de 450 m2 environ Accès par 4 quais de chargement individuels dont une plateforme élévatrice Hauteur : 3,50 m Chauffage, climatisation - Zone de stockage de 775 m2 environ Hauteur : 16,50 m Charge au sol : 1500 kg/m2 minimum Racks à palettes à reprendre 2- Mezzanine : 293 m2 Accès par monte charge privatif de 500 kg Hauteur : entre 3,30 m et 4,15 m Charge au sol : 500 kg/m2 3- Sous Sol : 650 m2 ou 24 places de parking voitures ou fourgons Accès de plain pied par rampe véhicules Hauteur : 2,20 m 4- Bureaux : 101 m2 4 grands bureaux ou open space Espaces communs : cafétéria, etc.. Disponibilité : 01.01.2025 Loyers : - Rez : CHF 200.-/m2/an HT. HC. - Mezzanine : CHF 180.-/m2/an HT. HC. - Sous Sol : CHF 150.-/m2/an HT. HC. Charges (acompte) : CHF 20.-/m2/an
Dépôt
CHF 210.-/an + ch.
Rue des Sablières, 1242 Satigny
A convenir
Entrepôt logistique de 1'500 m² à Satigny
À louer, un entrepôt logistique de 1'500 m², situé dans une zone industrielle/logistique idéalement desservie à ZIMEYSAVER (Satigny). Cet entrepôt, rare par sa hauteur, offre une hauteur sous plafond de 17 mètres, parfaite pour le stockage en grande hauteur et l'optimisation des espaces. Caractéristiques principales : Rez-de-chaussée : Surface : 1’226 m² Équipé de 3 quais de déchargement avec portes sectionnelles automatiques pour une gestion optimale des flux de marchandises. 1 plateforme élévatrice incluse. Charge au sol : 1,5 T/m² Hauteur de stockage : jusqu'à 17 m Mezzanine : Surface : 293,5 m² Monte-charge disponible Portance : 500 kg/m² Hauteur de stockage : minimum 2,5 m Sous-sol : Surface : 650 m² Loyer : CHF 210.-/m²/an (hors taxes et charges) Acompte sur charges : CHF 20.-/m²/an (hors taxes) Durée du bail : 5 ans Garantie de loyer : 6 mois Activités possibles : Logistique, stockage Disponibilité : Immédiate Excellente accessibilité : Secteur...















































































