Bureau
1 pièce
1 pièce
CHF 3'000.-/mois + ch.
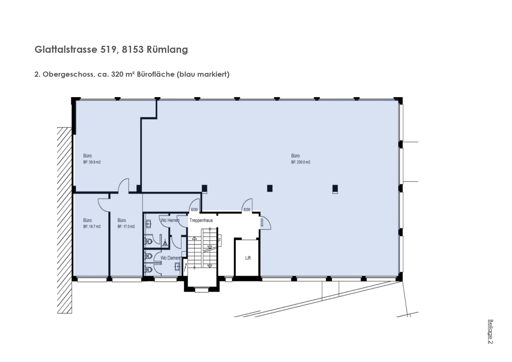
8153 Rümlang
2ème étage
A convenir
Espace commercial attractif avec beaucoup de potentiel à Letten (Rümlang), canton de ZH
Cette unité commerciale bien entretenue, dotée d’un espace de travail spacieux et lumineux, d’une cuisine fonctionnelle et d’une salle de bains, est idéale pour de multiples usages. Elle convient parfaitement à des activités commerciales discrètes telles que des salles de yoga ou de fitness, des bureaux ou une production légère. Le bâtiment dispose d’un ascenseur et de 5 places de parking extérieur, à louer à CHF 40.- par mois. Des commerces et des écoles se trouvent à proximité. L’état général de l’unité commerciale est très bien entretenu. Elle se trouve dans un quartier calme mais central, avec un accès optimal aux infrastructures et aux services. L’équipement de haute qualité, le plan d’aménagement pratique et le cadre paisible offrent des conditions optimales pour un environnement de travail productif. Le chauffage est assuré par des radiateurs. Cette offre immobilière se distingue par: Situation centrale Niveau d’équipement de haute...





























