Bureau
Täfernstrasse 16/16a, 5405 Dättwil AG
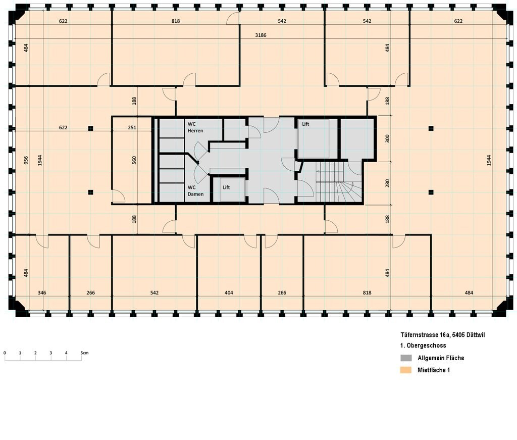
Rez-de-chaussée
Immédiatement
Diverses surfaces de bureaux à louer à partir de 130 m2 - 1 100 m2 Surface utile (bureau/clinique). Situation: Le bâtiment de bureaux se trouve dans la zone industrielle Täfern à Baden-Dättwil. Architecture: Le bâtiment a une belle apparence, avec une façade ventilée en carreaux de céramique blancs. Aménagement intérieur: Les bureaux sont aménagés et dotés de cloisons mobiles individuelles. Les locaux peuvent également être divisés. Les toilettes se trouvent dans le hall d'entrée près des ascenseurs. Des cuisines sont intégrées dans plusieurs surfaces. Accessibilité: Transport public à proximité immédiate. Lignes de bus de la Poste vers Baden HB, Mutschellen, Mellingen Heitersberg, etc. toutes les 15 minutes. L'accès à l'autoroute A1, sortie Baden-Ouest, est à 5 minutes. Parkings souterrains avec stations de recharge pour véhicules électriques à partir de CHF 130,00 / mois. Parkings pour les clients directement sur le terrain. Des espaces de stockage...
Bureau
6.5 Pièces
6.5 Pièces
CHF 3'223.-/mois + ch.
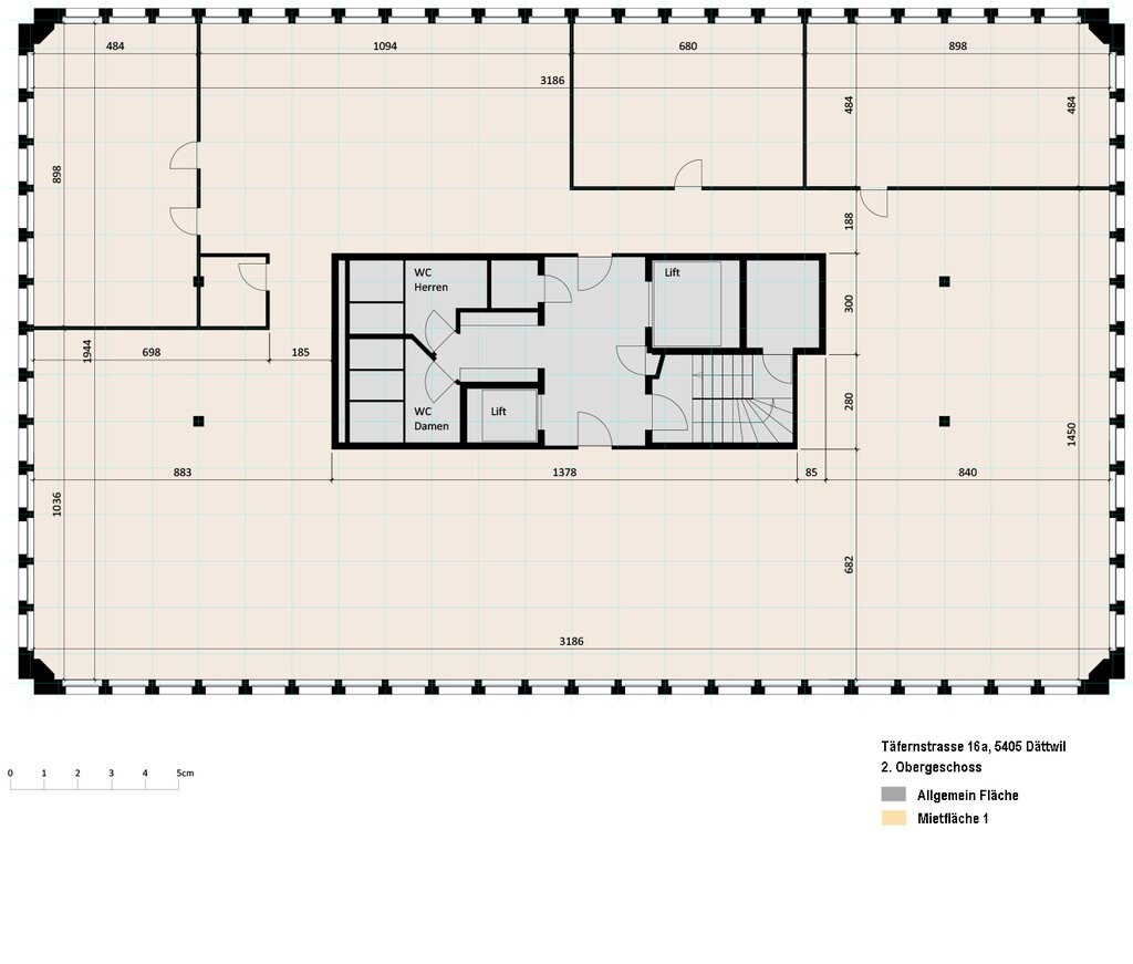
Auf Anfrage, 5405 Dättwil AG
2ème étage
A convenir
SUPERFICIE REPRÉSENTATIVE, MEILLEURE CONNEXION
Le bureau spacieux à Dättwil AG est idéal pour les entreprises qui recherchent une situation centrale avec un accès facile aux transports en commun. Le sol en bois de qualité supérieure et les murs fraîchement peints créent une ambiance moderne. De grandes fenêtres et un plafond de 2,6 m de hauteur créent un environnement de travail lumineux et agréable. La cuisine moderne ouverte est parfaite pour les pauses. Un ascenseur et un accès sans obstacle offrent un confort optimal. Des places de parking en sous-sol et à l’extérieur sont disponibles pour les employés et les visiteurs. Ce bien BETTERHOMES se distingue par les avantages suivants: - situation centrale avec très bonne connexion autoroutière et transports publics - rénové en 2025 - équipement moderne, nouveau sol en bois de qualité supérieure et tout fraîchement peint - plafond de 2,6 m de hauteur et de grandes fenêtres pour une ambiance de travail lumineuse et agréable - cuisine moderne ouverte idéale...
Bureau
6.5 Pièces
6.5 Pièces
CHF 3'223.-/mois + ch.
Auf Anfrage, 5405 Dättwil AG
2ème étage
A convenir
SUPERFICIE REPRÉSENTATIVE, MEILLEURE CONNEXION
Le bureau spacieux à Dättwil AG est idéal pour les entreprises qui recherchent une situation centrale avec un accès facile aux transports en commun. Le sol en bois de haute qualité et les murs fraîchement repeints créent une ambiance moderne. De grandes fenêtres et un plafond de 2,6 m de hauteur créent un environnement de travail lumineux et agréable. La cuisine moderne ouverte est parfaite pour les pauses. Un ascenseur et un accès sans obstacle offrent un confort optimal. Des places de parking en sous-sol et à l’extérieur sont disponibles pour les employés et les visiteurs. Ce bien BETTERHOMES se distingue par les avantages suivants: - situation centrale avec très bonne connexion autoroutière et transports en commun - rénové en 2025 - équipement moderne, nouveau sol en bois de haute qualité et tout fraîchement repeint - plafond de 2,6 m de hauteur et de grandes fenêtres pour une ambiance de travail lumineuse et agréable - cuisine moderne ouverte idéale pour...
Bureau
6.5 Pièces
6.5 Pièces
CHF 3'223.-/mois + ch.
Auf Anfrage, 5405 Dättwil AG
2ème étage
A convenir
SUPERFICIE REPRÉSENTATIVE, MEILLEURE CONNEXION
Le bureau spacieux à Dättwil AG est idéal pour les entreprises qui recherchent une situation centrale avec un accès facile aux transports en commun. Le sol en bois de qualité supérieure et les murs fraîchement peints créent une ambiance moderne. De grandes fenêtres et un plafond de 2,6 m de hauteur créent un environnement de travail lumineux et agréable. La cuisine moderne ouverte est parfaite pour les pauses. Un ascenseur et un accès sans obstacle offrent un confort optimal. Des places de parking souterrain et extérieur sont disponibles pour les employés et les visiteurs. Le mobilier de qualité supérieure, y compris les tables, les armoires et l'éclairage sur mesure, doit être repris et crée un environnement de travail professionnel et représentatif. Cette offre BETTERHOMES se distingue par les avantages suivants: - situation centrale avec un accès très facile à l'autoroute et aux transports en commun - rénové en 2025 - équipement moderne, nouveau sol en bois...
Précisez votre recherche
Locaux commerciaux de 1 pièce à louer à Dättwil AG
Locaux commerciaux de 1.5 pièces à louer à Dättwil AG


























