Local commercial
Mitteldorfstrasse 72, 5033 Buchs AG
1er Sous-sol
A convenir
Bureau
Prix sur demande
Mitteldorfstrasse 37, 5033 Buchs AG
1er étage
A convenir
Divers bureaux à louer
Bureau
CHF 15.-/mois
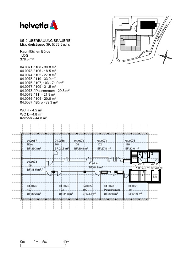
Mitteldorfstrasse 39, 5033 Buchs AG
1er étage
A convenir
local commercial représentatif à louer à Buchs
Commerce
Prix sur demande
Fabrikweg 16, 5033 Buchs
Rez-de-chaussée
Immédiatement
Attraktive Verkaufs-/Gewerbefläche zu vermieten
Wir vermieten per sofort oder nach Vereinbarung eine grosszügige Verkaufs-/Gewerbefläche in Buchs AG. Die Fläche im Erdgeschoss bietet rund 630m² Verkaufs-/ und Lagerfläche plus 233m² Büro-/Nebenflächen. Die Verkaufsfläche kann auf Flächen ab 250m2 unterteilt werden Für Ihre Kunden stehen diverse Parkplätze direkt vor der Liegenschaft zur Verfügung. Weitere Retailmieter in direkter Umgebung sind: Aldi, Otto's, Mac Baby, Rio Getränke sowie Alaturka Meat GmbH. Haben wir Ihr Interesse geweckt? Wir freuen uns auf Ihre Kontaktaufnahme.
Précisez votre recherche
Locaux commerciaux de 1 pièce à louer à Buchs AG
Locaux commerciaux de 1.5 pièces à louer à Buchs AG
























