Bureau
225 m²
225 m²
CHF 275.-/m²/an
Rue de l'Ouriette 178, 1170 Aubonne
A convenir
"Espaces de Bureaux Modernes à Aubonne : Confort et Fonctionnalité"
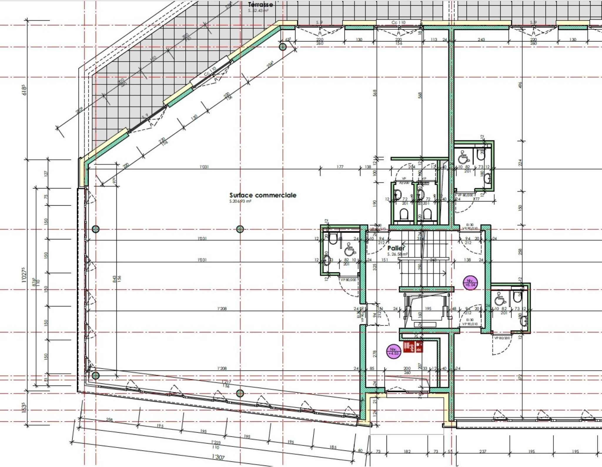
Situé à mi-chemin entre Lausanne et Genève, cet espace bénéficie d'une accessibilité exceptionnelle avec des transports en commun et des commerces à proximité immédiate. Aubonne est un lieu stratégique pour les entreprises, offrant un environnement propice à l'innovation et à la croissance. Caractéristiques des Espaces : - Superficie totale : 4'166 m² - Plateaux de 1'000 m² - Surfaces divisibles dès 225 m² Aménagements Modernes : - Connexion fibre optique pour une connectivité rapide et fiable - Système de rafraîchissement d'air pour un confort optimal - Ascenseurs et monte-charge pour une accessibilité maximale - Stores motorisés pour une gestion facile de la luminosité - Blocs sanitaires H/F/PMR sur chaque plateau - 600 m² de surface de stockage - Espace cafétéria aménagé - 73 places de parking intérieures pour un stationnement sécurisé - 32 places de parking extérieures Ne manquez pas cette opportunité unique de vous...































