Appartement meublé
5.5 Pièces
130 m²
Dorfstrasse 24, 8906 Bonstatten
1er étage
A convenir
Vous recherchez une maison entièrement meublée, super spacieuse avec 4 grandes chambres, parfaite pour partager avec des amis ou des collègues ? Un emplacement de choix en Suisse entre Zurich et Zoug bénéficie de trajets faciles, d’excellentes liaisons de transport et d’un environnement serein. Dorfstrasse 24 (1er étage), 8906 Bonstatten À seulement 30 minutes de Zurich ou de Zoug, en pleine nature, mais bien desservi Points forts de l’appartement : 4 grandes chambres + espace de vie parfait pour 4 professionnels2 salles de bains (1 avec douche, baignoire, WC + WC invités séparés)Cuisine entièrement équipée (micro-ondes, lave-vaisselle, couverts, vaisselle, réfrigérateur tout)Salle à manger confortable et canapéLits king size, canapé-lit, armoires et étagères à chaussuresSmart TV et Wi-Fi haut débitMachine à laver et sèche-linge à l’intérieur de l’appartement Serviettes, rideaux, linge de lit tous fournisAccès par ascenseur Fer à vapeur et planche...
Appartement
3.5 Pièces
3.5 Pièces
70 m²
70 m²
CHF 1'670.-/mois + ch.
Im Späten 27, 8906 Bonstetten
Rez-de-chaussée
A convenir
Charmante Ruhe & Lebensqualität
Per sofort oder nach Vereinbarung vermieten wir diese schöne und moderne 3.5-Zimmerwohnung in Bonstetten. Die Wohnung bietet Ihnen folgende Annehmlichkeiten: - Wohn- und Schlafzimmer mit Parkettboden - Küche, Essbereich und Nasszellen mit pflegeleichtem Plattenboden - Küche mit Glaskeramikherd, Geschirrspüler, Backofen und viel Stauraum für Ihre Küchenutensilien - Badezimmer mit WC, Lavabo, Spiegelschrank und Dusche - Grosser und gemütlicher Balkon zum Verweilen - Eigenes Kellerabteil - Waschküche und Trockenraum zur Mitbenutzung Die Haustierhaltung ist in dieser Liegenschaft erlaubt. Nach Verfügbarkeit kann ein Einstellplatz für CHF 120.00 pro Monat dazu gemietet werden. Umgebung: - Natur & Erholung - Naherholung im Grünen mit Wanderwegen direkt vor der Haustür. - Anschluss an den öffentlichen Verkehr in der Nähe - Nur knapp 15 km liegen zwischen Bonstetten und der Stadt Zürich - ideal für Pendelnde, die Wert auf kurze Wege und grüne Erholung legen. Bitte beachten...
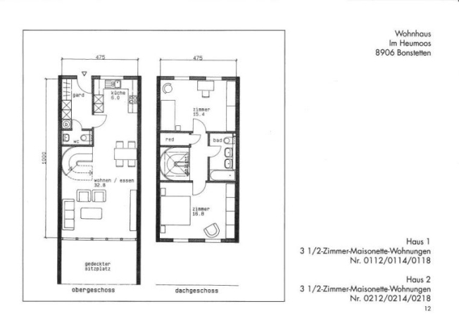
Appartement
3.5 Pièces
3.5 Pièces
CHF 2'410.-/mois
Im Heumoos 25, 8906 Bonstetten
1er étage
A convenir
Pour les amateurs de maisonnettes
Nous louons le bel appartement en duplex au cœur de Bonstetten à partir du 16.06.2025 ou sur rendez-vous.- Plan d’étage spacieux- Toutes les chambres avec parquet- Cuisine avec vitrocéramique et lave-vaisselle- Salle de bain avec baignoire et double lavabo- Toilettes séparées à l’étage inférieur- Vestiaire dans la zone d’entrée- Grand coin salon rond couvert- 250 m de la gare- Emplacement ensoleillé et calme- Les centres coopératifs permettent de faire du shopping juste devant la porte d’entréeDes places de parking peuvent être louées.*Les photos sont Certains d’entre eux ne sont pas spécifiques à un bien immobilier, mais respectent la norme d’aménagement*Avons-nous suscité votre intérêt ? Nous nous réjouissons d’avoir de vos nouvelles.
Appartement
3.5 Pièces
3.5 Pièces
91 m²
91 m²
CHF 2'555.-/mois
Im Heumoos 25, 8906 Bonstetten
1er étage
A convenir







































