Maison
5.5 Pièces
5.5 Pièces
105 m²
105 m²
CHF 688'000.-
CHF 6'552.-/m²
4437 Waldenburg
A convenir
Sehr schönes Haus mit Balkon, Garten, Weitsicht und Ausbaupotenzial
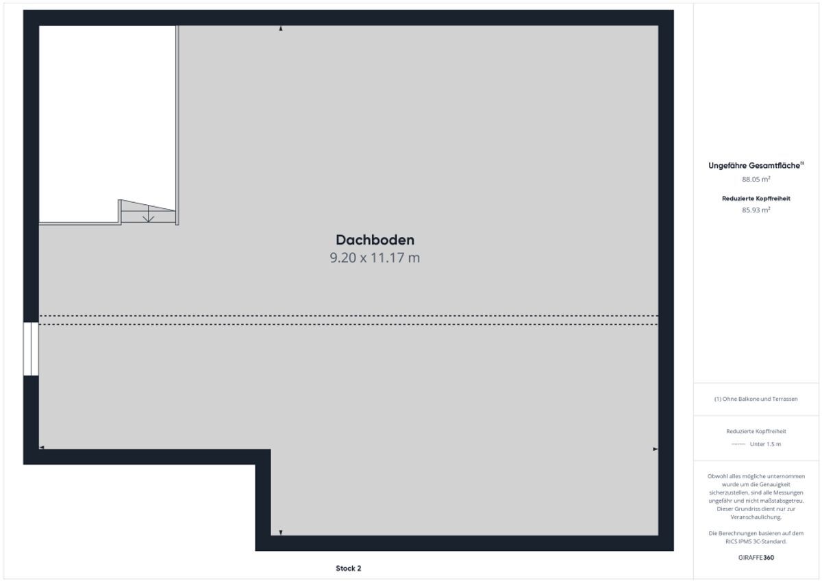
Dieses ruhig gelegene Einfamilienhaus bietet mit dem grossen Garten die perfekte Gelegenheit, sich zu entfalten. Die wunderbare Weitsicht mit Blick auf die Ruine und die ruhige Lage versprechen Erholung in Ihrem neuen Zuhause. . Das Haus kann entweder vom Erdgeschoss oder auch vom ersten Obergeschoss durch die zwei neuen Eingangstüren betreten werden. Im Erdgeschoss links befindet sich das Badezimmer, geradeaus ein Reduit, und auf der rechten Seite liegen zwei beheizte, geräumige Zimmer. Ausserdem gibt es im Erdgeschoss einen Waschraum und einen Technikraum. Bei einem Umbau besteht die Möglichkeit, ein weiteres Zimmer zu realisieren. Im ersten Obergeschoss befindet sich ein Gäste-WC, ein Büroraum, ein Schlafzimmer, ein grosser Wohn-Essbereich mit Zugang zum schönen Balkon mit Sicht in den Garten und auf die Ruine. Weiter bietet das erste Obergeschoss eine geräumige Küche mit genügend Arbeitsfläche. Über ein separates, Nebenzimmer gelangen Sie über eine Treppe auf das...



































