
Maison jumelée
6 Pièces
6 Pièces
180 m²
180 m²
CHF 795'000.-
CHF 4'417.-/m²
2103 Noiraigue
A convenir
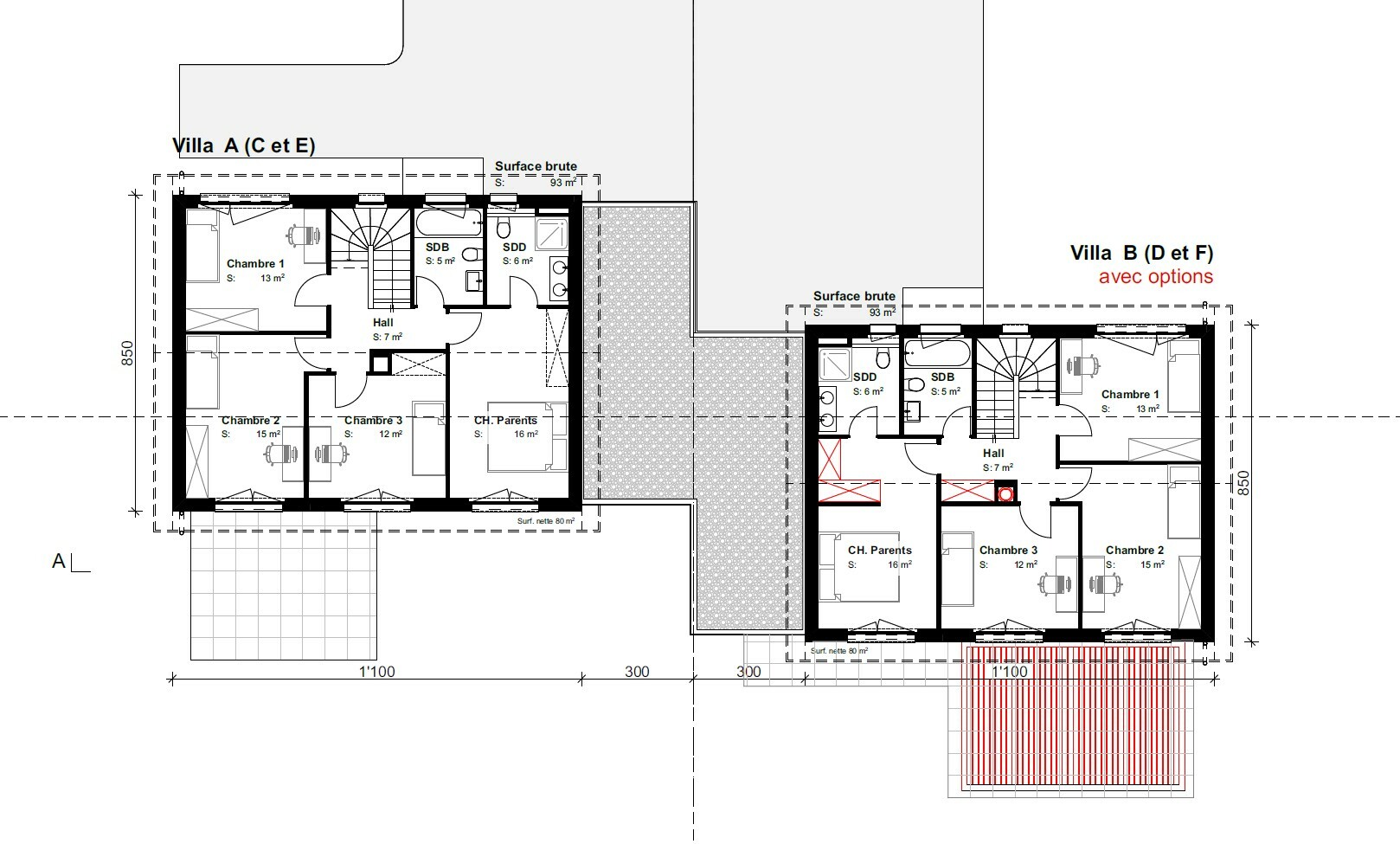
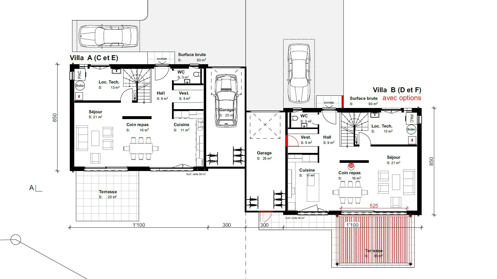
En exclusivité: A vendre sur plan : Deux superbes villas mitoyennes à Noiraigue, l'unité Frs 795'000.-
"À vendre sur plan : Deux villas d'exception à Noiraigue, chacune Frs 795'000.- Rue des Rettes 7 Découvrez l'opportunité unique d'acquérir une villa contemporaine dans un cadre paisible à Noiraigue. Ces deux villas, conçues pour offrir confort et élégance, se distinguent par des espaces généreux et une architecture moderne. Villa 1 : Surface totale de 249 m² (avec sous-sol) et 178 m² de surface habitable (sans sous-sol), pour un cubage de 745 m³. Villa 2 : Surface totale de 250 m² (avec sous-sol) et 180 m² de surface habitable (sans sous-sol), pour un cubage de 750 m³. Chaque villa bénéficie d'un aménagement intérieur optimisé, avec de grandes ouvertures pour une luminosité maximale, des finitions de qualité et un espace extérieur privé pour profiter du cadre naturel environnant. Points forts : vastes espaces de vie, configuration personnalisable selon vos goûts, accès facile aux commodités locales tout en étant entouré de...







