Maison individuelle
6.5 Pièces
6.5 Pièces
232 m²
232 m²
CHF 1'350'000.-
CHF 5'819.-/m²
Badstrasse, 9410 Heiden
A convenir
Heiden: Stilvolles 6.5-Zimmer-Haus an Toplage – Lebensqualität pur
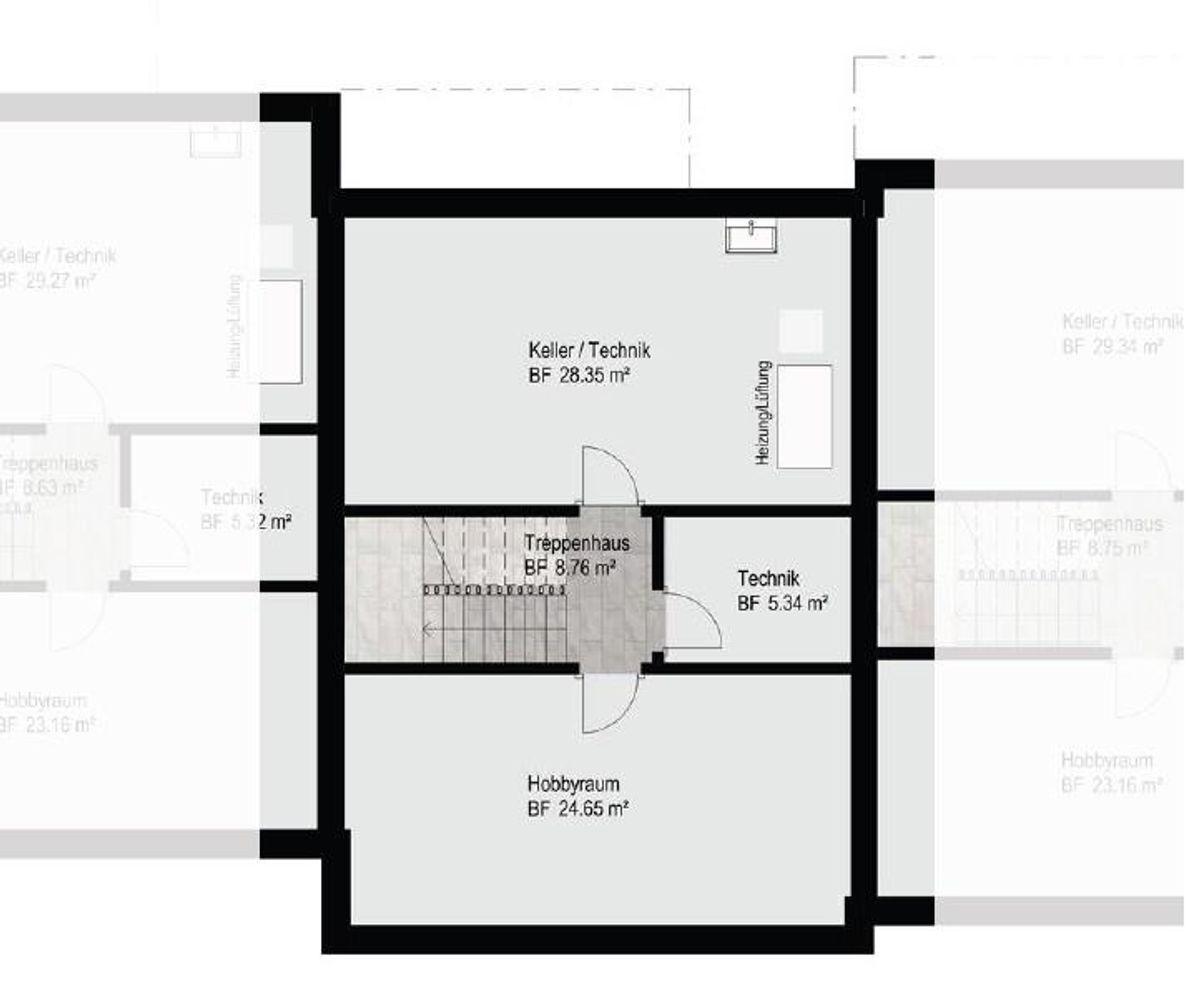
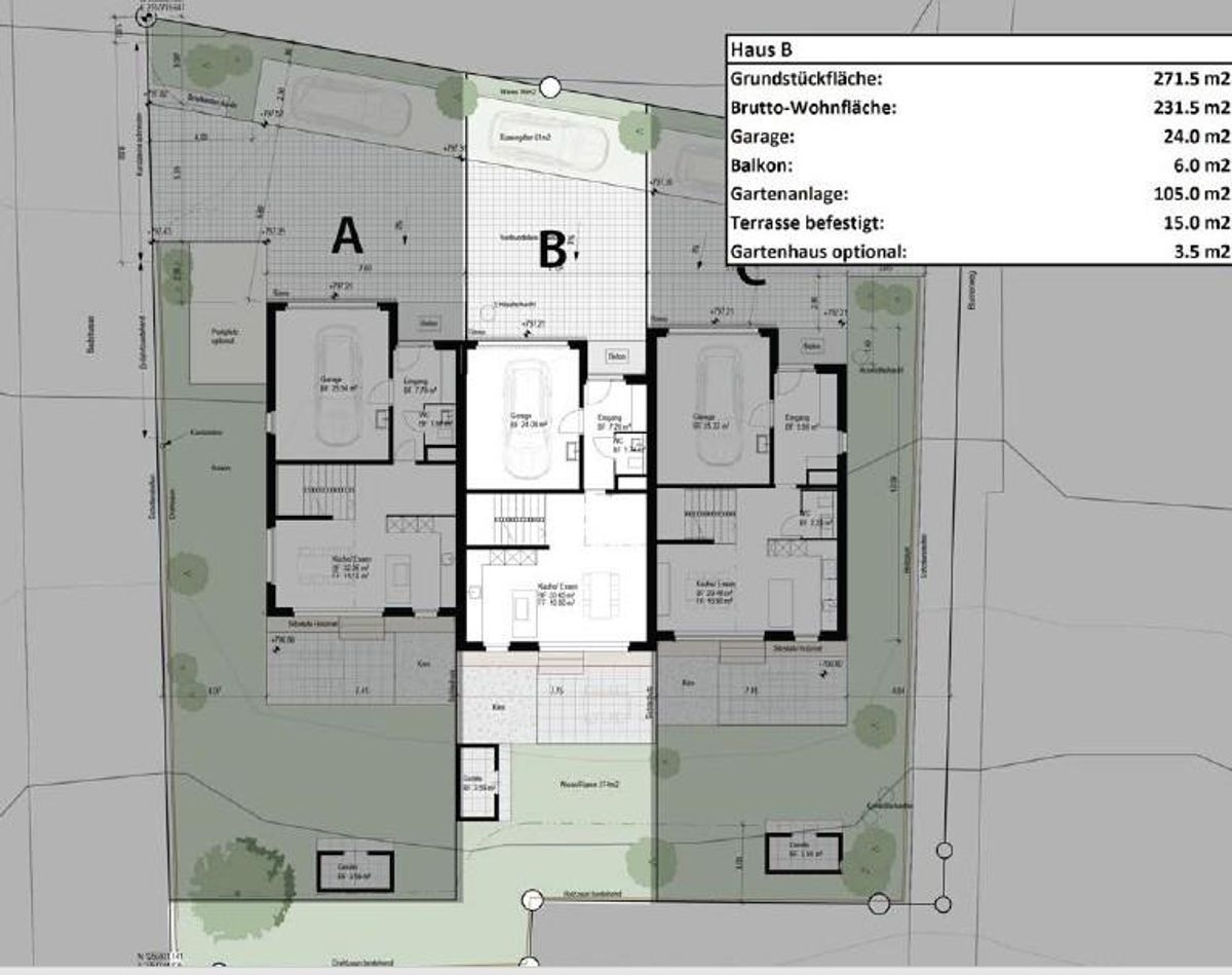
Entdecken Sie an der Badstrasse, im Zentrum von Heiden unser attraktives, **grosszügiges 6.5-Zimmer Mittelhaus**, Baujahr 2024, mit südlichem Flair, eigenem Garten und Gartenhaus an sehr ruhiger, kinderfreundlicher Lage, in 30-er Zone, Nähe Zentrum und Schulen. * _Bruttowohnfläche 231.5 m2_ * _Grundstückfläche 271.5 m2_ * _idyllischer Sitzplatz_ * _offene, topmoderne Küche mit Essbereich, mit Zugang zu Garten_ * _im OG: viel Ruhe und Rückzugsmöglichkeiten:_ _grosse Kinderzimmer und separates Bad_ * _Grosszügiger, lichtdurchfluteter Wohnbereich_ * _hochwertiger Innenausbau_ * _3 Nasszellen_ * _Diverse Einbauschränke_ * _geräumiger Keller 28.35 m2 und Hobbyraum 24.65 m2_ * **_Tiefe Nebenkosten durch eigene Versorgungen wie PV Anlage, Luftheizung und WW, EW- und LWL Anschluss_** * _Garage im Haus, 1Parkplatz im Freien_ Wir freuen uns über Ihren Anruf! Gerne zeigen wir das Haus auch Samstags- und/oder Sonntags.














