Maison individuelle
12 Pièces
12 Pièces
280 m²
280 m²
CHF 3'250'000.-
CHF 11'607.-/m²
CH, 1272 Genolier
A convenir
Villa individuelle avec vue lac
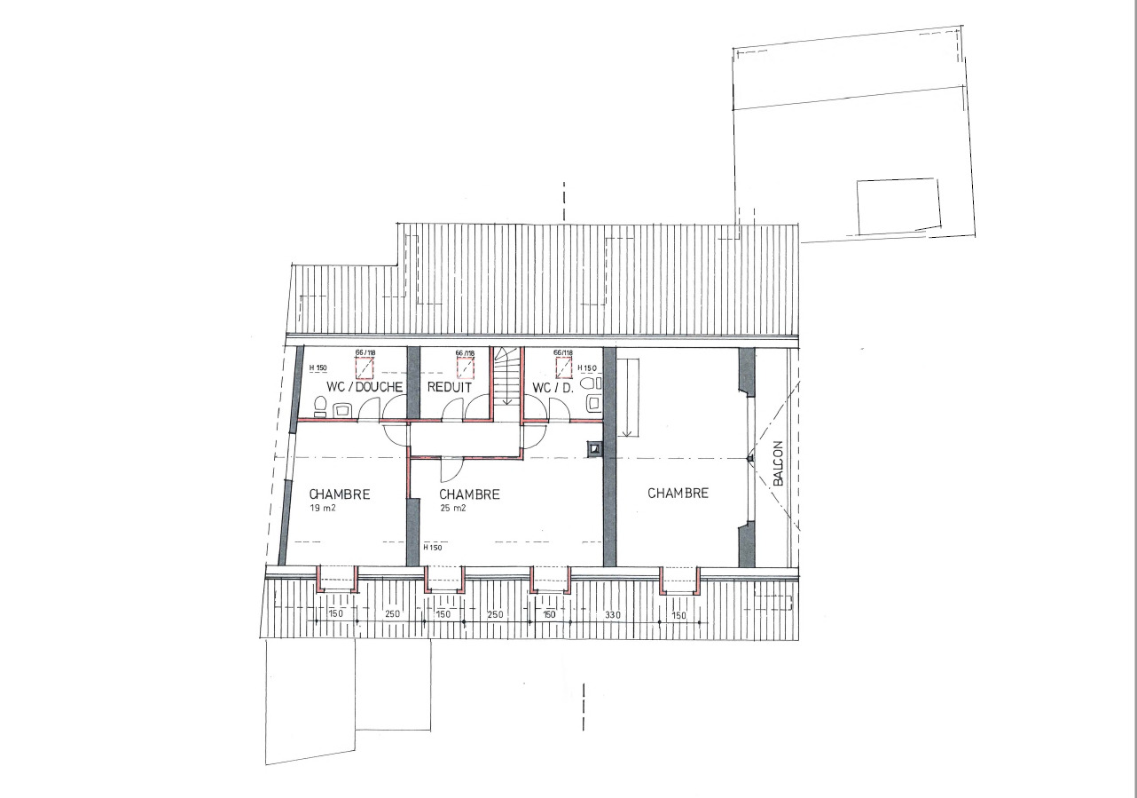
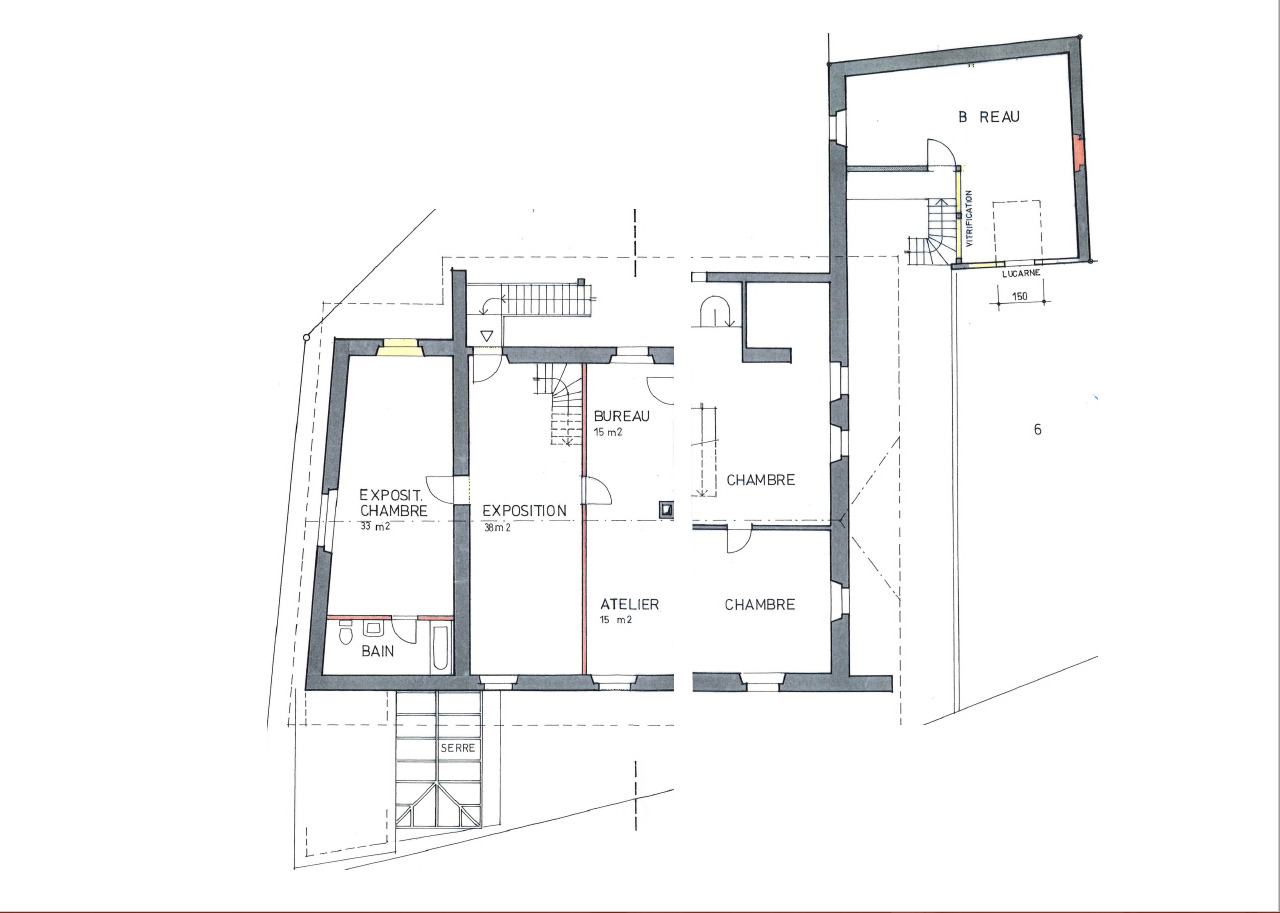
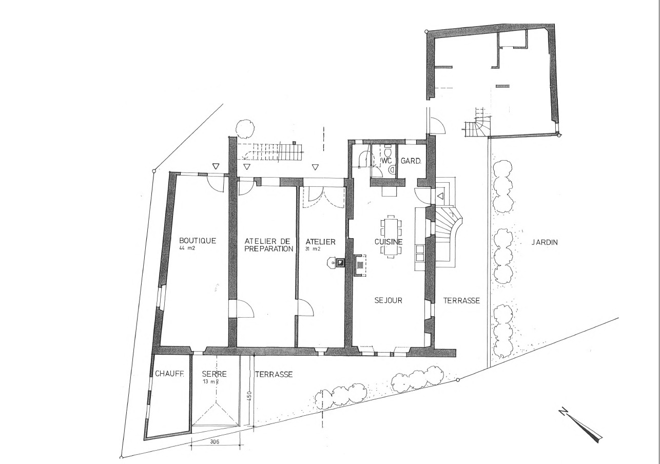
Genolier – Villa individuelle avec vue panoramique sur le lac et les Alpes ! Sur les hauts de Genolier, dans l’un des quartiers les plus prisés, cette villa individuelle d’exception invite à un art de vivre harmonieux entre nature, lumière et élégance. Entourée de verdure, à l’abri des regards et baignée de soleil du matin au soir, elle domine la plaine lémanique et offre une vue à couper le souffle sur le Mont-Blanc et le lac Léman. Rénovée totalement en 2018, la propriété allie le charme d’un ancien chalet revisité et la modernité d’une villa familiale contemporaine. Les matériaux choisis, les tons naturels et les volumes ouverts créent une atmosphère à la fois chaleureuse et raffinée. La maison se déploie sur plus de 315 m² utiles, offrant six chambres, de spacieux espaces de vie et une organisation parfaitement pensée pour une famille. Au rez-de-chaussée inférieur, un salon lumineux avec poêle scandinave, trois chambres, une salle de bains et...
































































