Maison
8 Pièces
8 Pièces
210 m²
210 m²
CHF 2'250'000.-
CHF 10'714.-/m²
Épeisses, 1237 Avully
Immédiatement
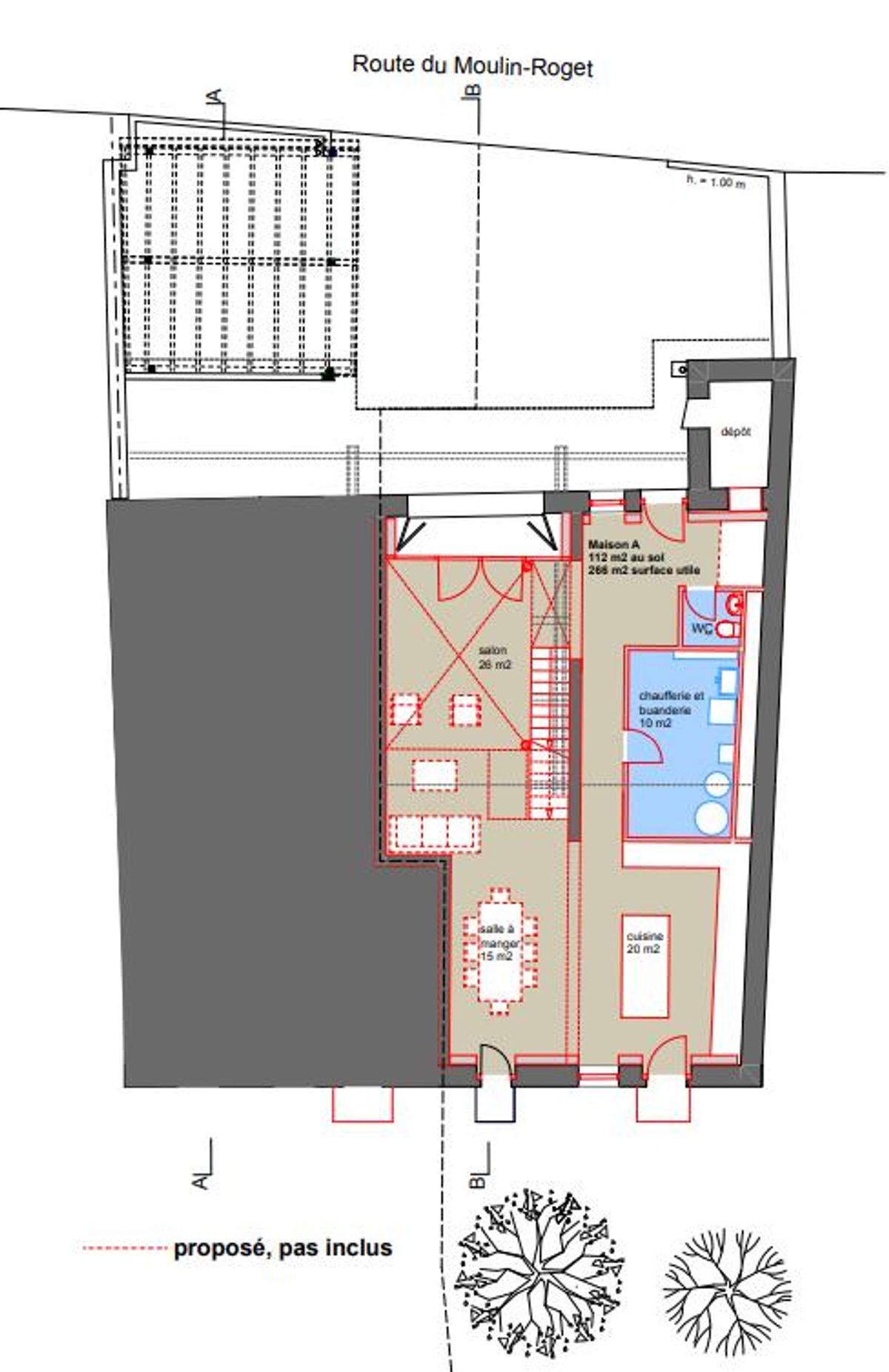
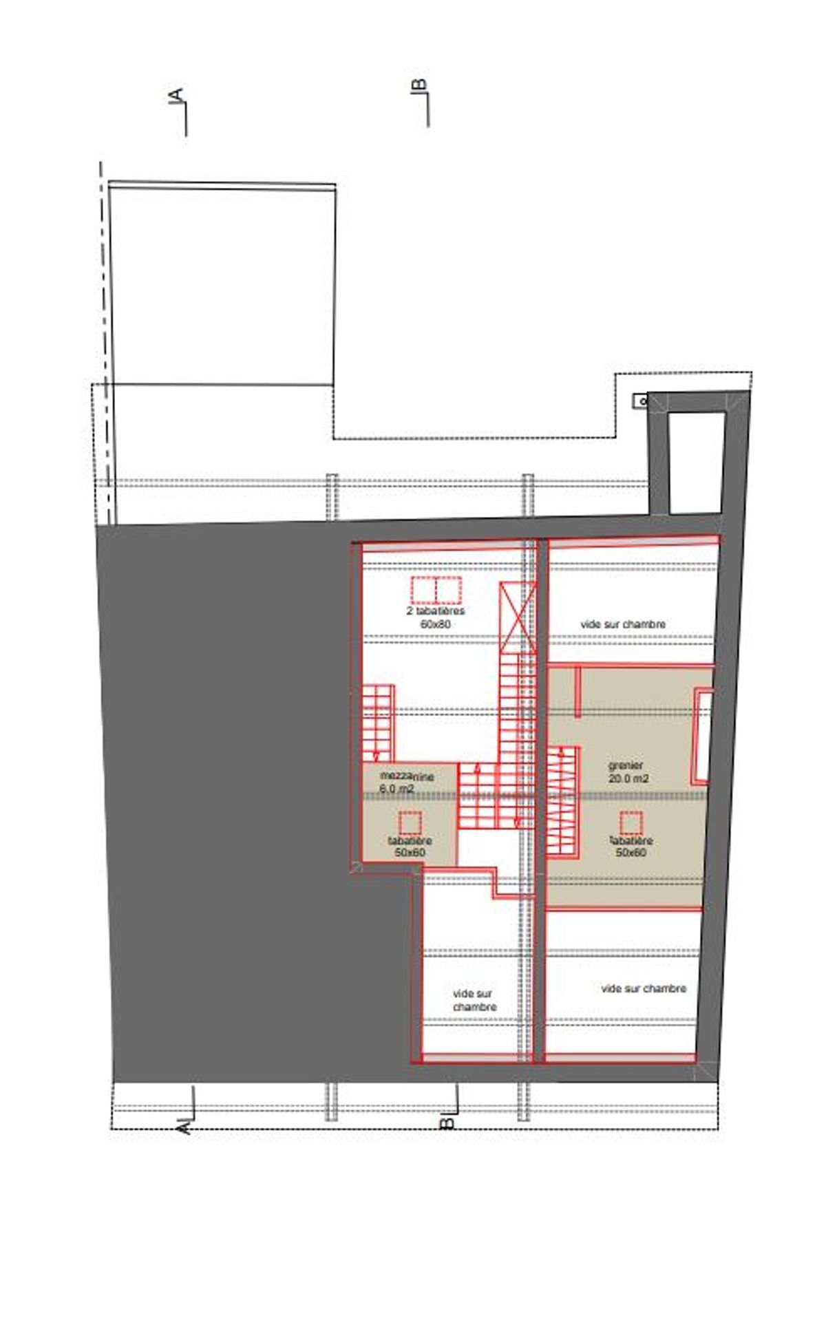
Exclusivité : Maison campagnarde de Charme à Épeisses (Avully)
Située au cœur du paisible hameau d’Épeisses, sur la commune d’Avully, cette magnifique maison campagnarde de 210 m2 habitables allie charme rural et confort moderne. Un véritable havre de paix à seulement quelques minutes de la campagne genevoise. L’accès à la propriété se fait par une allée privative, offrant calme, discrétion et sécurité. Le bien dispose d’un grand espace de stationnement pouvant accueillir jusqu’à 4 véhicules et d’un garage. Le bien est distribué comme suit : Rez-de-chaussée : Spacieux salon avec cheminée, idéal pour les soirées en famille ; Salle à manger conviviale ; Cuisine fermée de style campagnard ; Véranda lumineuse, idéale comme jardin d’hiver ou espace détente (cave à vin, buanderie, local fermé pour rangement ou atelier) ; WC visiteurs ; Étages supérieurs : Trois pièces pouvant servir de chambres à coucher ; Une mezzanine aménagée en bureau ; Deux salles d’eau. À l’avant de la maison, un agréable espace...

























