Nouveau



Attique
5.5 Pièces
5.5 Pièces
~ 167 m²
~ 167 m²
Prix dès CHF 1'540'000.-
CHF 9'222.-/m²
Haute-Nendaz station, 1997 Haute-Nendaz
Attique
Immédiatement
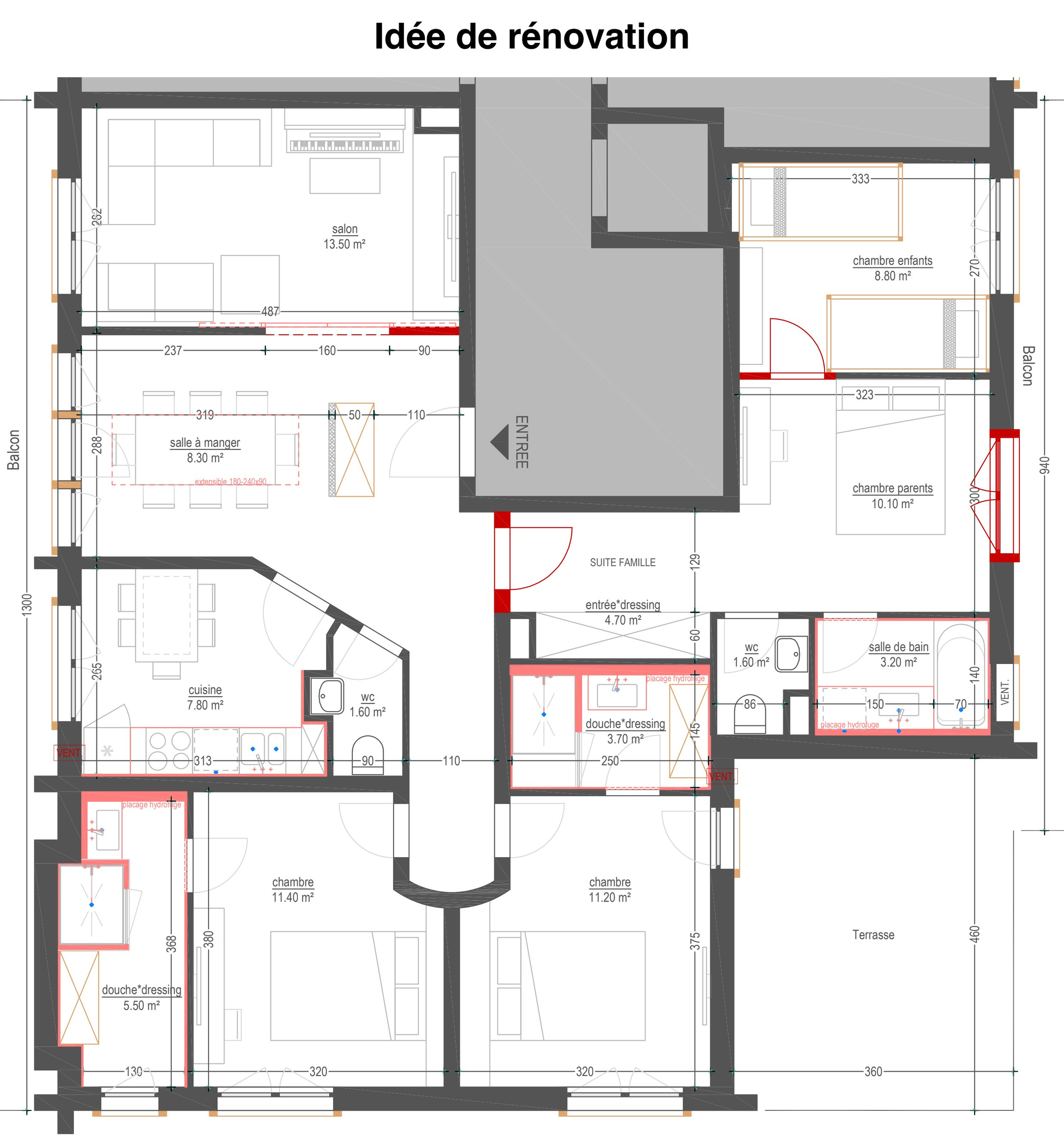
Superbe et luxueux attique traversant en duplex, 5.5 pièces, 167 m2
Ce superbe et luxueux appartement réunit tous les avantages : duplex traversant en attique, situation idéale, ensoleillement optimal, tranquillité, construction et matériaux esthétiques et de haute qualité. Un vrai bijou ! Logement accessible aux non-résidents en Suisse et en tant que résidence secondaire pour vos vacances Appartement duplex de 5.5 pièces traversant et en attique : Surface habitable pondérée d'environ 167 m2 (intérieur 149 m2, balcons 36 m2, garage 19 m2, cave 7 m2) Meubles à discuter 3e étage : Accès indépendant par un escalier extérieur et une terrasse privée sud-ouest Hall d'entrée avec penderie et armoires encastrées Spacieuse chambre principale avec salle de bains attenante (baignoire, WC, lavabo), dressing avec de nombreuses armoires et tiroirs encastrés, grande baie vitrée (stores électriques) ouvrant sur un grand balcon sud-est, fenêtre sud-ouest Chambre double avec armoires encastrées, salle de bains attenante (douche, WC...
Eugène Fournier





























































