Appartement
4.5 Pièces
4.5 Pièces
113 m²
113 m²
CHF 815'000.-
CHF 7'212.-/m²
Rue du Grand Borgeaud 17, 1406 Cronay
A convenir
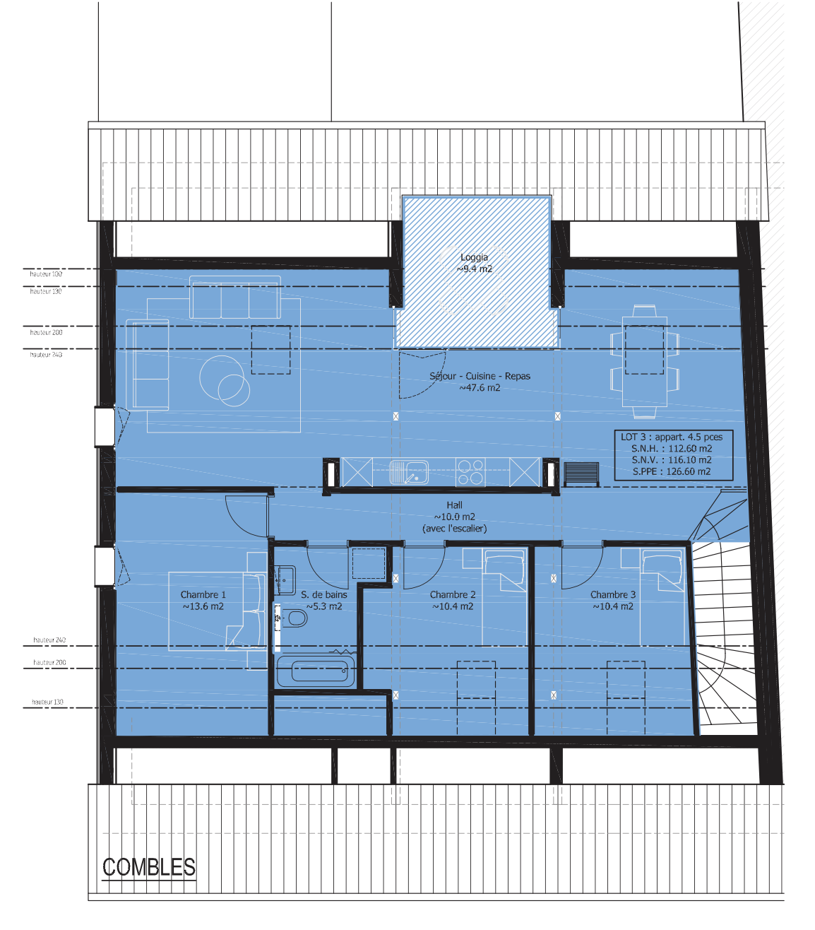
Cronay - Appartement mansardé de 4.5 pièces avec jardin
4,5 pièces dans les combles Située à l'entrée du charmant village de Cronay, ce projet de 3 appartements en PPE profite d'un environnement calme et verdoyant, avec une vue étendue sur les Préalpes fribourgeoises et vaudoises. Cette ancienne maison villageoise sera entièrement rénovée avec soin pour créer des logements spacieux et lumineux. L'architecture extérieure sera préservée et mise en valeur par des matériaux nobles, fidèles au caractère de la construction d'origine. LOT 3 : Le dernier lot, réparti entre le premier étage et les combles, proposera un appartement de 4.5 pièces d'environ 116m². Le premier étage accueillera un WC visiteur. Sous les combles, l'appartement profitera de superbes poutres apparentes. Un grand hall desservira trois chambres à coucher ainsi qu'une salle de bain. Une loggia, un spacieux galetas aménageable et une cave viendront compléter cet ensemble. Un espace de potager privé sera également prévu pour cet appartement. Chaque lot...























































