Immeuble d'habitation
693 m²
693 m²
CHF 3'400'000.-
CHF 4'906.-/m²
Hardstrasse 2, 4455 Zunzgen
Immédiatement
Renditeobjekt in Zunzgen an bester Lage
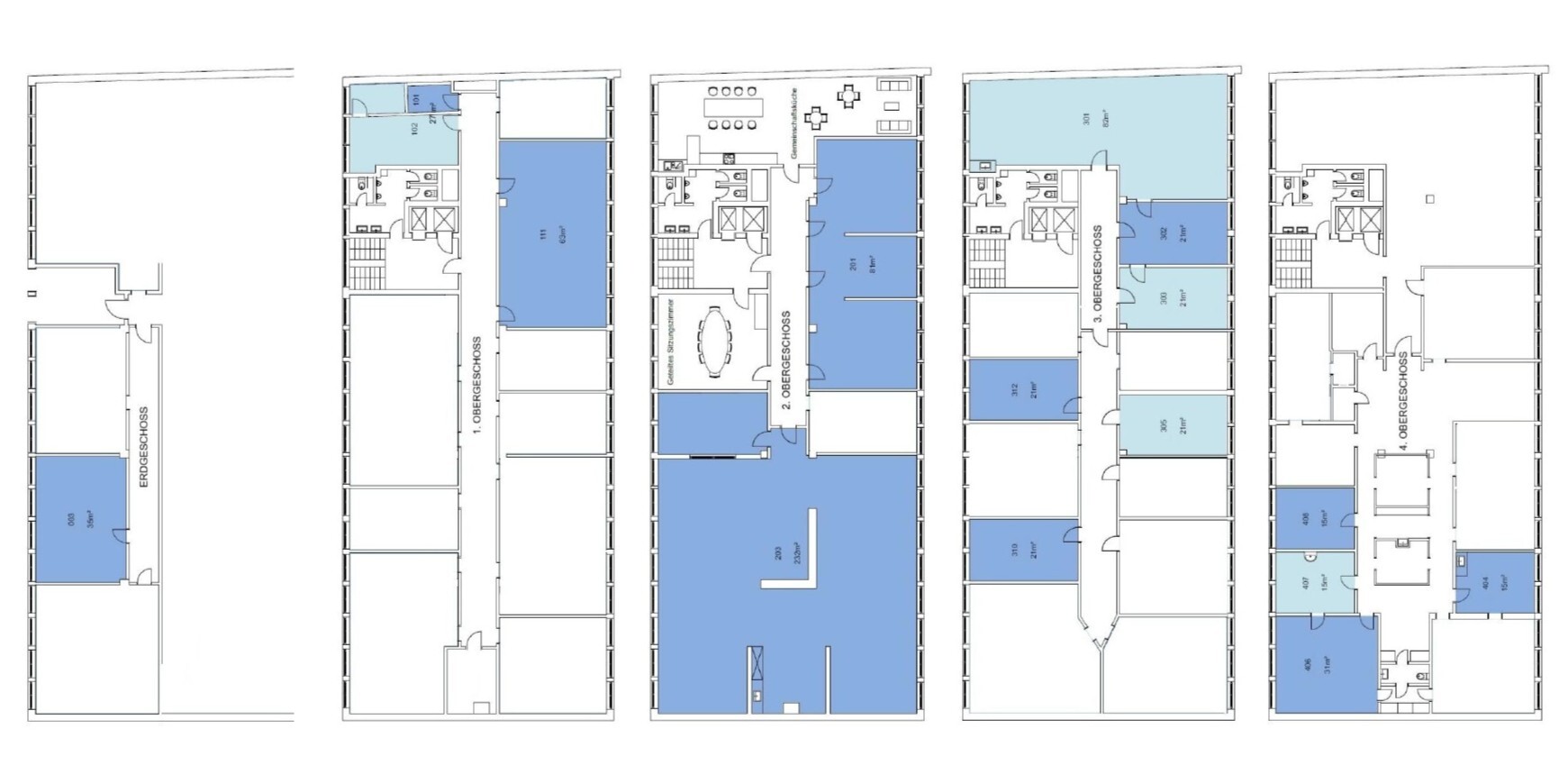
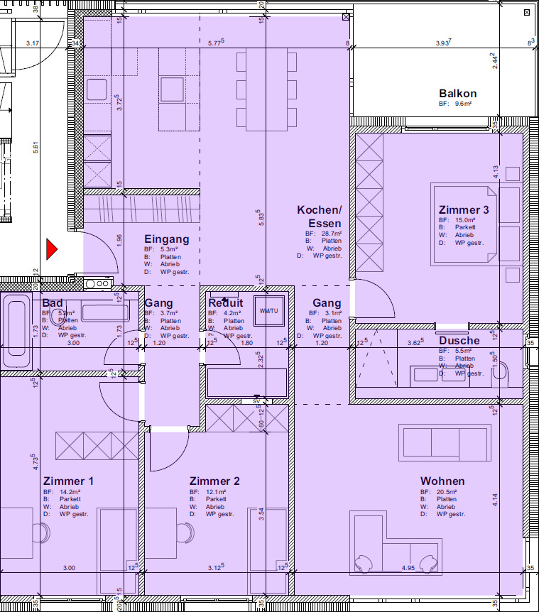
In Zunzgen verkaufen wir ein gepflegtes Doppelmehrfamilienhaus im Dorfzentrum. Es beinhaltet 9 Wohnungen und 11 Aussenparkplätze. Die Liegenschaft ist zurzeit vollvermietet. Sie befindet sich im Dorfkern von Zunzgen nur wenige Schritte entfernt von Restaurants, Einkaufsläden und Geschäften. Ebenfalls in wenigen Gehminuten erreichbar liegt die nächste Bushaltestelle. Das Gebäudensemble befindet sich in der Kernzone. Die Rendite liegt bei ca. 4.4% Die Wohnungen werden fortlaufend erneuert und befinden sich alle in einem den heutigen Anforderungen entsprechenden und guten Zustand. Alle Wohnungen sind mit eigenen Waschmaschinen ausgestattet. Beheizt werden die Wohnungen mit einer Pelletheizung, welche vor wenigen Jahren komplett neu installiert wurde. Wir freuen uns auf Ihre Kontaktaufnahme.






























































































