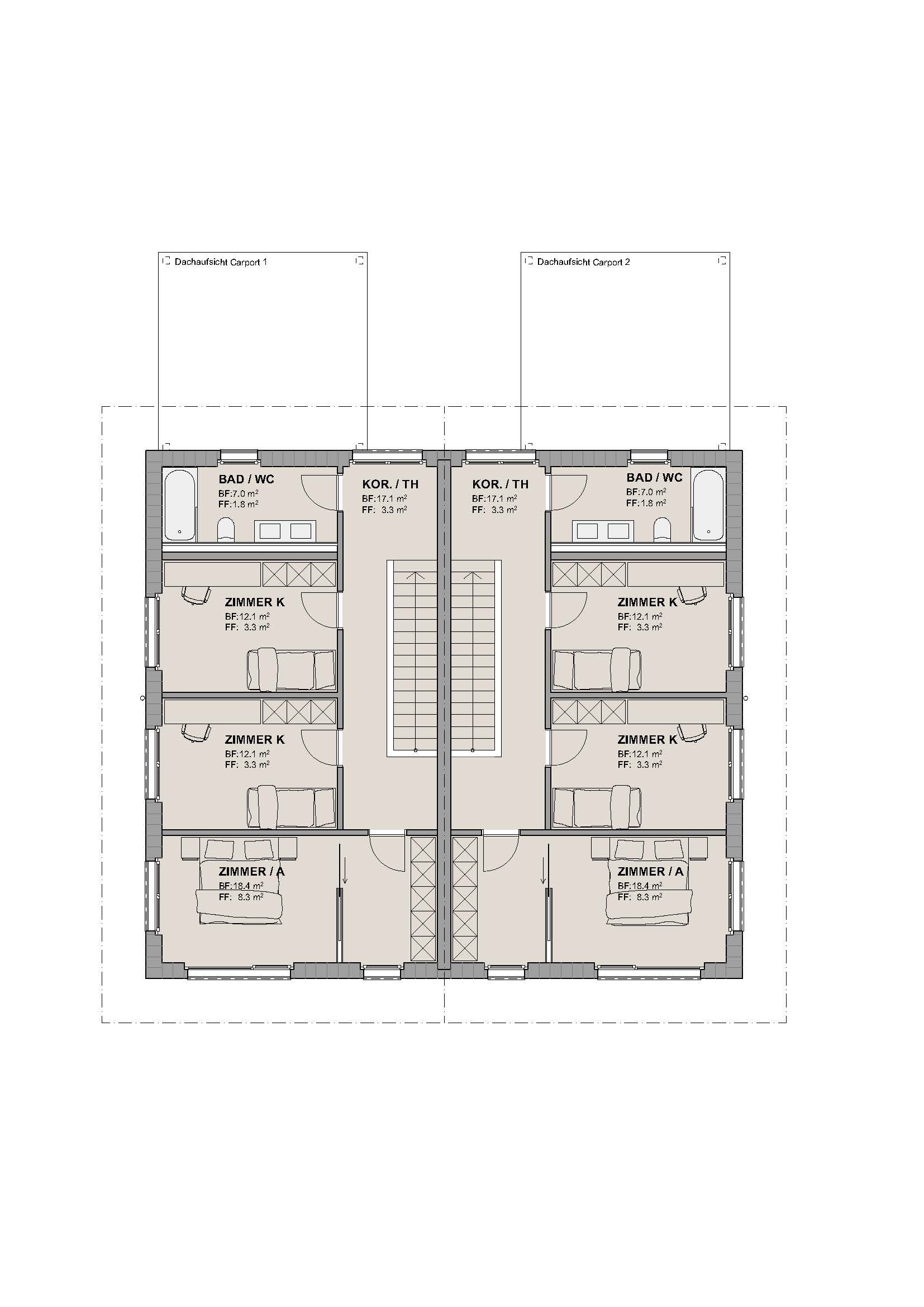
Appartement PPE
CHF 395'000.-
CHF 7'182.-/m²
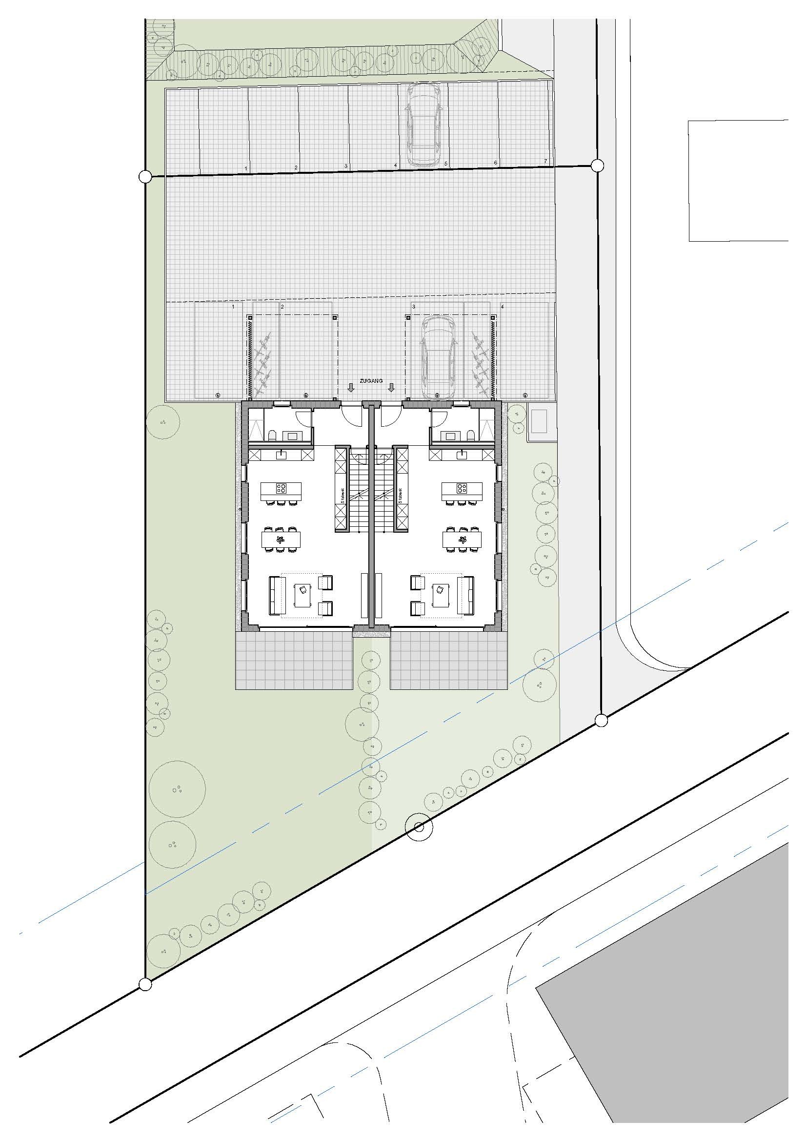
Waldeggstrasse 33, 3803 Beatenberg
Appartement ensoleillé de 3 pièces avec terrasse et vue sur le lac de
Bienvenue à Beatenberg, là où le soleil, le calme et le panorama se rencontrent. Cet appartement de 3 pièces entièrement rénové dans le quartier populaire de Waldegg offre tout ce que l'on peut désirer : une situation ensoleillée et calme à l'écart de la route principale, une vue imprenable sur le lac de Thoune et les imposantes montagnes ainsi qu'un confort d'habitation moderne. L'appartement a été rénové avec un grand amour du détail et se présente dans un état comme neuf. Le point fort absolu est la terrasse spacieuse avec salon de jardin, sièges et chaises longues, sur laquelle vous pouvez profiter du soleil et de la vue toute la journée, protégés par deux nouveaux stores solaires, parfaits pour passer des heures agréables en plein air. Une cave séparée et verrouillable, située juste en face de la porte d'entrée de l'appartement, offre un espace de rangement pratique. De plus, l'appartement est livré entièrement meublé, ce qui vous permet d'emménager...