Attique
2 Pièces
Wiesenstrasse 18, 4950 Huttwil
4ème étage
A convenir
Cet appartement mansardé confortable vous offre les éléments suivants : Chambres confortables, avec toit en penteCuisine pratique avec vitrocéramiqueParquetQuartier résidentiel calme NOUS NOUS RÉJOUISSONS DE VOTRE APPEL Une visite vaut la peine.
Appartement
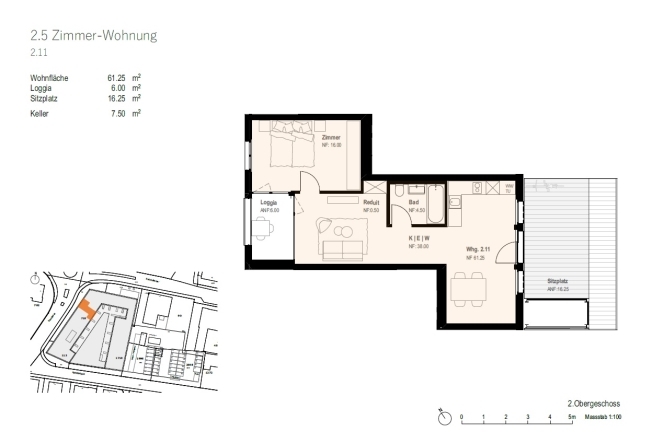
2.5 Pièces
2.5 Pièces
61 m²
61 m²
CHF 1'350.-/mois
Bahnhofstr, 43, 4950 Huttwil
2ème étage
A convenir
Appartement de 2 pièces - Juste à côté de la gare
Appartement
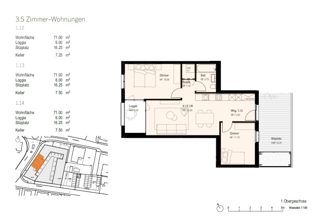
3.5 Pièces
3.5 Pièces
71 m²
71 m²
CHF 1'530.-/mois
Bahnhofstr, 43, 4950 Huttwil
1er étage
A convenir
Appartement moderne dans un emplacement privilégié près de la gare
Nous louons un appartement de 3 pièces attrayant et moderne directement à côté de la gare avec effet immédiat ou sur rendez-vous. L’appartement convainc par les avantages suivants : - Plan d’étage bien pensé et polyvalent - Cuisine spacieuse, lumineuse et ouverte avec vitrocéramique et lave-vaisselle - Matériaux modernes et de haute qualité - Parquet dans tout l’appartement - Baignoire/WC avec baignoire et douche/WC séparés - Tour de lavage dans l’appartement, salle de séchage à l’étage - Coin salon dans la cour et loggia ensoleillée - Grand compartiment de cave avec raccordement électrique - Ascenseur disponible - Les places de parking peuvent être achetées pour CHF 130.00/mois chacune. peut être loué à cet effet - Faire les courses directement dans la maison (Coop, pharmacie, etc.) Êtes-vous intéressé ? Réservez une visite dès aujourd’hui via le lien de visionnage séparé. Nous nous réjouissons de vous voir
Appartement
1 pièce
1 pièce
CHF 790.-/mois
Bergstrasse 8 b, 4950 Huttwil
2ème étage
A convenir
Appartement bon marché dans une propriété bien entretenue
Vous êtes à la recherche d’une nouvelle maison dans la ville cosy de Huttwil ? Nous louons un appartement de 1 pièce situé au centre. L’appartement vous offre ce qui suit : Chambre lumineuse et spacieuseRevêtements de sol faciles d’entretien - pour que le nettoyage ne soit pas un casse-têteCuisine pratique - cela rendra la cuisine amusante.Balcon avec une vue fantastique - juste ce qu’il faut pour se détendre à tout moment de l’année et à tout moment de la journée.Commerces et transports en commun à proximité immédiateNe manquez pas cette opportunité - contactez-nous dès aujourd’hui
Appartement
1 pièce
1 pièce
35 m²
35 m²
CHF 920.-/mois
Bahnhofstr, 43, 4950 Huttwil
2ème étage
A convenir
Idéal pour les navetteurs
Nous louons un appartement 1 pièce attrayant et moderne directement à côté de la gare avec effet immédiat ou sur rendez-vous. L’appartement convainc par les avantages suivants : - Plan d’étage bien pensé et polyvalent - Cuisine spacieuse, lumineuse et ouverte avec vitrocéramique et lave-vaisselle - Matériaux modernes et de haute qualité - Parquet dans tout l’appartement - Douche/WC - Tour de lavage dans l’appartement - Coin salon dans la cour et loggia ensoleillée - Grand compartiment de cave avec raccordement électrique - Ascenseur disponible - Les places de parking peuvent être achetées pour CHF 130.00/mois chacune. peut être loué à cet effet - Faire les courses directement dans la maison (Coop, pharmacie, etc.) Avons-nous suscité votre intérêt ? Nous nous réjouissons de votre demande et nous nous ferons un plaisir de vous faire visiter l’appartement lors d’un rendez-vous de visite sans engagement Les photos montrent un appartement type.
Appartement
3.5 Pièces
3.5 Pièces
70 m²
70 m²
CHF 1'100.-/mois
4950 Huttwil
1er étage
A convenir
Charmante 3.5-Zimmer-Wohnung in Huttwil
Willkommen bei dieser charmanten 3.5-Zimmer-Wohnung in Huttwil! Diese Wohnung bietet alle Annehmlichkeiten, die Sie sich wünschen können, einschliesslich einer privaten Waschmaschine und eines Tumblers direkt in der Wohnung. Die Nebenkosten werden pauschal abgerechnet, damit Sie sich keine Gedanken über zusätzliche Kosten machen müssen. Die Wohnung eignet sich perfekt für eine Familie, ein Paar oder ein Single. Wenn Sie ein Auto besitzen, bieten wir Aussenparkplätze für CHF 50.00 pro Monat. Bitte beachten Sie, dass diese Wohnung keinen Estrich oder Keller hat und auch keinen Lift bietet. Die Wohnung selbst hat eine schöne und gemütliche Atmosphäre mit viel Tageslicht und einem grosszügigen Wohnbereich, der perfekt zum Entspannen nach einem langen Arbeitstag geeignet ist. Die Küche ist voll ausgestattet mit modernen Geräten und bietet ausreichend Platz zum Kochen und Backen. Das Badezimmer ist gepflegt und modern, sodass Sie sich in der Wohnung wohlfühlen werden. Die...
Appartement
4.5 Pièces
4.5 Pièces
107 m²
107 m²
CHF 2'090.-/mois
Bahnhofstr, 43, 4950 Huttwil
2ème étage
A convenir
Frapper
Appartement
4.5 Pièces
4.5 Pièces
97 m²
97 m²
CHF 1'795.-/mois
Bahnhofstr, 43, 4950 Huttwil
2ème étage
A convenir
Vie moderne, loggia et coin salon
Appartement
3.5 Pièces
3.5 Pièces
71 m²
71 m²
CHF 1'430.-/mois
Bahnhofstr, 43, 4950 Huttwil
1er étage
A convenir
Appartement moderne dans un emplacement privilégié près de la gare
Nous louons un appartement attrayant et moderne de 3 pièces directement à côté de la gare sur demande. L’appartement convainc par les avantages suivants : - Plan d’étage bien pensé et polyvalent - Cuisine spacieuse, lumineuse et ouverte avec vitrocéramique et lave-vaisselle - Matériaux modernes et de haute qualité - Parquet dans tout l’appartement - Douche/WC - Tour de lavage dans l’appartement, salle de séchage à l’étage - Coin salon dans la cour et loggia ensoleillée - Grand compartiment de cave avec raccordement électrique - Ascenseur disponible - Les places de parking peuvent être achetées pour CHF 130.00/mois chacune. peut être loué à cet effet - Faire les courses directement dans la maison (Coop, pharmacie, etc.) Avons-nous suscité votre intérêt ? Nous nous réjouissons de votre demande et nous nous ferons un plaisir de vous faire visiter l’appartement lors d’un rendez-vous de visite sans engagement
Appartement
4.5 Pièces
4.5 Pièces
CHF 1'400.-/mois
Allmendstrasse 3, 4950 Huttwil
A convenir













































































