Appartement
1.5 Pièces
32 m²
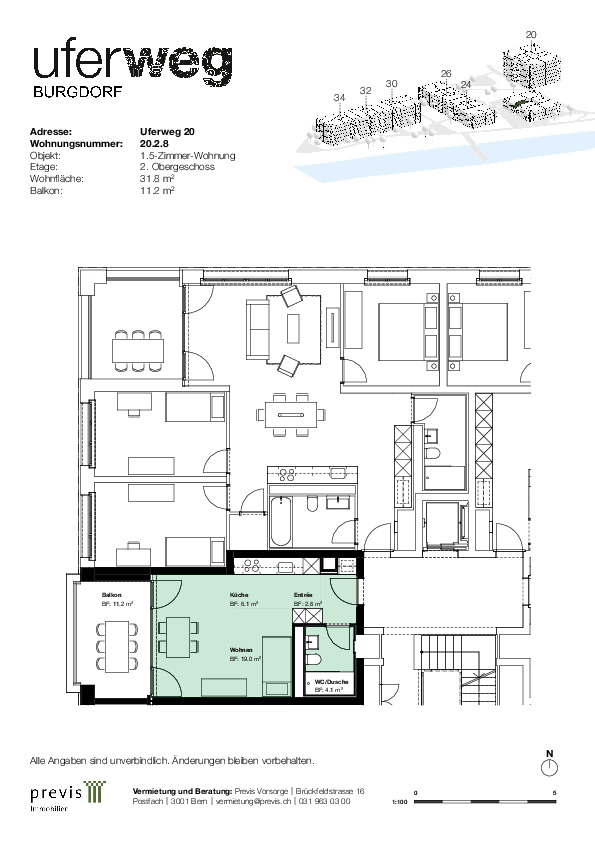
Uferweg 20, 3400 Burgdorf
2ème étage
A convenir
Bienvenue à l’Uferweg Burgdorf , un quartier animé au bord de l’Emme. Cet appartement moderne de 1,5 pièce offre non seulement un confort de vie élégant, mais aussi la possibilité de faire partie d’une communauté ouverte. L’appartement en un coup d’œil Espace ouvert et lumineux avec un plan d’étage bien penséCuisine moderne et ouverte avec des appareils de haute qualitéSalon/chambre à coucher avec revêtement de sol en vinyle aspect parquet facile d’entretienSalle de bain avec douche et carrelage au solLoggia confortable pour des heures de détente en plein airSalle de lavage partagée au sous-solLeverUne communauté qui rassemble Le chemin au bord de la rivière est plus qu’un simple lieu de vie. Le développement favorise les rencontres et les échanges, idéal pour les jeunes couples, les célibataires, les seniors ou les professionnels qui souhaitent vivre près de la nature et pourtant proche de la ville. Les salles communes, les cours, les aires de...
Appartement
1.5 Pièces
1.5 Pièces
48 m²
48 m²
CHF 1'356.-/mois
3052 Zollikofen
1er étage
A convenir
APPARTEMENT 11/2 PIÈCES À ZOLLIKOFEN (BE), MEUBLÉ, TEMPORAIRE
PÉRIODE DE LOCATION du 1er janvier 2026 au 1er juillet 2026 (min. 5 mois) Appartement nouvellement construit à Zollikofen, 48m², au 1er étage, avec ascenseur, 1 balcon, Parking public à proximité. Y compris le chauffage, l’électricité, l’eau, la télévision (y compris le raccordement et l’abonnement), ...
Appartement
1.5 Pièces
1.5 Pièces
35 m²
35 m²
CHF 870.-/mois + ch.
Pleerweg 5b, 3400 Burgdorf
1er étage
01.02.2026
Attraktive 1.5-Zimmerwohnung mit modernem Ausbaustandard
In zentraler und verkehrsfreier Überbauung vermieten wir eine moderne 1.5-Zimmerwohnung. - Grosse, helle Wohnung (35 m2) im 1. Stock mit interessantem Grundriss (jedoch ohne Balkon) - Moderne Wohnküche mit Geschirrspüler, Glaskeramikherd, grosses Gefrierfach und Granitabdeckung - Dusche / WC in modernem Design - Wandschrank und Garderobe - weisse Bodenplatten (auf inserierten Fotos graue Bodenplatten) - Lift im Haus - Praktisches Immobilien-App - Mitbenützung von Fitnessraum, Sauna und Partyraum Die Bilder entsprechen einer baugleichen Wohnung im selben Gebäude. Die Überbauung ist an das Holzschnitzel-Kraftwerk der Localnet Burgdorf angeschlossen. Dieses Kraftwerk wird mit lokalem Holz dem "Oil of Emmental" beheizt und somit ist die gesamte Überbauung fast Co2 neutral. Es würde uns freuen Sie zu einer unverbindlichen Besichtigung begrüssen zu dürfen. www.pleerweg.ch www.burgdorf.ch www.sbb.ch www.oil-of-emmental.ch www.localnet.ch
Appartement
1.5 Pièces
1.5 Pièces
Prix sur demande
Unterdorfstrasse 29 A, 3752 Wimmis
A convenir
Appartement
Le paradis des chevaux dans le Simmental - Oberland bernoisUn petit bijou pour les amateurs de chevaux avec beaucoup de charme et d’intimité Le manège est conçu pour au moins quatre chevaux avec des écuries ouvertes et a été entièrement rénové. Points forts de l’installation : - Grange ouverte moderne avec parcours d’écurie et bien pensé Système d’alimentation - Grande surface de sortie pavée (marne) - Abri pour chevaux avec enclos et revêtement en caoutchouc - Cabane de pâturage séparée pour deux chevaux, également avec Revêtement de tapis en caoutchouc - Zone d’attache couverte avec eau chaude et lavabo - Décharge à fumier avec fosse à lisier - Raccordements d’eau chauffée (froide et chaude) - Petit pâturage avec une pente Manège et aire de loisirs : - Reiterstube avec poêle suédois et plus récent, Cuisine d’ambiance - Salle de bain avec douche et WC - Sellerie et chambre d’alimentation chauffées - Étage supérieur avec grande meule de...
Appartement
1.5 Pièces
1.5 Pièces
34 m²
34 m²
CHF 1'499.-/mois
3098 Köniz
3ème étage
A convenir
APPARTEMENT 11/2 PIÈCES À KÖNIZ (BE), MEUBLÉ, TEMPORAIRE
PÉRIODE DE LOCATION du 1er février 2026 au 30 avril 2026 (min. 2 mois) Studio moderne et lumineux à la campagne - avec sauna, salle de sport, salle commune et quartier agréable. Calme, ensoleillé et central (transports en commun/bus de nuit). Locataires privilégiés pour toute la durée de location, 34m², au 3ème étage, avec ascenseur, 1 balcon, jardin (usage commun), patio de jardin (usage commun), 1 garage privé (en option CHF 140.-), parking public à proximité, entrée d’autoroute à proximité. Incl. chauffage, électricité, eau, ...
Appartement
1.5 Pièces
1.5 Pièces
CHF 1'100.-/mois
Brühlstrasse 45, 2503 Biel
A convenir
Appartement 1.5 Studio récemment rénové
Appartement
1.5 Pièces
1.5 Pièces
44 m²
44 m²
CHF 1'110.-/mois
Forelstr, 52, 3072 Ostermundigen
3ème étage
A convenir
Votre premier appartement à Ostermundigen
Nous louons cet appartement moderne de 1,5 pièce au 3ème étage avec ascenseur : - Parquet dans le couloir, le salon - Planchers en dalle dans la cuisine et la salle de bain/WC - Cuisine moderne avec plaque vitrocéramique et lave-vaisselle -Armoires - Grand balcon ensoleillé -Cave Utilisation partagée du sauna, de la salle de fitness et de la salle de fête dans le quartier. Ce ne sont là que quelques-uns des avantages de cet appartement. Voyez par vous-même avec une visite. Nous nous réjouissons d’avoir de vos nouvelles Les images correspondent à un appartement typé.
Appartement
1.5 Pièces
1.5 Pièces
38 m²
38 m²
CHF 1'200.-/mois
3006 Bern
4ème étage
A convenir
APPARTEMENT 11/2 PIÈCES À BERNE - OSTRING, MEUBLÉ, TEMPORAIRE
PÉRIODE DE LOCATION du 19 décembre 2025 au 28 février 2026 (min. 1 mois) Le studio est situé dans le quartier calme de Murifeld. Les arrêts de tramway et les commerces sont accessibles en moins de 7 minutes. Dans la ville vous êtes à moins de 15 minutes, 38m², au 4ème étage, 1 balcon, Parking public à proximité, Entrée d’autoroute à proximité. Incl. chauffage, électricité, eau, internet, ...
Appartement
1.5 Pièces
1.5 Pièces
21 m²
21 m²
CHF 820.-/mois + ch.
Erlenstrasse 8, 2555 Brügg BE
Rez-de-chaussée
01.12.2025
Moderne 1.5-Zimmerwohnung im Parterre
Wir vermieten per 1. Dezember 2025 eine moderne 1.5- Zimmerwohnung im EG, welche wie folgt ausgestattet ist: - Moderne Küche mit Geschirrspüler sowie genügend Arbeitsfläche - Helles Badezimmer - Attraktiver Laminat Boden im Wohnzimmer Vielfältige Einkaufmöglichkeiten sind unmittelbar in nächster Nähe zur Liegenschaft. Mit den weitläufigen Erholungsgebieten an der Aare (Nidau-Büren-Kanal liegt direkt von Ihrer Haustüre) und im Grünen lässt es sich in vorzüglich leben. Ein gutes Schulangebot, die Mobilität mit den öffentlichen Verkehrsmitteln und die Nähe zur Stadt rundet das «Wohlfühlen» ab. Sind Sie interessiert? Dann zögern Sie nicht und melden sich noch heute bei uns. Wir freuen uns auf Ihre Kontaktaufnahme. Bitte beachten Sie, dass die Fotos aus einer Typähnlichen Wohnung stammen.
Appartement
1.5 Pièces
1.5 Pièces
50 m²
50 m²
CHF 2'250.-/mois
3006 Bern
2ème étage
A convenir
APPARTEMENT 11/2 PIÈCES À BERNE - KIRCHENFELD, MEUBLÉ, TEMPORAIRE
PÉRIODE DE LOCATION du 1er décembre 2025 au 31 juillet 2026 (min. 1 mois) 50m², au 2ème étage, 1 balcon, Parking public proche, Entrée d’autoroute à proximité. Hors frais annexes, ...
Appartement
1.5 Pièces
1.5 Pièces
30 m²
30 m²
CHF 610.-/mois + ch.
Hauptstrasse 2a, 3422 Alchenflüh
3ème étage
01.11.2025
Kleines Bijou sucht Bewohner
Per 16.11.2025 vermieten wir diese charmante 1.5-Zimmerwohnung in Alchenflüh. Die Wohnung bietet Ihnen folgende Annehmlichkeiten: - Küche, Korridor sowie Nasszelle mit pflegeleichtem Plattenboden - Küche mit Glaskeramikherd, Geschirrspüler, Backofen und genügend Stauraum für Ihre Küchenutensilien - Badezimmer mit WC, Lavabo, Spiegelschrank und Badewanne - Eigenes Kellerabteil - Waschküche und Trockenraum zur Mitbenutzung Die Hunde- sowie Hauskatzenhaltung ist in dieser Liegenschaft erlaubt. Nach Verfügbarkeit kann ein Abstellplatz für CHF 30.00 pro Monat oder eine Garagenbox für CHF 100.00 dazu gemietet werden. Umgebung: - Öffentliche Verkehrsmittel und Einkaufsmöglichkeiten finden Sie in der näheren Umgebung und sind in Gehdistanz erreichbar - Autobahneinfahrt in der Nähe - Die Überbauung befindet sich in einem ruhigen Wohnquartier, sehr zentral zu diversen Ausflugszielen in der Umgebung - Diverse Einkaufsmöglichkeiten befinden sich in der Nähe Bitte beachten Sie...

















































































