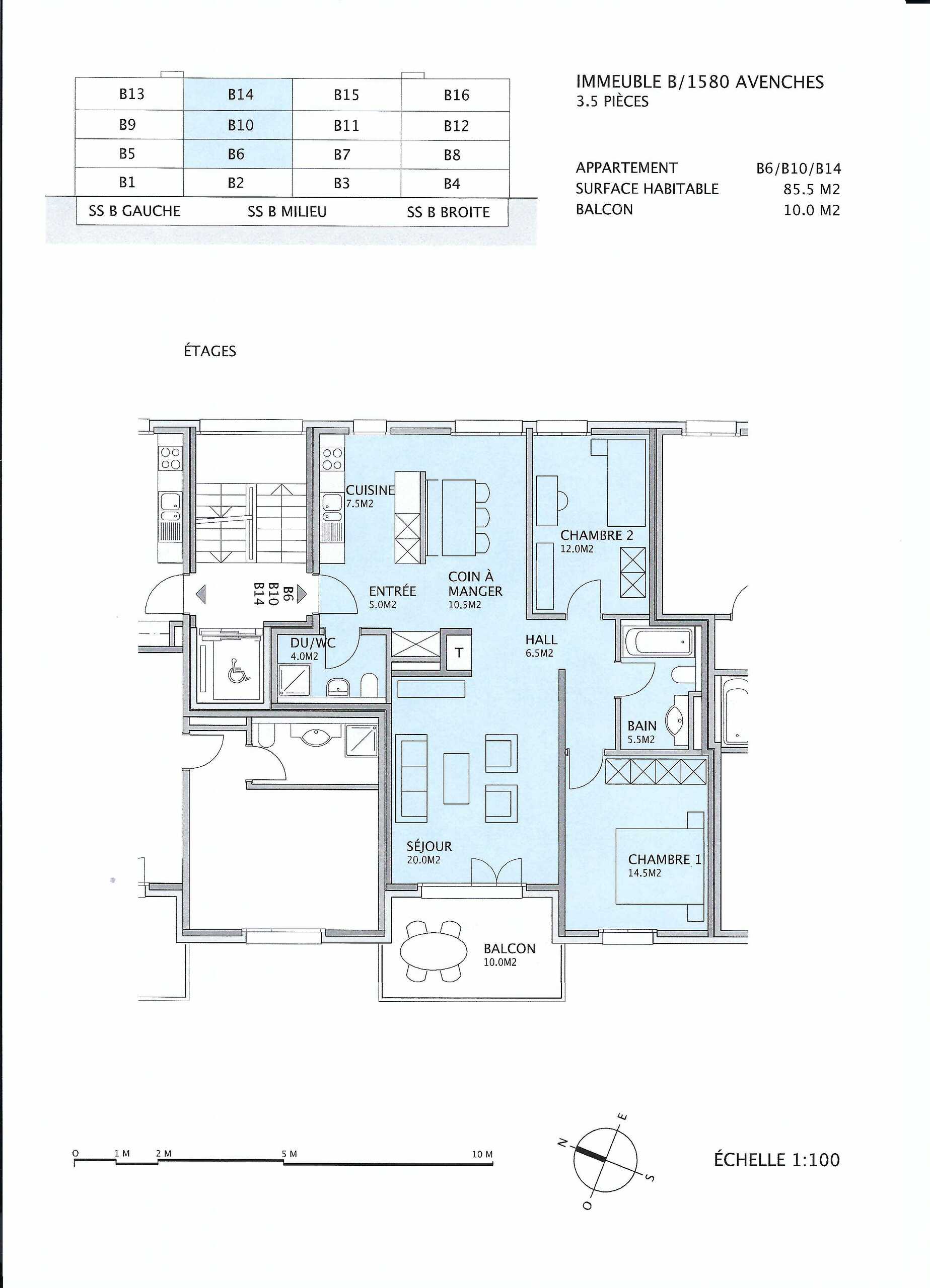
Appartement
3.5 Pièces
73 m²
Route de Villars-le-Grand 7, 1580 Avenches
3ème étage
A convenir
Ce magnifique appartement d’environ 73m2 est situé dans un quartier charmant à proximité des supermarchés et des écoles primaires et secondaires. Il se trouve à seulement 2 minutes des autoroutes. Il se compose comme suit: - Un hall d’entrée avec des armoires murales - Un spacieux séjour avec accès au balcon - Une cuisine fermée, aménagée et équipée - Deux chambres spacieuses avec parquet - Une salle de bains Disponible à partir du 1er avril 2026 Il est possible de louer une place de parc extérieure en supplément au prix de CHF 50.00/mois. Les travaux suivants seront effectués avant votre entrée: - Installation d’une nouvelle cuisine - Rénovation complète de la peinture - Réfection de la baignoire - Remplacement du sol du hall d’entrée, de la cuisine et de la salle de bains par du carrelage Nous avons éveillé votre intérêt? N’hésitez pas à nous contacter directement via le formulaire de contact pour toute demande et/ou visite. Une fois la visite...
Appartement
5.5 Pièces
5.5 Pièces
134 m²
134 m²
CHF 2'520.-/mois + ch.
Place de la Gare 8C, 1580 Avenches
3ème étage
01.02.2026
GARE 8C, Appartement de 5.5 pièces avec 3 salles d'eau
Proche des accès routiers, de la gare, des commerces et des écoles, cet appartement de 5.5 pièces avec entrée privative et situé dans un charmant quartier résidentiel saura correspondre aux attentes de toute la famille. Il se compose comme suit : hall d'entrée aménageable selon votre souhait avec armoires murales de rangement, cuisine entièrement agencée et ouverte sur le vaste séjour, 4 chambres à coucher, 2 salles de bain avec douche/WC et 1 salle de bain/baignoire/WC/double vasque avec sa propre colonne de lavage privative. Une vaste terrasse contournant le logement ainsi qu'une cave viennent compléter ce bien. L'immeuble dispose également d'un ascenseur, d'un local à vélos et d'un local à poussettes. Pas de places de parc de disponibles avec cette location, mais les diverses zones prévues à cet effet dans le quartier et en bas de l'immeuble vous faciliteront le parcage en toute heure de la journée et soirée. Disponible dès le 01.02.2026. Visite : Vimova...
Appartement
3.5 Pièces
3.5 Pièces
81.9 m²
81.9 m²
CHF 1'990.-/mois
Le Milavy 1, 1580 Avenches
A convenir
Appartement neuf 3.5 pièces au cur dAvenches, premier occupant
Situé au 2e étage du bâtiment B1 de lensemble résidentiel moderne «Au Milavy» à Avenches, cet appartement neuf de 3.5 pièces vous offre la chance den être le premier locataire. Avec une surface nette habitable de 81.9 m², il comprend deux chambres spacieuses de 15,7 m² et 12.7 m² , Le séjour lumineux de 35.4 m² souvre sur une cuisine moderne, ouverte et entièrement équipée, créant un espace de vie convivial et confortable, orientées sud-ouest garantissant une excellente luminosité, ainsi q' un balcon totalisant 18.1 m². Une buanderie est à disposition, de même une cave privative de 13,4 m² accessible via l'ascenseur. Deux places de parking en sous-sol sont disponibles à la location, au prix de 150 CHF chacune par mois. Conçu avec des matériaux de haute qualité, cet appartement bénéficie dun triple vitrage, dun chauffage au sol programmable à distance et de stores électriques dans toutes les pièces. L'emplacement est idéal, à seulement 100 mètres du...
Appartement
3.5 Pièces
3.5 Pièces
82 m²
82 m²
CHF 1'740.-/mois + ch.
Impasse Du Milavy 1, 1580 Avenches
Appartement neuf 3.5 pièces au cur dAvenches, premier occupant
Situé au 2e étage du bâtiment B1 de lensemble résidentiel moderne Au Milavy à Avenches, cet appartement neuf de 3.5 pièces vous offre la chance den être le premier locataire. Avec une surface nette habitable de 81.9 m², il comprend deux chambres spacieuses de 15,7 m² et 12.7 m² , Le séjour lumineux de 35.4 m² souvre sur une cuisine moderne, ouverte et entièrement équipée, créant un espace de vie convivial et confortable, orientées sud-ouest garantissant une excellente luminosité, ainsi q' un balcon totalisant 18.1 m². Une buanderie est à disposition, de même une cave privative de 13,4 m² accessible via l'ascenseur. Deux places de parking en sous-sol sont disponibles à la location, au prix de 150 CHF chacune par mois. Conçu avec des matériaux de haute qualité, cet appartement bénéficie dun triple vitrage, dun chauffage au sol programmable à distance et de stores électriques dans toutes les pièces. L'emplacement est idéal, à seulement 100 mètres du...
Appartement
4.5 Pièces
4.5 Pièces
103.6 m²
103.6 m²
CHF 2'530.-/mois
1580 Avenches
A convenir
Votre nouveau chez-vous lumineux au cur dAvenches Au Milavy
Situé au rez-de-chaussée du bâtiment de l'ensemble résidentiel moderne «Au Milavy» à Avenches, cet appartement 4,5 pièces tout neuf, construit en 2025, vous offre un cadre de vie lumineux et agréable de 102 m². Le salon, la salle à manger et la cuisine ouverte, d'une surface de 41,5 m², sont baignés de lumière naturelle, créant un espace chaleureux parfait pour se détendre en famille ou recevoir des amis. La cuisine moderne et entièrement équipée s'intègre harmonieusement à ce lieu de vie convivial. L'appartement compte trois chambres à coucher spacieuses entre de 12.5 et 15.5 m² avec parquet véritable, chacune offrant un espace intime pour se reposer. Deux salles de bains complètent ce logement : la principale avec baignoire et WC, et la seconde avec douche et WC. Vous pourrez profiter d'une belle terrasse de 18 m² et dun jardin privé de 100 m², idéals pour prendre l'air ou se relaxer en plein été. Une cave indépendante de 13 m² ainsi q'une buanderie...
Appartement
4.5 Pièces
4.5 Pièces
104 m²
104 m²
CHF 2'250.-/mois + ch.
1580 Avenches
Votre nouveau chez-vous lumineux au cur dAvenches Au Milavy
Situé au rez-de-chaussée du bâtiment de l'ensemble résidentiel moderne Au Milavy à Avenches, cet appartement 4,5 pièces tout neuf, construit en 2025, vous offre un cadre de vie lumineux et agréable de 102 m². Le salon, la salle à manger et la cuisine ouverte, d'une surface de 41,5 m², sont baignés de lumière naturelle, créant un espace chaleureux parfait pour se détendre en famille ou recevoir des amis. La cuisine moderne et entièrement équipée s'intègre harmonieusement à ce lieu de vie convivial. L'appartement compte trois chambres à coucher spacieuses entre de 12.5 et 15.5 m² avec parquet véritable, chacune offrant un espace intime pour se reposer. Deux salles de bains complètent ce logement : la principale avec baignoire et WC, et la seconde avec douche et WC. Vous pourrez profiter d'une belle terrasse de 18 m² et dun jardin privé de 100 m², idéals pour prendre l'air ou se relaxer en plein été. Une cave indépendante de 13 m² ainsi q'une buanderie...
Appartement traversant
3.5 Pièces
3.5 Pièces
85 m²
85 m²
CHF 1'520.-/mois + ch.
Rue de Bibracte 12 a, 1580 Avenches
1er étage
Immédiatement
Appartement traversant
Appartement traversant de 3.5 - pièces au 3ième étage. Dans un quartier calme et ensoleillé (Sur Fourches). Le logement est d'une conception moderne, lumineux et comporte un très bon confort. Il dispose d'un balcon de 10 m2. Une grande place de jeux est à disposition de tous les locataires. Loyer mensuel Fr. 1'520 plus charges. Libre dès 01.10.2025 Place de parking souterrain ou extérieur à disposition. Visite sur rendez-vous tél 079 230 37 84 ou 026 413 10 50
Appartement
3.5 Pièces
3.5 Pièces
CHF 1'690.-/mois + ch.
Impasse du Milavy 5, 1580 Avenches
1er étage
Immédiatement
Appartement moderne de 3,5 pièces à Au Milavy à Avenches
Votre appartement de rêve à Avenches vous attend!Vous recherchez votre appartement de rêve? Cet appartement moderne de 3,5 pièces à Avenches pourrait être exactement ce qu'il vous faut. Situé dans la tranquille Impasse du Milavy 5, cet appartement offre une combinaison parfaite de confort et de style. L'immeuble, qui sera construit en 2025, s'étend sur quatre étages et promet un habitat moderne dans un cadre idyllique. Cet appartement vous offre tout ce dont vous avez besoin pour vivre confortablement. Avec un agencement bien pensé et des matériaux de qualité, il est idéal pour les célibataires ou les couples qui attachent de l'importance à la qualité et au design. Appartement moderne de 3,5 pièces avec une surface habitable de 80m2 Appartement de 3,5 pcs au 1er étage B1-5 à Fr. 1 690,00 net + Fr. 170,00 à payer en acompte Appartement de 3,5 pièces au 2ème étage B1-9 à Fr. 1 730,00 net + Fr. 170,00 à payer en acompte Cuisine moderne Salle de bain/WC et...
Appartement
1.5 Pièces
1.5 Pièces
25.2 m²
25.2 m²
CHF 1'320.-/mois
1580 Avenches
A convenir
Nagelneues Top Studio in Avenches-Milavy
No. 1204 Première occupation très bien adapté aux jeunes et aux moins jeunes ; Wfl. 57 m², balcon, 2ème étage, plancher en bois, ascenseur,Loyer CHF 1'450 , Charges CHF 170 Inclus dans les charges : Chauffage au sol, climatisation, eau, électricité privée et générale, Smart-TV, Wlan, concierge, assurances, durée minimale de location, 6 mois; joliment meublé sur demande avec tout ce dont on a besoin comme les ustensiles de ménage, machine à laver commune, utilisation du sèche-linge commune, (assiettes, fers à repasser, poêles, etc.). ) CHF 150/mois, service, changement de linge et nettoyage de l'appartement sur demande, place de parking TG CHF 150 ; Si vous souhaitez louer l'appartement meublé il sera dans ce cas à 1560 CHF/Mois. Contactez Frédéric 079 171 44 14 - No. 1202 Erstbezug für Jung und Alt sehr gut geeignet; Wfl. 25.24 qm, 2. OG, Holzboden, Aufzug Mietpreis CHF 1'200, Nebenkosten CHF 120, in den NK enthalten: Fussbodenheizung, Wasser, Klima, Strom privat...
Appartement
2.5 Pièces
2.5 Pièces
57 m²
57 m²
CHF 1'720.-/mois
1580 Avenches
A convenir
Appartement top 2.5 pièces flambant neuf à Avenches-Milavy
No. 1204 Première occupation très bien adapté aux jeunes et aux moins jeunes ; Wfl. 57 m², balcon, 2ème étage, plancher en bois, ascenseur, Loyer CHF 1'550 ,Charges CHF 170 Inclus dans les charges : Chauffage au sol, climatisation, eau, électricité privée et générale, Smart-TV, Wlan, concierge, assurances, durée minimale de location, 6 mois ;joliment meublé sur demande avec tout ce dont on a besoin comme les ustensiles de ménage, machine à laver commune, utilisation du sèche-linge commune, (assiettes, fers à repasser, poêles, etc.). ) CHF 150/mois, service, changement de linge et nettoyage de l'appartement sur demande, place de parking TG CHF 180 ; Contactez Frédéric sous 079 171 44 14 - No. 1204 Erstbezug für Jung und Alt sehr gut geeignet; Wfl. 57 qm, Balkon, 2. OG, Holzboden, Aufzug, Mietpreis CHF 1'550 ,Nebenkosten CHF 170 In den NK enthalten: Fussbodenheizung, Wasser, Klimaanlage, Strom privat und allgemein, Smart-TV, Wlan, Hausmeister, Versicherungen...
Appartement
Prix dès CHF 1'880.-/mois + ch.
Rue des Alpes 59, 1580 Avenches
A convenir
Appartements d'exception de 2½ à 5½ pièces au cœur de la vielle ville
Ces logements de standing, entièrement rénovés, sont situés dans un immeuble appelé « Les Terrasses ». La bâtisse, avec son architecture Art Nouveau classé monument historique, offre un cadre de vie urbain exceptionnel, tout en étant dans un quartier résidentiel agréable, proche des commodités. Chaque logement dispose de parquet marqueté massif et de moulures aux plafonds donnant beaucoup de caractère aux lieux. De plus, le grand jardin commun orienté sud offre une belle vue dégagée. SITUATION à deux pas - arrêt de bus, écoles primaire et secondaire, restaurants, centre ville à 10-12 min. en voiture - Payerne à 15-20 min. en voiture - Fribourg DISTRIBUTION SOUS-SOL : LOCAL A / REDUIT A D'ENV. 18.10 M² / LOYER MENSUEL : FR. 195.-- LOCAL B / REDUIT B D'ENV. 17.90 M² / LOYER MENSUEL: FR. 180.-- REZ-DE-CHAUSSE : APPARTEMENT DE 5½ PIECES D'ENV. 129.50 M² + CAVE ET GALETAS N° 1 D'ENV. 6.20 M² ET 9.00 M² Hall d'entrée / Couloir d'env. 16.50 m² / Cuisine...

















































































































