Maison individuelle
Sur demande 1, 2732 Reconvilier
Immédiatement
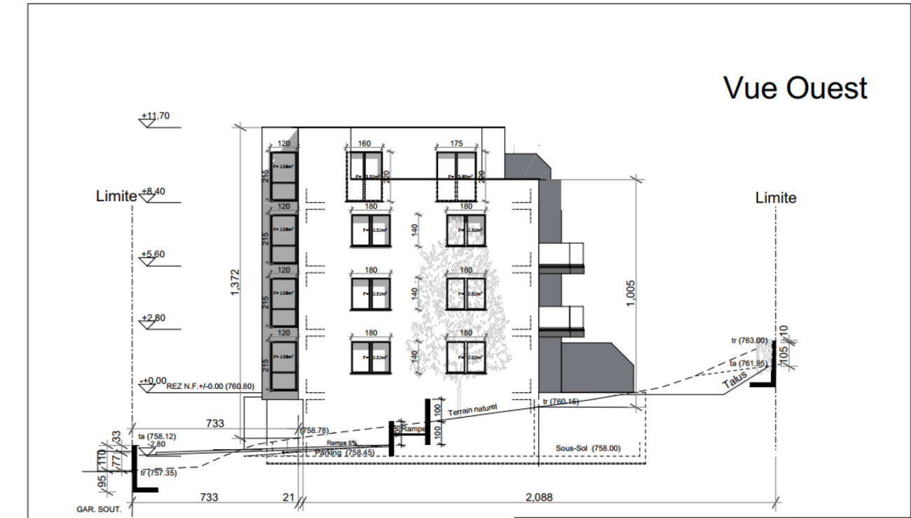
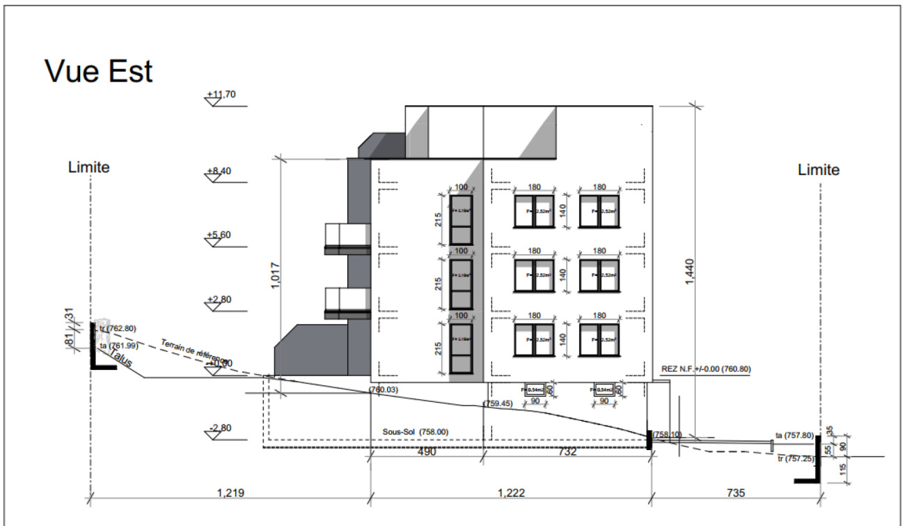
Terrain constructible attractif avec projet autorisé pour 11 appartements modernes à Reconvilier (Jura bernois)Un projet à fort potentiel - idéal pour les investisseurs, promoteurs ou particuliers souhaitant investir dans un habitat durable. À vendre : un terrain constructible de 1'943 m² situé à Reconvilier, avec autorisation de construire déjà délivrée pour 11 appartements en propriété (PPE) modernes. Le projet séduit par son architecture bien pensée, sa situation calme et ensoleillée, ainsi que par la possibilité de commencer immédiatement la construction ou de développer le projet de manière flexible selon les besoins. La combinaison d'un emplacement attractif, d'une demande solide en logements et d'un projet déjà autorisé fait de cette offre une opportunité d'investissement particulièrement intéressante, aussi bien pour les promoteurs expérimentés que pour les acheteurs privés. Points fortsSurface du terrain : 1'943 m² Projet : 11 appartements...
Maison individuelle
CHF 675'000.-
Auf Anfrage 1, 2732 Reconvilier
Immédiatement
Parcelle à bâtir avec projet autorisé de 11 logements - Reconvilier (Jura bernois)
Parcelle à bâtir avec projet de 11 logements - Reconvilier (Jura bernois)À vendre : parcelle de 1'943?m² à Reconvilier avec autorisation de construire délivrée pour 11 logements. La combinaison d'un quartier calme et ensoleillé, d'une bonne accessibilité et d'une commercialisation discrète rend ce dossier particulièrement attractif pour des promoteurs et investisseurs de long terme. Points FortsSurface de la parcelle : 1'943?m² Programme : 11 logements (autorisation délivrée) Disponibilité : de suite ; démarrage après entrée en force de l'autorisation Emplacement : quartier résidentiel, calme et familial à Reconvilier (Jura bernois) Vente : hors marché (off-market), dossier sur demande Situation & commoditésReconvilier allie la tranquillité d'une commune de campagne à la proximité des centres régionaux. Écoles, commerces, restaurants et transports publics sont accessibles en quelques minutes. Le cadre verdoyant et des infrastructures fiables offrent...
Maison
4.5 Pièces
4.5 Pièces
144 m²
144 m²
CHF 580'000.-
CHF 4'028.-/m²
Reconvilier, 2732 Reconvilier
Immédiatement
Maison familiale Atypique Rénovée avec jardin et garage indépendant
Découvrez cette maison atypique entièrement rénovée, parfaite pour accueillir une famille en quête de tranquillité et de confort. Nichée dans un emplacement paisible, elle bénéficie d'une belle exposition à l'ouest, inondant les espaces de vie de lumière naturelle tout au long de la journée.Avec ses 144 m² de surface habitable répartis sur quatre niveaux, cette propriété offre une distribution bien pensée avec 4,5 pièces, comprenant trois chambres et une salle de bain moderne, ainsi qu'un grenier facilement aménageable.La maison s'ouvre sur un charmant jardin, idéal pour profiter des moments en plein air en toute intimité.Côté équipements, cette demeure se distingue par son système de panneaux solaires installé sur le toit, offrant une meilleure efficacité énergétique et des économies durables, ainsi qu'une borne de recharge pour voiture électrique, un atout rare et recherché pour les foyers modernes.Un garage indépendant complète les prestations de ce...
Villa
8 Pièces
8 Pièces
CHF 1'690'000.-
Rue du Pommé au Loup 15, 2732 Reconvilier
A convenir
Reconvilier, villa d'architecte unique
Plongez dans l'élégance et le raffinement avec cette villa d'architecte contemporaine conçue par l'architecte Stéphane Kaiser. Baignée de lumière et offrant des volumes spectaculaires, cette demeure a été entièrement rafraîchie pour retrouver tout son éclat. Prête à être habitée sans aucuns travaux à prévoir, elle allie confort moderne et prestations haut de gamme. Idéalement située dans un quartier résidentiel calme et ensoleillé avec une vue dégagée sur la Montagne de Montoz. Cette villa se trouve à proximité immédiate des écoles et du centre du village. Son emplacement stratégique permet un accès rapide à Bienne en moins de 20 minutes et à Delémont en seulement 25 minutes. Une architecture pensée pour votre confort répartie sur trois niveaux, la maison offre une organisation fluide et fonctionnelle : Niveau inférieur : Hall d'entrée accueillantEspaces de rangement et locaux techniquesDouble garagePièce pouvant accueillir une salle de fitness...
Maison individuelle
Prix sur demande
2732 Reconvilier
A convenir
21 appartements avec balcons, parking int. et ext.
Très bien situés dans la localité, proche de la gare et des écoles, ces immeubles ont été régulièrement rénovés. Tous les détails figurent sur notre plaquette de vente
Maison individuelle
4.5 Pièces
4.5 Pièces
Prix sur demande
Rue de Jolimont 2, 2732 Reconvilier
A convenir
Reconvilier, villa de 4.5pces avec atelier et 3 garages
À la recherche d'une maison spacieuse avec un grand terrain ? Cette propriété située à Reconvilier offre de beaux volumes et de nombreuses possibilités d'aménagement. La maison se compose de vastes espaces de vie, parfaits pour une famille ou toute personne souhaitant profiter d'un cadre agréable et fonctionnel. Un grand atelier vient compléter l'ensemble, idéal pour un artisan, un bricoleur ou pour du stockage. Côté stationnement, la propriété dispose de trois garages, de nombreuses places de parc ainsi que d'un bûcher pouvant être transformé en garage supplémentaire. Située dans un environnement calme et proche des commodités, cette maison représente une opportunité rare sur le marché. Elle se distribue comme suit : Rez inférieur : Hall d'entrée avec armoiresEspace buanderieAccès au garageCaveLocal techniqueChambreRez-de-chaussée : Cuisine agencée habitable avec cheminéeSéjour ouvert sur la salle à mangerAccès à la terrasseSalle de bainChambre1er...
Maison individuelle
4.5 Pièces
4.5 Pièces
CHF 400'000.-
Rue des Condémines 2 B, 2732 Reconvilier
A convenir
Reconvilier, charmante petite maison de 4.5pces avec atelier
Jolie petite maison de 4.5 pièces située dans un quartier calme et ensoleillé à proximité des commodités du village de Reconvilier. Cette maison jouit d'un bel espace extérieur avec des arbres fruitiers ainsi que plusieurs cabanons de jardin. Une jolie pergola complète l'ensemble. Cet emplacement vous charmera par son calme et sa verdure. Descriptif intérieur: Rez inférieur : Salle d'eau - espace buanderieChambre local technique - caveAtelier avec prise 380VRez de chaussée : Hall d'entrée Séjour ouvert sur la salle à mangerCuisine agencée habitableSalle de bain1er étage : Hall de distribution avec rangementChambre avec balconChambre avec réduitRéduitAnnexes : 2 cabanons de jardinPergola3-4 places de stationnement en enfilade
Maison
7 Pièces
7 Pièces
155 m²
155 m²
CHF 840'000.-
CHF 5'419.-/m²
Reconvilier, 2732 Reconvilier
Immédiatement
Magnifique villa individuelle à vendre sur plan à Reconvillier
Découvrez cette villa sur plan, un véritable havre de paix conçu pour les familles en quête de confort et de qualité. Bénéficiant d'une exposition idéale à l'ouest, cette maison lumineuse offre une vue dégagée exceptionnelle, vous garantissant des moments de tranquillité absolue. Avec ses 7 pièces réparties sur 2 niveaux, dont 4 chambres spacieuses et 3 salles de bains bien équipées, ce bien est parfait pour accueillir votre famille. La salle de bains principale, dotée d'une fenêtre, ajoute une touche supplémentaire de confort au quotidien. Implantée sur un terrain de 645 m², la villa dispose d'un jardin privé où il fait bon se détendre et profiter des beaux jours. Les matériaux utilisés sont de grande qualité, assurant à la fois durabilité et esthétique raffinée. La surface habitable nette est de 155 m², avec une surface utile totale de 180 m², permettant ainsi à chaque membre de la famille de bénéficier d'un espace personnel tout en profitant des...
Maison neuve
5.5 Pièces
5.5 Pièces
~ 190 m²
~ 190 m²
Prix sur demande
2732 Reconvilier
A convenir
Promotion de 3 villas dans un quartier résidentiel de Reconvilier.
Promotion de trois nouvelles constructions de type villa individuelles dans un quartier calme de Reconvillier. Les villas se trouveront à seulement quelques minutes à pied des commerces mais également des champs et de la nature. Vous recherchez une maison neuve à seulement quelques minutes de voiture des ville de Bienne et Delémont ? N'hésitez pas à nous demander le dossier de vente de ces projets de villa individuelle. En cas de demandes rapides de dossier, les promoteurs sont ouverts à la discussion pour le choix des matériaux (cuisine, salle de bain, sol, etc.).























































































