Appartement
5.5 Pièces
5.5 Pièces
122 m²
122 m²
CHF 905'000.-
CHF 7'418.-/m²
Rue du Grand Borgeaud 17, 1406 Cronay
1er étage
A convenir
Cronay - Confort et espace : 5.5 pièces avec terrasse et jardin
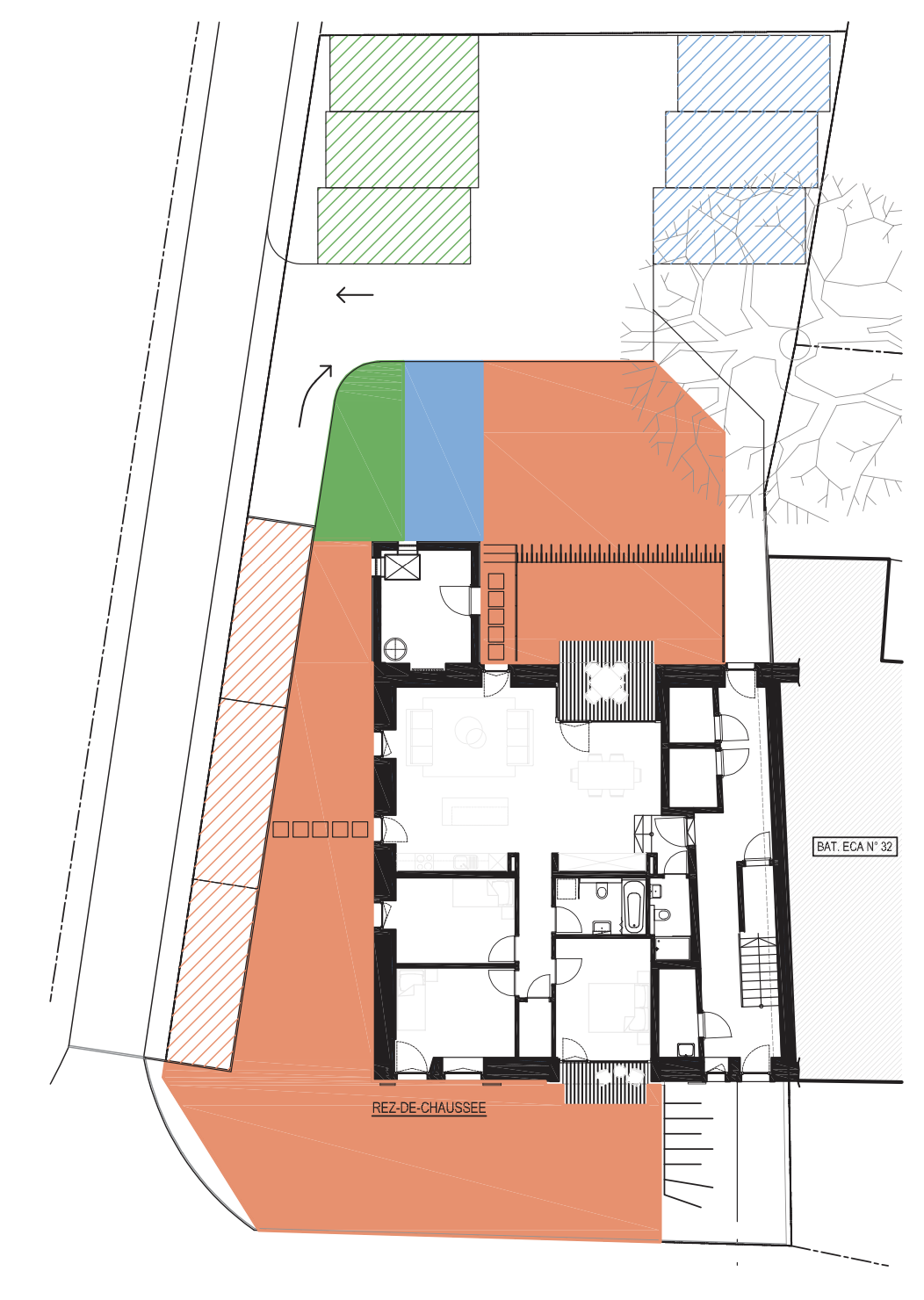
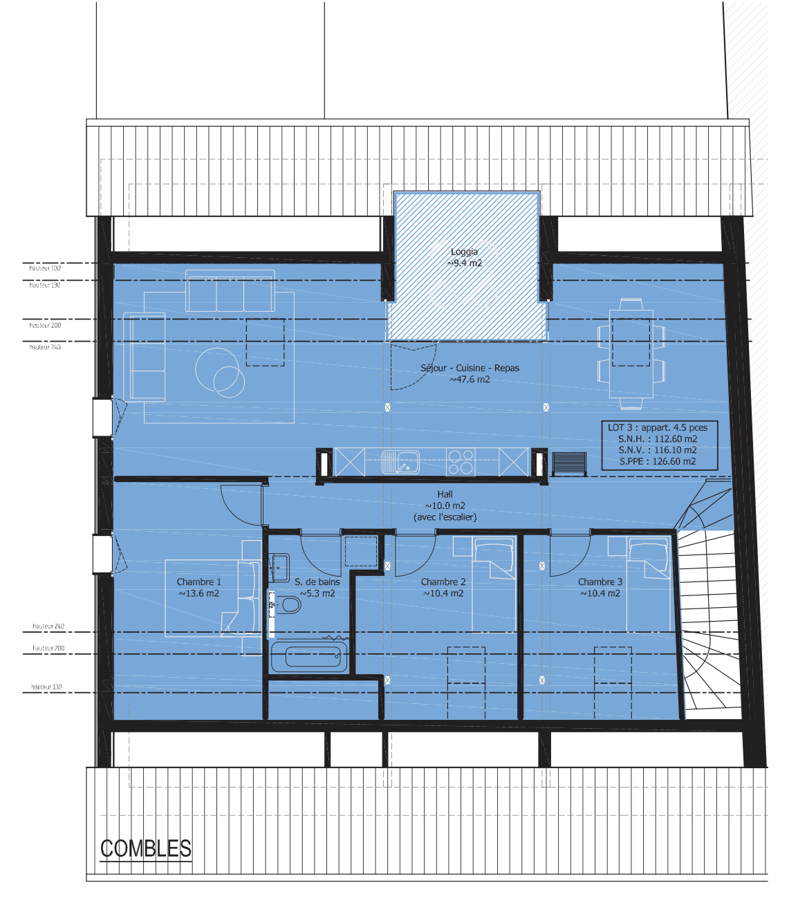
Appartement 5.5 pièces à Cronay avec terrasse Située à l'entrée du charmant village de Cronay, ce projet de 3 appartements en PPE profite d'un environnement calme et verdoyant, avec une vue étendue sur les Préalpes fribourgeoises et vaudoises. Cette ancienne maison villageoise sera entièrement rénovée avec soin pour créer des logements spacieux et lumineux. L'architecture extérieure sera préservée et mise en valeur par des matériaux nobles, fidèles au caractère de la construction d'origine. LOT 2 : Le premier étage accueillera un appartement de 5.5 pièces d'environ 125 m². Ce logement bénéficiera d'un vaste espace de vie ouvrant sur une grande terrasse de plus de 17m². Quatre chambres à coucher complètent l'espace nuit. Deux salles de bains sont prévues, l'une équipée d'une baignoire, l'autre d'une douche. Une buanderie privative, un réduit et une cave viennent parfaire l'ensemble. Un espace de potager privé sera également prévu pour cet appartement...

































