Appartement
CHF 1'110'000.-
CHF 7'762.-/m²
Rue de l'Ancien-Collège 104, 1040 Villars-le-Terroir
Promotion à Villars-le-Terroir : DUPLEX de 143 m2 avec jardin et belle terrasse couverte - Lot A1
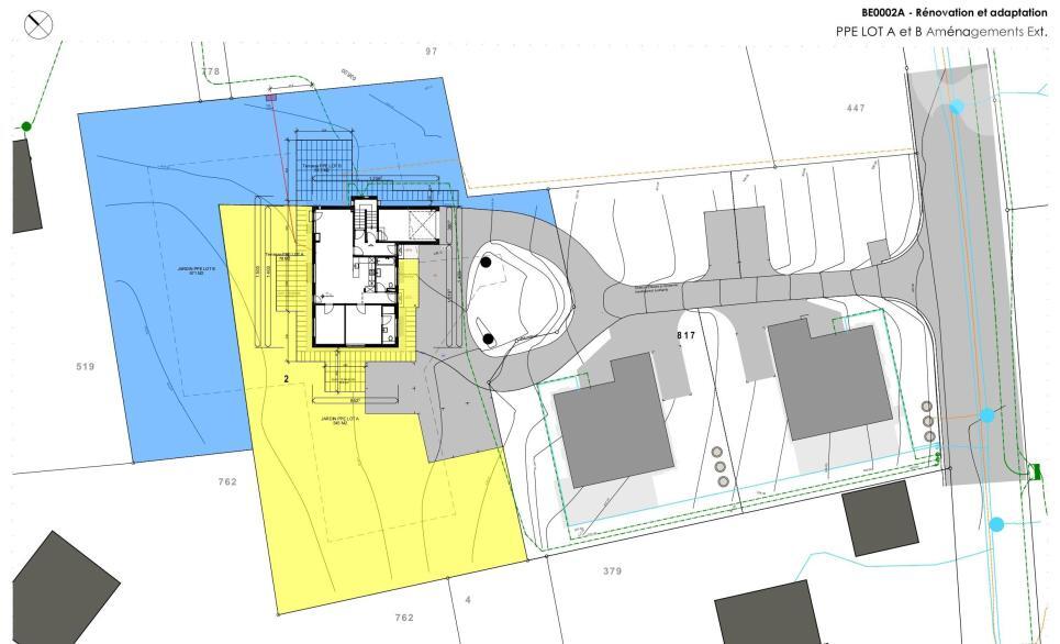
EMPLACEMENT L'emplacement se trouve au centre de Villars-le-Terroir, rue de l'Ancien-Collège 104. A 2 km d'Echallens et à 200 mètres du collège primaire 1P-8P. DISTRIBUTION LOT A1 : DUPLEX 4,5 pcs de 143 m² avec jardin et terrasse couverte et son réduit. REZ: . Hall équipé d'armoires murales - 10,1 m² . Cuisine - 13,2 m² . Séjour - 29,1 m² . WC et emplacement et branchement colonne de lavage - 4,7 m² . Cave - 5,6 m2 . Escaliers pour étage Accès extérieur au local technique - 9,7 m² Production de chauffage par PAC géothermique. Installation photovoltaïque indépendant pour la maison, consommation en temps réel. ETAGE: . Chambre 1 - 19,9 m² . Salle d'eau avec douche privative - 4,2 m² . Dégagement - 13,7 m² . Salle de bains - 6,4 m² . Chambre 2 - 17,2 m² . Chambre 3 - 16,6 m² EXTERIEURS . Jardin 47 m² . Terrasse côté séjour 16 m² . Terrasse couverte équipée avec Eau / Electricité 12 m² avec réduit 8 m² . Palissade H180 côté route . Attenant...