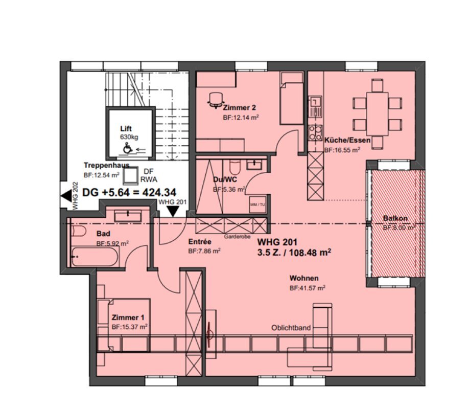
Appartement
3.5 Pièces
3.5 Pièces
107 m²
107 m²
CHF 2'650.-/mois
Hauptstrasse 36, 8545 Rickenbach ZH
2ème étage
A convenir
201 3.5 Appartement mansardé
Son nouveau lieu de résidence est inhabituel. Rickenbach est un village de 2800 habitants et est une commune politique de l’arrondissement de Winterthour. La commune est composée des villages de Rickenbach, Sulz, Grüt et de quelques hameaux. Ici, vous pouvez vous attendre à une idylle rurale au milieu de la nature. De plus, vous bénéficierez de l’infrastructure d’un centre régional vraiment convivial à votre porte, avec des emplois, une culture et une vie associative diversifiée. Une boucherie, la Volg avec des services postaux pour les besoins quotidiens, se trouve à distance de marche. Il y a aussi plusieurs restaurants où vous pouvez vous faire plaisir. Il n’est qu’à quelques kilomètres du centre-ville avec d’autres magasins spécialisés et de grands distributeurs. Le complexe scolaire avec toute la gamme de services de la maternelle au lycée se trouve à seulement quelques mètres de votre domicile. Les activités de loisirs sont très variées. Les...






























