VILLA DE 5½ PIÈCES - Au calme !
Pièces5.5
Surface habitable105 m²
Prix de l'objetCHF 2'600.-/mois + ch.
DisponibilitéImmédiatement
Localisation
Chemin du Levant 10, 1530 PayerneLoyer
Loyer: CHF 2'600.- /mois
Charges: CHF 390.- /mois (non comprises)
Loyer brut: CHF 2'990.- mois
Caractéristiques
Référence
Levant 10
Disponibilité
Immédiatement
Sanitaire
1
Pièces
5.5
Chambres
4
Type de chauffage
Mazout
Installation chauffage
Radiateur
Etat du bien
Très bon
Standing
Standard
Surface terrain
1'452 m²
Surface habitable
105 m²
Places de parc
Oui, optionnel
Charges
CHF 390.-/mois (Non comprises)
Nombre de places de parc
Intérieur
2 | inclus/-e(s)
Extérieur
2 | inclus/-e(s)
Descriptif
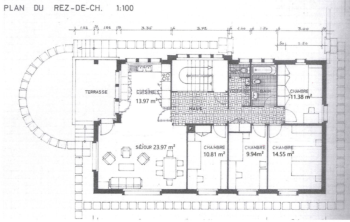
Situé à l'écart de toutes nuisances tout en étant proche des commodités, cette villa individuelle se compose comme suit: le hall d'entrée dessert une cuisine ouverte équipée, un lumineux séjour ouvrant sur une agréable terrasse plein Ouest. Le coin nuit quant à lui offre 4 chambres, un toilette séparé et une salle de bains avec baignoire et fenêtre.
Le sous-sol total abrite deux garages, une cave, un espace buanderie ou vous pourrez installer votre colonne de lavage. Deux places de parc extérieures équipées pour recharger vos véhicules électriques complètent ce bien.
Les charges de chauffage et d'eau sont comprises dans le loyer.
Le sous-sol total abrite deux garages, une cave, un espace buanderie ou vous pourrez installer votre colonne de lavage. Deux places de parc extérieures équipées pour recharger vos véhicules électriques complètent ce bien.
Les charges de chauffage et d'eau sont comprises dans le loyer.
Commodités
Environnement
- Village
- Verdoyant
- Quartier résidentiel
- Commerces
- Rue commerçante
- Banque
- Poste
- Restaurant(s)
- Pharmacie
- Gare
- Arrêt de bus
- Entrée/sortie autoroute
- Enfants bienvenus
- Aire de jeux
- Crèche/garderie
- Ecole maternelle
- Ecole primaire
- Centre sportif
- Piscine publique
- Proche d'un golf
- Sentiers de randonnée
- Piste cyclable
- Monuments religieux
- Hôpital / Clinique
- Médecin
Extérieur
- Terrasse(s)
- Jardin
- Silencieux/tranquille
- Verdure
- Parking
- Garage
- Robot tondeuse
Intérieur
- Sans ascenseur
- Cuisine ouverte
- WC séparés
- Economat
- Cave
- Non meublé
- Accès au chauffage
- Triple vitrage
- Lumineux
Equipement
- Cuisine équipée
- Plaques vitrocéramiques
- Four
- Réfrigérateur
- Congélateur
- Lave-vaisselle
- Branchements pour colonne de lavage
- Baignoire
- Borne voiture électrique
Sol
- Carrelage
- Parquet
Etat
- Très bon
Exposition
- Nord
- Sud
- Est
- Ouest
Ensoleillement
- Optimal
- Toute la journée
Vue
- Dégagée
- Sans vis-à-vis
Distances
Gare
478 m
10'
10'
4'
Transports publics
283 m
6'
6'
1'
Autoroute
958 m
27'
27'
5'
Ecole primaire
2.55 km
45'
21'
5'
Commerces
479 m
10'
10'
4'
Aéroport
3.45 km
58'
23'
8'
Poste
532 m
11'
11'
4'
Banque
561 m
11'
11'
4'
Hôpital
203 m
4'
4'
1'
Restaurants
409 m
15'
15'
2'


















