Appartement 4.5 pièces avec terrasse
Localisation
Route de l'Orée-du-Bois 85 , 2300 La Chaux-de-FondsLoyer
Caractéristiques
Descriptif
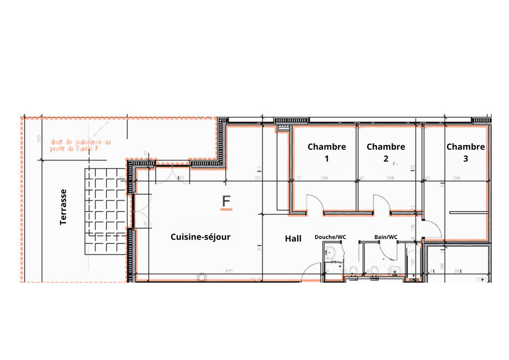
Situé dans un quartier prisé et proche de la nature, cet appartement 4.5 pièces au rez-de-chaussée offre 100 m2 d'espace, idéalement conçu pour répondre à vos besoins.
Caractéristiques de l'appartement F :
- Hall d'entrée
- Cuisine agencée moderne ouverte sur le séjour
- Trois chambres
- Salle de bain/WC
- Salle de douche/WC
- Terrasse plain-pied privative
- Cave
- Ascenseur
Place de parc intérieure numéro 19 disponible au prix de CHF 170.00 par mois.
Nous vous rendons attentif que l'appartement sera libre pour le 1er avril 2026
Si vous souhaitez effectuer une visite, merci de bien vouloir contacter la locataire actuelle par téléphone :
Madame Jessica Alves Gomez, +41 79 861 73 62
Commodités
Environnement
- Enfants bienvenus
Extérieur
- Parking
Intérieur
- Ascenseur

