Villa sur Vétroz - QUARTIER VILLAS
Pièces4.5
Surface habitable135 m²
Prix de l'objetCHF 750'000.-
DisponibilitéA convenir
Localisation
Route du Petit-bois, 1963 VétrozCaractéristiques
Référence
FOL-11995
Disponibilité
A convenir
Année de construction
2025
Pièces
4.5
Surface habitable
135 m²
Descriptif
Jolie villa de 4,5 pces sur Vétroz
AUTORISATION DE CONSTRUIRE DELIVREE
Situées sur la Commune de Vétroz, ces 4 villas, reliées par le garage sauront vous séduire par leur situation et modernité
Dans un quartier calme et familial, les villas se distribuent ainsi :
Les finitions sont à choix du preneur.
N'hésitez pas à nous contacter pour davantage d'informations.
AUTORISATION DE CONSTRUIRE DELIVREE
Situées sur la Commune de Vétroz, ces 4 villas, reliées par le garage sauront vous séduire par leur situation et modernité
Dans un quartier calme et familial, les villas se distribuent ainsi :
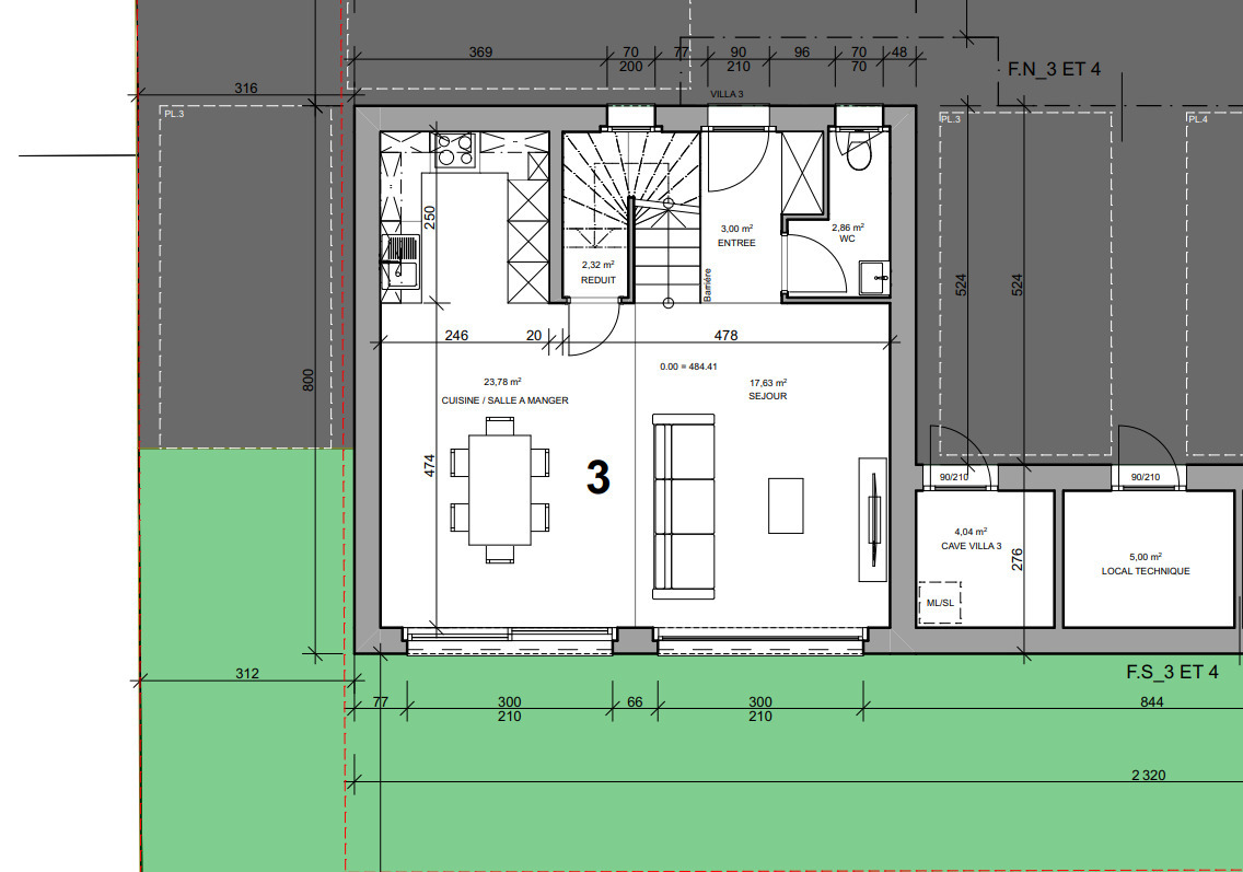
- Hall d'entrée avec possibilité d'armoire sous l'escalier
- WC visiteurs
- Séjour de 18 m2
- Cuisine avec salle à manger de 24 m2
- Réduit sous l'escalier de 2 m2
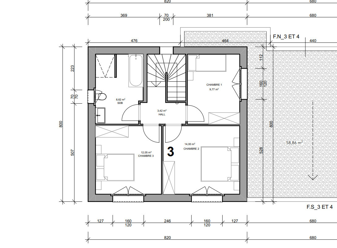
- Chambre n° 1 de 10 m2
- Chambre n° 2 de 12 m2
- Chambre n° 3 de 14 m2
- Salle d'eau avec baignoire et douche de 9 m2
Les finitions sont à choix du preneur.
N'hésitez pas à nous contacter pour davantage d'informations.






