Maison 6.5 pièces à Plan-Conthey - Lumineuse, au style européen, quartier calme
Pièces6.5
Surface habitable214 m²
Prix de l'objetCHF 875'000.-
DisponibilitéA convenir
Localisation
1964 ContheyCaractéristiques
Référence
CISA/CALOZ
Disponibilité
A convenir
Année de construction
1981
Dernières rénovations
2011
Pièces
6.5
Nombre de niveaux du bien
4
Surface terrain
197 m²
Surface habitable
214 m²
Surface utile
225 m²
Descriptif
Année de construction / rénovation : 1981 / 2011
Surface terrain / Surface utile : 197 m² / 225 m²
Parking : 1 place intérieure + 1 extérieure
Située dans le paisible quartier résidentiel de Plan-Conthey, cette magnifique maison mitoyenne au style européen combine grands volumes, luminosité optimale et cadre de vie familial à proximité immédiate des écoles et commodités.
Agencement des pièces
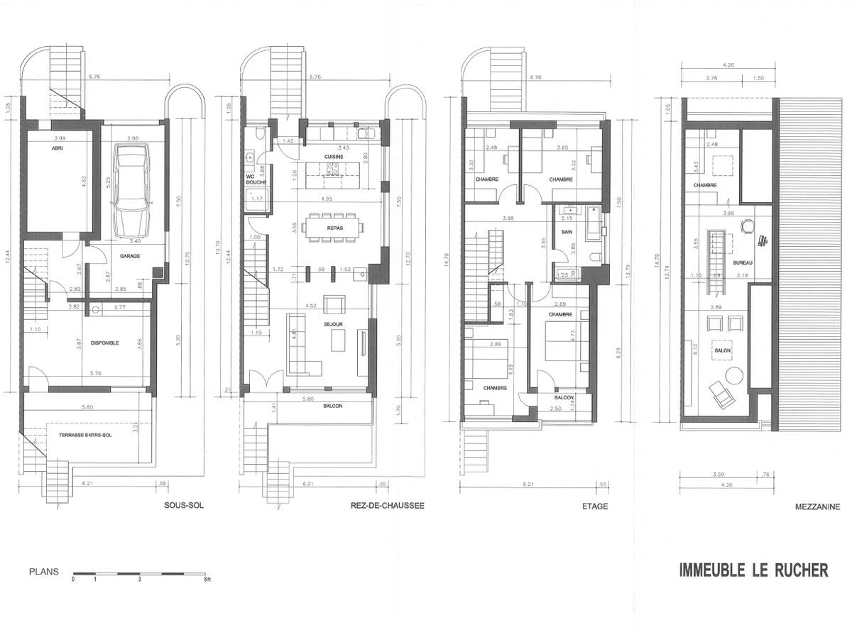
Sous-sol :
- Bureau 26,5 m²
- Abri PC 13,8 m²
- Garage avec zone technique 23,5 m²
- Terrasse 18,98 m²
Rez-de-chaussée :
- Séjour lumineux de 65 m² avec cuisine ouverte moderne et entièrement équipée
- Salle d'eau / WC 4,5 m²
- Balcon/terrasse 8,18 m²
1er étage :
- 4 chambres (15 + 12,15 + 11,7 + 7,2 m²)
- Salle de bain / WC 7 m²
- Balcon privatif 3,1 m²
2ème étage :
- Sous-toit 38,65 m²
Points forts du bien
- Grand séjour avec poêle suédois et balcon/terrasse plein Sud
- Cuisine ouverte spacieuse et entièrement équipée
- Abri PC fonctionnel
- Quartier résidentiel très calme
- Production de chaleur au gaz
Cette maison est idéale pour une famille nombreuse souhaitant profiter d'un environnement calme, lumineux et proche de toutes les commodités de Conthey.
Contactez-nous dès aujourd'hui pour organiser une visite ou obtenir plus d'informations.
Chez nous, vous serez bientôt très bien chez vous.
Surface terrain / Surface utile : 197 m² / 225 m²
Parking : 1 place intérieure + 1 extérieure
Située dans le paisible quartier résidentiel de Plan-Conthey, cette magnifique maison mitoyenne au style européen combine grands volumes, luminosité optimale et cadre de vie familial à proximité immédiate des écoles et commodités.
Agencement des pièces
Sous-sol :
- Bureau 26,5 m²
- Abri PC 13,8 m²
- Garage avec zone technique 23,5 m²
- Terrasse 18,98 m²
Rez-de-chaussée :
- Séjour lumineux de 65 m² avec cuisine ouverte moderne et entièrement équipée
- Salle d'eau / WC 4,5 m²
- Balcon/terrasse 8,18 m²
1er étage :
- 4 chambres (15 + 12,15 + 11,7 + 7,2 m²)
- Salle de bain / WC 7 m²
- Balcon privatif 3,1 m²
2ème étage :
- Sous-toit 38,65 m²
Points forts du bien
- Grand séjour avec poêle suédois et balcon/terrasse plein Sud
- Cuisine ouverte spacieuse et entièrement équipée
- Abri PC fonctionnel
- Quartier résidentiel très calme
- Production de chaleur au gaz
Cette maison est idéale pour une famille nombreuse souhaitant profiter d'un environnement calme, lumineux et proche de toutes les commodités de Conthey.
Contactez-nous dès aujourd'hui pour organiser une visite ou obtenir plus d'informations.
Chez nous, vous serez bientôt très bien chez vous.
Commodités
Extérieur
- Garage
- En pignon
Vue
- Panoramique












