Spacieuse maison familiale au coeur du village de Vallamand
Localisation
Place du Village 4, 1586 VallamandCaractéristiques
Nombre de places de parc
Descriptif
Cette charmante maison familial grandement rénovée est prête à accueillir ses prochains propriétaires.
SES ATOUTS
- grande maison villageoise idéale pour famille
- possibilité de louer une partie
- piscine couverte
Située au centre du village de Vallamand, elle offre la proximité de toutes les commodités et de nombreuses possibilités que nous nous ferons un plaisir de vous présenter.
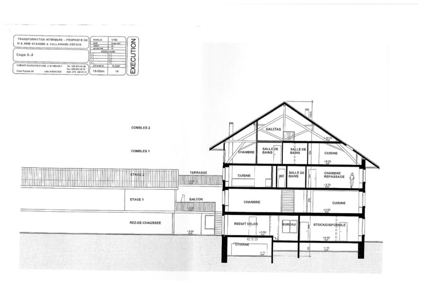
REZ
- Hall d'entrée
- 2 pièces à rénover
- 2 WC
- Salle réception
- Salle magasin à restaurer
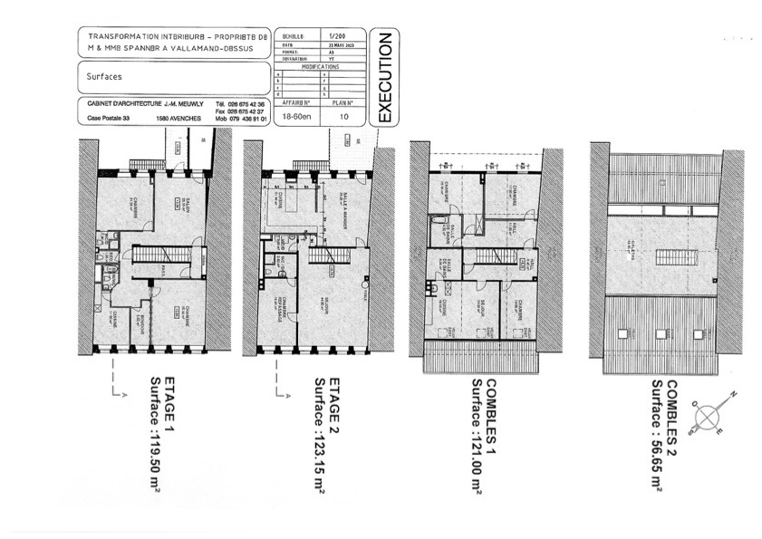
1ER ETAGE
- Grande chambre
- Cuisinette
- Bureau / chambrine
- Sdb (douche, WC et baignoire)
- WC
- Chambre parentale avec sdb (Doucet et WC)
- Salle à manger
- Buanderie /cuisine
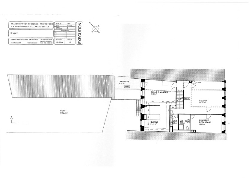
2EME ETAGE
- Chambre parentale avec sdb (baignoire, douche et WC)
- Salon séjour avec poêle
- Salle à manger
- Grande cuisine
- Buanderie
3EME ETAGE
- Cuisine avec séjour
- Chambre
- Sdb (douche et WC)
- Chambre
- Chambre parentale avec sdb (douche et WC)
COMBLES
Espaces de rangement (potentiel d'agrandissement).
AMENAGEMENTS
Piscine intérieure avec espace avec douche pour sauna.
Plusieurs places de parc extérieures disponibles.
Pour plus d'informations ou pour organiser une visite, n’hésitez pas à nous contacter.
Plus de photos sur www.synergimmo.ch
Vous êtes déjà propriétaire et souhaitez coordonner l'achat de cette maison avec la vente de votre domicile actuel ?
N'hésitez pas à nous demander une estimation offerte. Nous vous rencontrons volontiers pour vous orienter dans les bonnes démarches.
Commodités
Environnement
- Village
- Lac
- Commerces
Extérieur
- Parking public
- Parking
Intérieur
- Cave
- Grenier
- Piscine
- Lumineux
- Poutres apparentes
- Avec cachet
Etat
- Bon
- A transformer
Exposition
- Sud
- Est
Ensoleillement
- Toute la journée
Vue
- Lac
Style
- Demeure atypique
- Maison de caractère























