Résidence du Verger - Maison d’architecte - Dernier lot
Localisation
1618 Châtel-St-DenisCaractéristiques
Descriptif
À Remaufens - 1 minute de Châtel-Saint-Denis
Découvrez cette superbe opportunité au cœur de Remaufens : une villa contemporaine pensée pour offrir confort, luminosité et qualité de vie, tout en vous laissant la liberté de choisir vos finitions grâce à des budgets conséquents déjà inclus.
Conçue par JORIS PASQUIER Architectes, un grand cabinet d’architecture basé à Bulle, cette maison se distingue par l’excellence de sa conception : volumes optimisés, espaces baignés de lumière, matériaux de qualité et lignes élégantes.
De magnifiques volumes, avec par exemple une hauteur sous plafond de 3,55 mètres au premier étage, offrant à vous et à vos enfants une agréable sensation d’espace et de liberté.
Un emplacement idéal
Située à proximité immédiate de toutes les commodités (écoles, commerces, transports), vous profitez d’un cadre paisible tout en restant proche des centres urbains de Châtel-St-Denis, Vevey et Lausanne.
École primaire à 450 mètres et secondaire à proximité.
Surface intérieure : 167 m2
Surface jardin : 353 m2
Un intérieur à votre image
- Pour personnaliser vos sols, cuisine, salles de bains et autres finitions selon vos goûts
- Pièces de vie spacieuses avec grandes baies vitrées laissant entrer un maximum de lumière
- Agencement moderne et fonctionnel pour le quotidien
Répartition des espaces par étage
Rez-de-chaussée
- Spacieux séjour et salle à manger avec grandes baies vitrées
- 1 bureau ou une chambre
- Cuisine ouverte, moderne et conviviale
- Salle d’eau avec douche et WC
- Réduit et espace de rangements
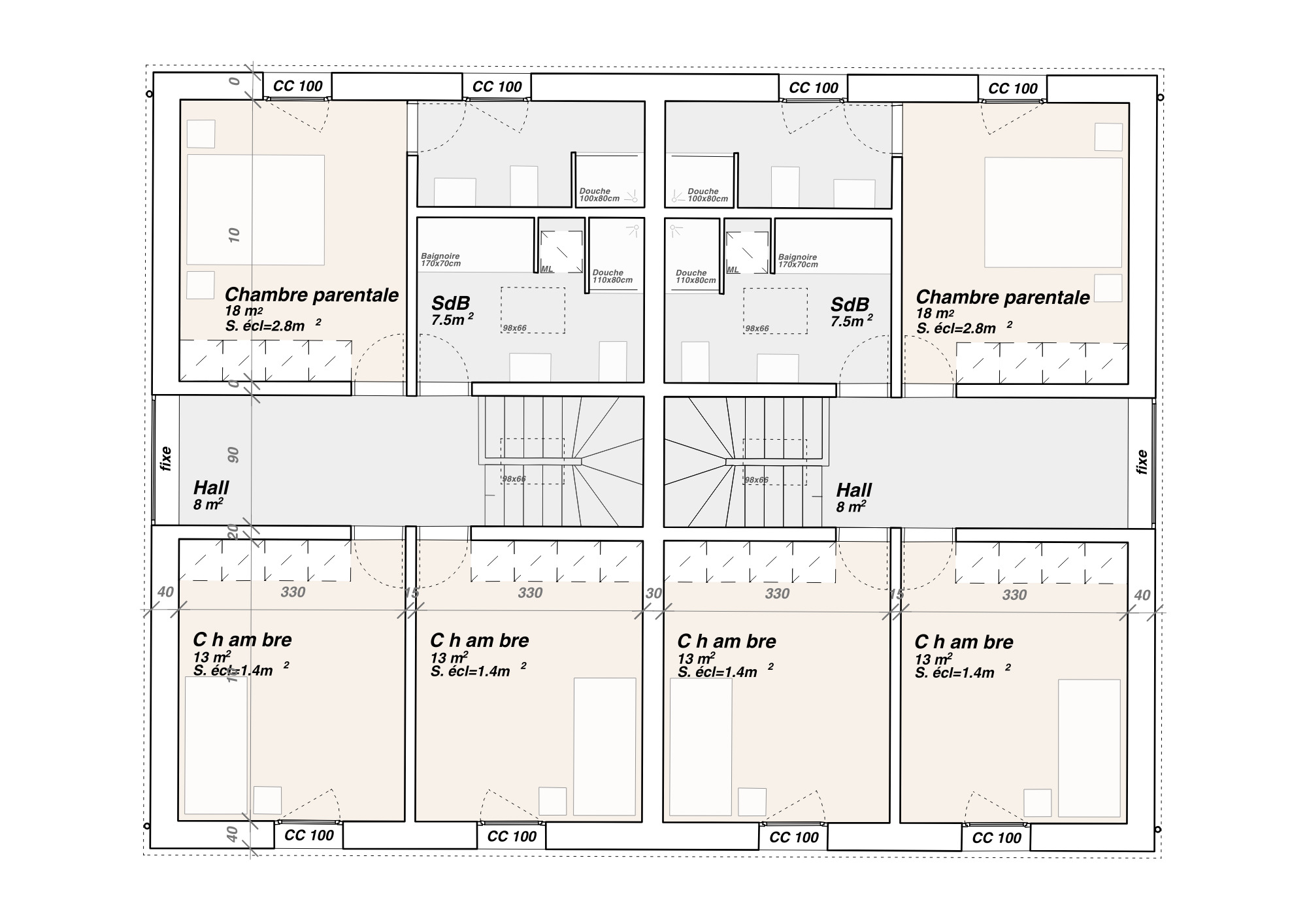
Étage
- 2 grandes chambres lumineuses
- 1 salle de bain centrale avec baignoire, douche, double vasques et WC
- 1 Suite parentale de plus de 20m2 : véritable espace privé comprenant une grande chambre, un dressing et une salle de bain attenante avec douche à l’italienne, double vasques et WC
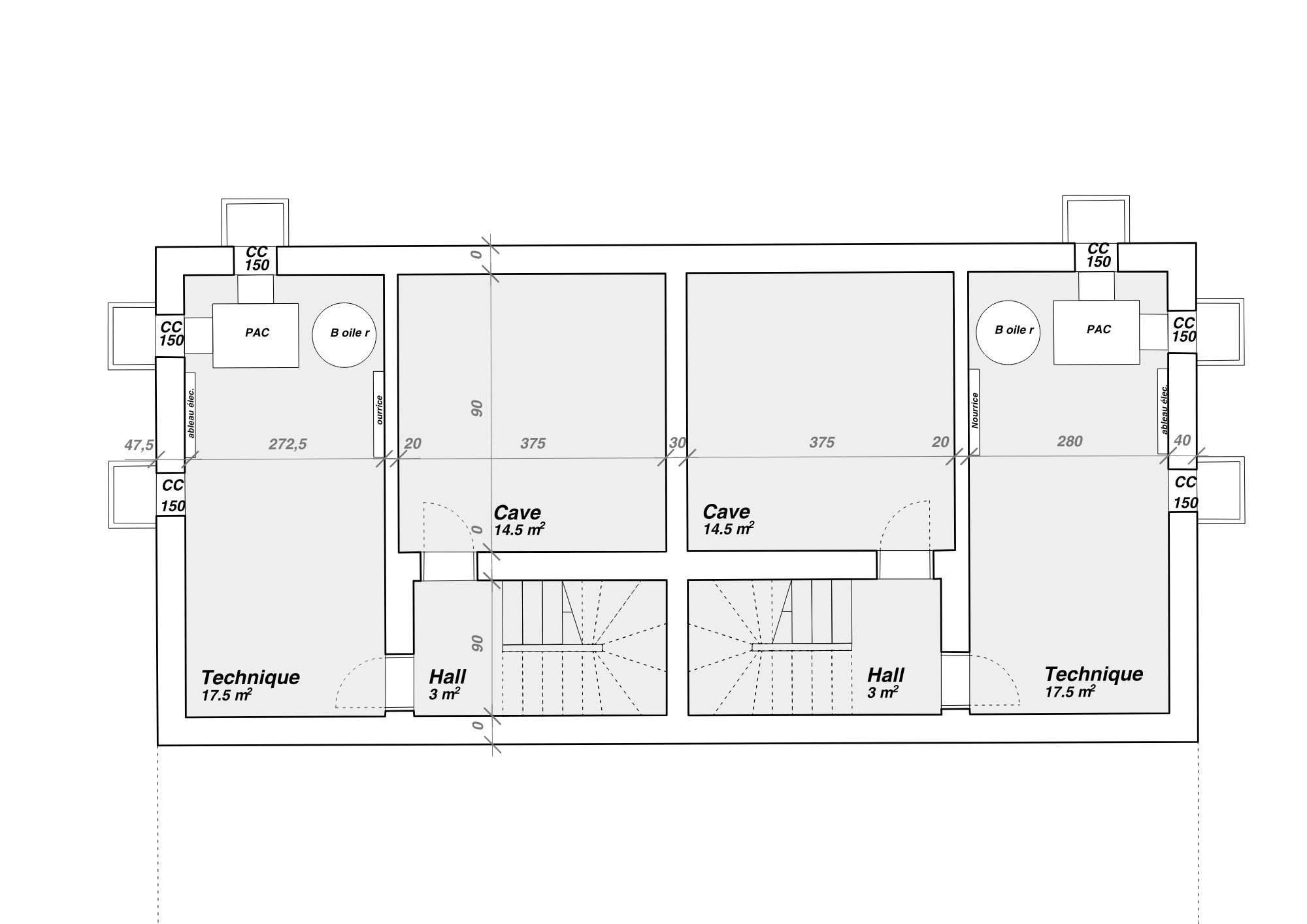
Sous-sol
- Cave, local technique et grand espace disponible pour buanderie, salle de sport ou atelier
Points forts
- Budget généreux pour personnaliser sols, cuisine, salles de bains et autres finitions
- 3 salles de bains au total pour plus de confort au quotidien
- 4 chambres au total
- Matériaux et main-d’œuvre sélectionnés avec soin pour un rendu haut de gamme et durable
- 2 places de parc en sus.
Qualité et performance énergétique
- Pompe à chaleur et excellente isolation pour un confort en toute saison
- Panneaux solaires photovoltaïques pour réduire vos coûts énergétiques
- Matériaux et main-d’œuvre sélectionnés avec soin pour un rendu haut de gamme et durable
La vente se fait sur plan. Le cabinet d’architectes s’occupe de la construction ce qui vous permet de bénéficier d’un processus sécurisé et d’un suivi complet jusqu’à la remise des clés.
Début des travaux : Début 2026
Contactez-nous dès maintenant pour découvrir le promotion, toutes les options de personnalisation et rencontrer les différents intervenants de votre futur chez vous.
Commodités
Environnement
- Quartier de villas
- Verdoyant
- Montagnes
- Quartier résidentiel
- Commerces
- Rue commerçante
- Banque
- Poste
- Restaurant(s)
- Pharmacie
- Gare
- Arrêt de bus
- Entrée/sortie autoroute
- Enfants bienvenus
- Aire de jeux
- Crèche/garderie
- Ecole maternelle
- Ecole primaire
- Ecole secondaire
- Ecole secondaire II
- Manège
- Piscine publique
- Centre sportif
- Proche d'un golf
- Centre de tennis
- Piste de ski
- Station de ski
- Remontées mécaniques
- Piste ski de fond
- Sentiers de randonnée
- Piste cyclable
- Terrain de football
- Patinoire
- Hôpital / Clinique
- Home médicalisé
- Médecin
Extérieur
- Terrasse(s)
- Jardin
- Clôture
- Parking
- Piscine
- Construit sur un terrain plat
- Barbecue
- Four à pizza
- Cuisine extérieure
- Robot tondeuse
Intérieur
- Accès pour handicapés
Sol
- A choix
Etat
- Neuf
Vue
- Belle vue
- Panoramique







