Maison individuelle ou multifamiliale bien entretenue dans un emplacement central
Pièces8
Surface habitable220 m²
Prix de l'objetCHF 1'000'000.-
DisponibilitéA convenir
Localisation
Weissensteinstrasse 1, 4513 LangendorfCaractéristiques
Référence
c4ae212c-6b86-11f0-9d93-069ae14c7a06
Disponibilité
A convenir
Sanitaire
1
Année de construction
1899
Pièces
8
Type de chauffage
Electrique
Surface terrain
561 m²
Surface habitable
220 m²
Descriptif
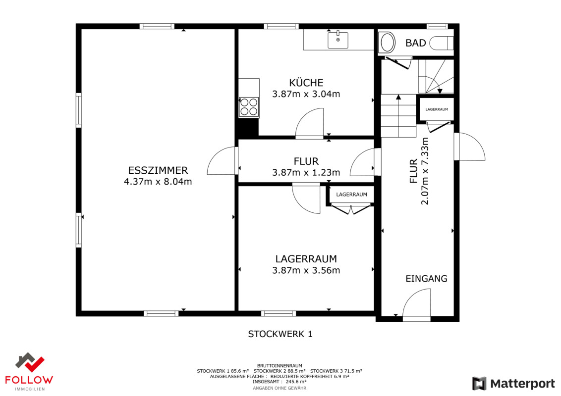
Une propriété suivante avec de nombreux avantages : 8 pièces spacieuses Peut être utilisé comme maison individuelle ou multifamiliale Grand parking et garage Jardin calme bien entretenu Vivre et travailler possible Emplacement résidentiel central De nombreux rêves de vie peuvent être réalisés dans cette maison. Qu’il s’agisse d’une maison en propriété, d’une maison multigénérationnelle, d’un logement et d’un travail ou d’une combinaison de ceux-ci ; Avec cette propriété, vous avez toutes les options à tout moment. Il n’y a pas de besoin urgent de rénovation. Bienvenue dans votre nouvelle maison - une maison qui offre non seulement beaucoup d’espace, mais qui dégage également une atmosphère particulière. Cette ancienne maison bifamiliale convainc par ses pièces spacieuses, son jardin idyllique et ses innombrables possibilités d’aménagement individuel. Qu’il s’agisse d’une maison multigénérationnelle, d’une maison individuelle spacieuse ou d’une unité d’habitation séparée à louer, les rêves de vie peuvent être réalisés ici. Dès que vous entrez dans la maison, vous pouvez ressentir le charme particulier de la propriété. Le grand couloir principal relie toutes les zones importantes : de là, vous pouvez accéder à la fois à l’appartement du rez-de-chaussée et au garage et par l’escalier menant aux étages supérieurs et au sous-sol. L’appartement au rez-de-chaussée a une disposition classique avec un couloir, une cuisine séparée, une chambre et un salon et une salle à manger spacieux. Il n’y a actuellement pas de salle de bains dans ce logement. Cette zone est également propice au commerce tranquille. Le deuxième appartement s’étend sur les premier et deuxième étages. Au premier étage, le couloir mène à la cuisine et à une pièce supplémentaire avec une pièce plus petite attenante, idéale pour servir de dressing, de réduction ou de bureau. Le grand salon et la salle à manger forment le cœur de cet étage. De plus, depuis le premier étage, vous avez accès à une terrasse spacieuse où vous pourrez profiter des heures ensoleillées. D’autres pièces vous attendent au deuxième étage : une antichambre, une salle de bains et un total de trois autres pièces offrent suffisamment d’espace pour une famille ou des utilisations créatives. Un détail pratique supplémentaire sont les deux petites toilettes pour les invités, qui sont situées entre le rez-de-chaussée et le premier étage et entre le premier et le deuxième étage. Ceux-ci offrent un confort supplémentaire et facilitent l’utilisation de la maison, en particulier pour les familles ou les invités. Un point culminant absolu est le jardin de rêve, qui attire immédiatement l’attention par son design affectueux. De grands palmiers, des parterres de fleurs luxuriants et un étang pittoresque créent une oasis accueillante qui invite à s’attarder. Ici, vous pouvez profiter pleinement de la nature - que ce soit sur le coin salon couvert ou dans un espace ouvert parfait pour les soirées d’été agréables. L’emplacement de la propriété est également convaincant sur toute la ligne. Toutes les commodités de la vie quotidienne sont à proximité immédiate. Les magasins, les banques, les restaurants et les installations de loisirs sont facilement accessibles à pied. De plus, la connexion aux transports en commun est excellente - les arrêts de bus et les gares ne sont qu’à quelques minutes, de sorte que les navetteurs trouveront également un quartier résidentiel idéal ici. La maison est dans un état bien entretenu et a été régulièrement rénovée au fil des ans et, par exemple, équipée de fenêtres insonorisées. Néanmoins, il y a un certain besoin de modernisation, notamment en ce qui concerne le système de chauffage, qui est actuellement exploité par des poêles électriques à accumulation. Cette propriété offre une base merveilleuse pour les personnes qui souhaitent créer une maison individuelle avec beaucoup d’espace et de charme. Laissez-vous inspirer par cette maison unique et découvrez les possibilités qu’elle vous offre. Planifiez une visite dès aujourd’hui - cette maison attend d’être remplie d’une nouvelle vie !
Commodités
Extérieur
- Balcon(s)
- Parking
- Garage

























