Bungalow lumineux avec 318 m² d’espace de vie, terrasse ensoleillée et cheminée à Büsingen
Localisation
Siedlerstrasse, 8238 BüsingenCaractéristiques
Descriptif
Bungalow exclusif avec vue panoramique et potentiel à Büsingen am Hochrhein
Bienvenue dans votre nouveau foyer, situé dans un quartier privilégié de Büsingen – une opportunité rare pour les acheteurs exigeants!
Points forts en un coup d’œil
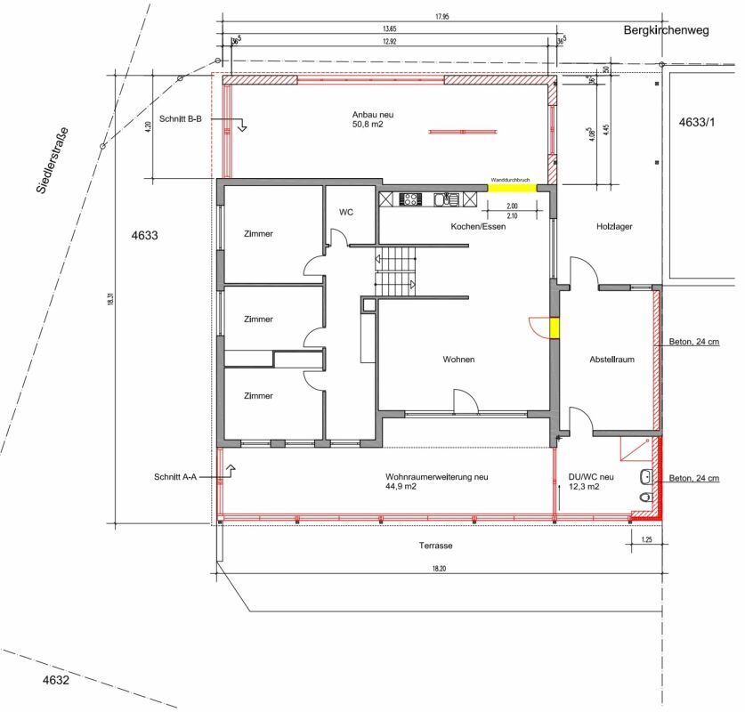
- Bungalow spacieux d’environ 315 m² de surface habitable – accessible aux personnes à mobilité réduite et confortable.
- Grande terrasse ensoleillée avec espace pour une cuisine extérieure et un salon – idéale pour passer des moments conviviaux à l’extérieur.
- Salon ouvert avec cheminée – ambiance élégante pour les plus grandes exigences.
- 6 places de parking (garages et places de parking extérieures) – possibilité de stationner confortablement directement devant la maison.
- Situation fiscale attrayante grâce à la situation frontalière particulière de Büsingen – bénéficiez de taux d’imposition allemands attrayants et de la qualité de vie suisse.
Description du bien
Cette maison individuelle exceptionnelle a été construite en 1971/72 et a été rénovée de manière si complète entre 2012 et 2019 qu’elle a été attestée en 2019 comme année de construction par un rapport d’expertise. La propriété est située au calme, en bordure du village, directement à la limite de construction avec une vue dégagée sur les champs et les forêts. L’architecture ouverte et les pièces spacieuses et partiellement surélevées offrent de nombreuses possibilités d’utilisation – parfaites pour les individualistes, les couples ou les familles qui apprécient une grande surface habitable ouverte sur un étage ainsi que la terrasse ensoleillée.
La propriété se caractérise par les points suivants:
- Situation privilégiée et calme dans le quartier nord de Siedlerstrasse.
- Grande attractivité grâce à l’intégration rurale et à l’orientation sud-ouest.
- Aménagement lumineux et concept d’utilisation axé sur la consommation.
- Qualité de construction solide et durabilité des matériaux, bon état de la structure et entretien très soigné
- Aménagements intérieurs de très haute qualité
Etage de vie:
- Salon et salle à manger spacieux et lumineux avec cuisine de haute qualité.
- Deux chambres spacieuses, idéales comme chambres à coucher et dressing.
- Salle de bains en suite avec grande douche.
- Fenêtres en hauteur avec stores et équipement de sécurité.
Terrasse:
Grande terrasse ensoleillée avec beaucoup d’espace pour une cuisine extérieure, un salon et des soirées conviviales.
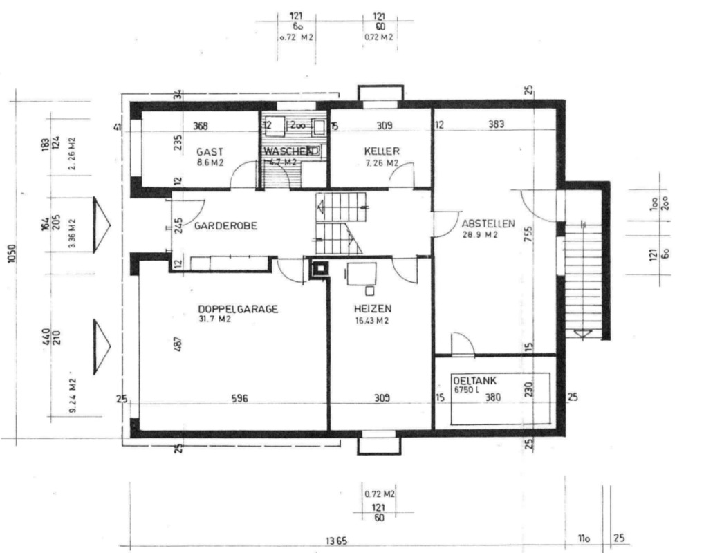
Etage d’accès et entrée de la maison:
- Garage avec accès direct à la zone de vie, nombreux emplacements de stationnement extérieurs.
- Chambre d’hôtes avec salle de bains privative.
- Pièces annexes pratiques: espace de rangement, buanderie, chauffage, cave à provisions.
Etage supérieur:
- Chambre à coucher de style loft, extra-grande, avec salle de bains privative et baignoire, pouvant être divisée en deux à trois chambres en option
- Couloir avec placard de rangement spacieux.
Votre nouveau foyer – idéal pour les amoureux de la nature, les amateurs de gastronomie et tous ceux qui recherchent l’exceptionnel
Venez découvrir ce bungalow exclusif à Büsingen am Hochrhein.
Deux expertises indépendantes et actuelles, documentant l’état et la valeur de cette propriété unique, peuvent être consultées lors d’une visite.
Pour plus d’informations ou pour un rendez-vous de visite, n’hésitez pas à contacter Ingo Grünig de FREITAG IMMO.
Commodités
Environnement
- Enfants bienvenus
Extérieur
- Silencieux/tranquille
- Parking
Intérieur
- Cheminée décorative
- Animaux bienvenus
Equipement
- Téléréseau
- Terrain équipé
Etat
- Comme neuf
Ensoleillement
- Optimal
























