Maison villageoise à rénover, 10 pièces + locaux commerciaux, 400 m2
Localisation
Basse-Nendaz village, 1996 Basse-NendazCaractéristiques
Nombre de places de parc
Descriptif
À rénover, grande maison villageoise traditionnelle ayant beaucoup de charme comprenant 2 spacieux appartements de 5 pièces, des locaux commerciaux au rez-de-chaussée, de belles caves en pierres et des combles avec fenêtres.
Logement accessible en tant que résidence secondaire pour vos vacances
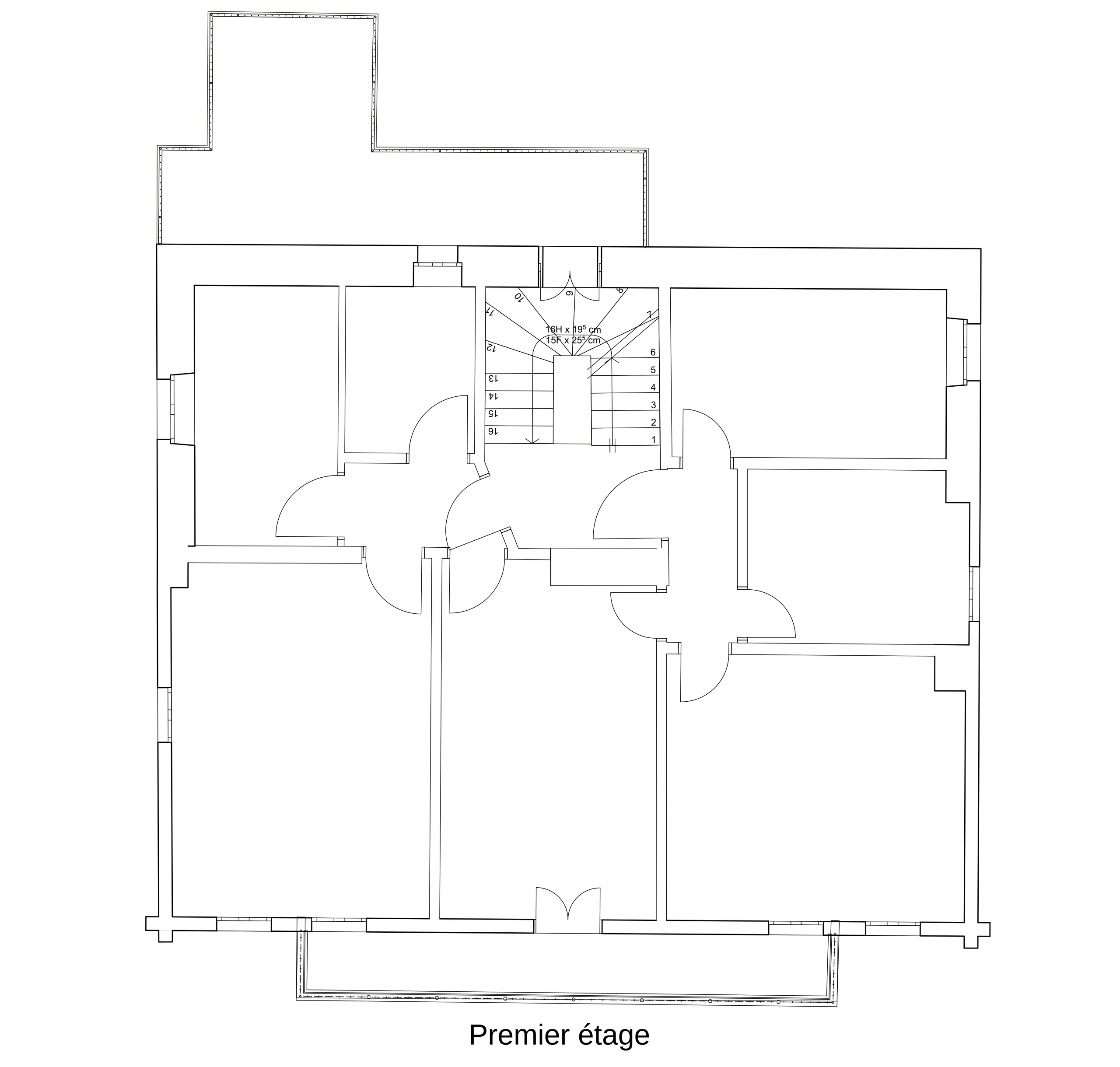
Maison villageoise sur 3 étages :
Surface :
- Surface habitable pondérée du bâtiment principal d'environ 400 m2
- Surface au sol de la grange d'environ 45 m2
- Rez-de-chaussée, 1er et 2e étage : 372 m2
- Sous-sols et locaux techniques : 124 m2
- Combles : 124 m2
- Balcons : 16 m2
- Terrasse : 22 m2
- Local citerne : 7 m2
Rez-de-chaussée :
- Entrée
- 2 locaux commerciaux avec entrée indépendante sur la route principale
- 2 locaux chauffage
- 1 local à citernes
Rez-de-chaussée supérieur :
- Terrasse nord-est accessible depuis la cage d’escaliers
Appartement du 1er étage :
- Séjour, fenêtres sud-ouest et fenêtre nord-ouest, fourneau
- Cuisine séparée sud-est
- Ancienne cuisine nord-ouest
- 1 chambre, balcon sud-ouest
- 1 chambre, fenêtres sud-ouest
- 1 chambre, fenêtre sud-est
- Salle de bains (douche, WC, lavabo), fenêtre nord-est
Appartement du 2e étage :
- Spacieux séjour, balcon sud-ouest et fenêtre nord-ouest, parquet
- Cuisine séparée, fenêtre nord-ouest
- 1 chambre, balcon sud-ouest
- 1 grande chambre, balcon sud-ouest
- 1 grande chambre avec lavabo, fenêtre nord-est
- 1 chambre, fenêtre sud-est
- Salle de bains (baignoire, WC, lavabo), fenêtre nord-est
Combles :
- 1 pièce avec fenêtre
- 1 pièce avec 2 fenêtres
- 1 pièce avec fenêtre
- 2 pièces
Sous-sol :
- 3 caves voûtées en pierres
- 1 petite cave
Extérieurs :
- Terrasse nord-est accessible depuis la cage d’escaliers
- Balcons sud-ouest
- Jardin sur la parcelle adjacente
Parking :
- 2 places de parc extérieures
- Parking public gratuit à 80 m
Situation :
- Environnement villageois
- Accès véhicule très aisé toute l’année
- Arrêt CarPostal 80 m et 200 m
- Ecoles enfantines et primaires 500 m
- Ecole secondaire 270 m
- Télécabine 5’800 m
- Terrain de la maison 200 m2
- Terrain de la grange 156 m2
- Zone constructible H80
- Altitude 992 m
Particularités :
- Véritable maison villageoise au charme authentique offrant un grand volume et une bonne distribution des pièces
- Locaux commerciaux avec une superbe visibilité le long de la route principale
- Belle vue et ensoleillement toute l’année
- Beau potentiel de rénovation, pièces spacieuses et lumineuses
- Convient également pour un promoteur ou une entreprise générale
- Possibilité de créer une PPE avec tableaux électriques et installations de chauffages indépendants
- Proche de toutes les commodités, accès des plus faciles
- Chauffage central au mazout (radiateurs) (à rénover)
Rénovations :
- Construit en 1916
- Rénové en 1975
- À rénover entièrement
En complément :
- Possibilité d’acheter la parcelle adjacente comprenant un petit jardin plat et une demi-grange CHF 90’000.-
Vous souhaitez obtenir des précisions, le dossier complet ? Contactez-moi par téléphone ou par E-mail et je vous renseignerai très volontiers. Je me tiens également à votre disposition pour une visite sur place
Basse-Nendaz :
- Le village de Basse-Nendaz, chef-lieu de la commune et de la paroisse de Nendaz, se situe vers 990 m d'altitude, à 5 minutes de Haute-Nendaz et 15 minutes de Sion
- Il est très bien desservi par la ligne de CarPostal Sion-Nendaz et aisément accessible en voiture hiver comme été par une route agréable
- Bien ensoleillé, calme et accueillant, il offre les commodités suivantes : banques, boulangeries, épicerie, cafés, salon de coiffure, école enfantine, primaire et secondaire, église, EMS
- Tous les autres services (médecins, dentiste, pharmacie, supermarchés, boutiques, etc.) se trouvent à Haute-Nendaz
- Les possibilités de balades abondent : bisses, sentiers forestiers, chemins de montagne, Tracouet, barrage de Cleuson, etc.
- Télécabine, pistes de ski et centre sportif à Haute-Nendaz (piscine en plein air, courts de tennis, patinoire)
Commodités
Environnement
- Village
- Montagnes
- Commerces
- Banque
- Arrêt de bus
- Enfants bienvenus
- Ecole maternelle
- Ecole primaire
- Ecole secondaire
- Centre sportif
- Piste de ski
- Remontées mécaniques
- Piste ski de fond
- Sentiers de randonnée
- Médecin
Extérieur
- Balcon(s)
- Terrasse(s)
- Verdure
- Parking public
- Parking
- Construit sur un terrain plat
Intérieur
- Cuisine habitable
- Cave
- Cave à vin
- Grenier
- Non meublé
- Poêle suédois
- Lumineux
Equipement
- Cuisine équipée
- Cuisinière
- Réfrigérateur
- Baignoire
- Téléphone
- Connexion Internet
Sol
- Carrelage
- Parquet
Etat
- A rénover
- A rafraîchir
- Reprise en l'état
Exposition
- Nord
- Sud
- Est
- Ouest
Ensoleillement
- Favorable
- Toute la journée
- Matinal
- En soirée
Vue
- Belle vue
- Montagnes
Style
- Maison de caractère































