Appartement de 2.5 pièces en duplex
Localisation
Rue du Nord 4, 1907 SaxonCaractéristiques
Descriptif
Appartement de 2.5 pièces en duplex
Saxon est une agréable commune située entre Sion et Martigny. L'habitation objet de cette vente se situe dans un environnement calme à proximité de la gare de Saxon.
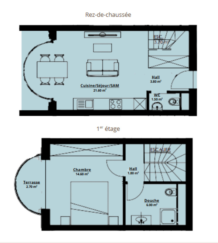
Appartement en duplex, il s'étend sur deux niveaux (rez-de-chaussée-1er étage).
Au rez-de-chaussée, un hall d'entrée et un WC visiteurs, puis s'ouvre sur un espace ouvert regroupant la cuisine, le séjour et la salle à manger, le tout donnant accès à la terrasse avec baie vitrée LUMICENE afin de profiter au maximum du climat doux.
À l'étage, un hall mène à une salle de douche ainsi qu'à une chambre avec balcon.
En annexe, vous bénéficierez d'une cave individuelle et d'une place de parc extérieure.
Caractéristiques :
- Bâtiment en construction
- Construction labelisée MINERGIE
- Baies vitrées LUMICENE
- Triple vitrage
- Finitions soignées
- Adoucisseur d'eau dans l'immeuble
- Pompe à chaleur réversible
- Bornes de recharges pour véhicules électriques
- Foyer de jour à proximité direct et liaison électrique possible
- Proximité du centre du village et de la gare CFF
Commodités
Extérieur
- Balcon(s)
- Silencieux/tranquille
- Parking
Ensoleillement
- Optimal
Vue
- Montagnes







