Mietshaus mit 3 Wohnungen nahe dem Brigerbad
Pièces9
Prix de l'objetCHF 690'000.-
DisponibilitéImmédiatement
Localisation
Mundgasse 3, 3900 BrigerbadCaractéristiques
Référence
e00eefa5-791e-11f0-9d93-069ae14c7a06
Disponibilité
Immédiatement
Année de construction
1989
Dernières rénovations
2023
Pièces
9
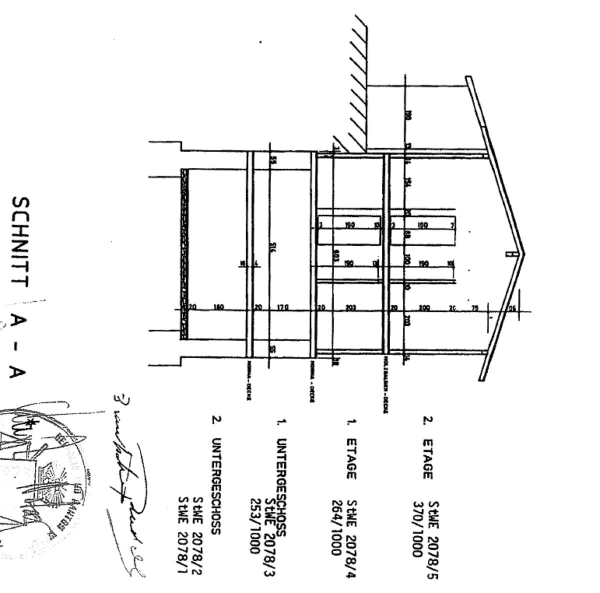
Nombre de niveaux du bien
3
Surface utile
180 m²
Descriptif
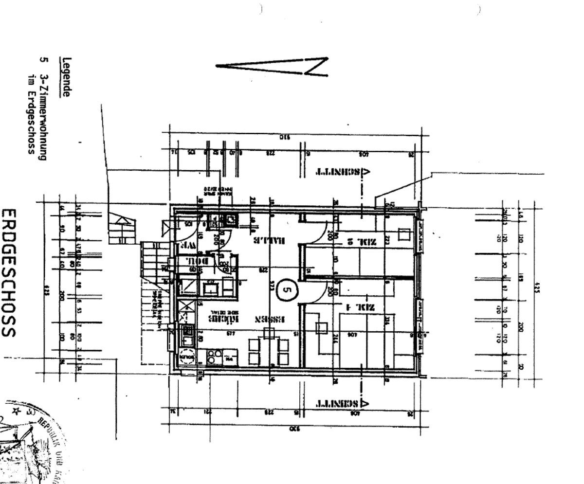
Mehrfamilienhaus in Brigerbad
Das Wohngebäude mit seinen drei 3.5-Zimmerwohnungen liegt im alten Dorf von Brigerbad an sehr idyllischer Lage. Die Bushaltestelle ist nur wenige Meter entfernt. Restaurants und das Brigerbad sind innert 5 Gehminuten zu erreichen.
Die Wohnungen liegen übereinander im EG, im ersten Stock und im Dachgeschoss. Alle Wohnungen verfügen über zwei Schlafzimmer, Badezimmer sowie einen offenen Wohn-/ Essbereich mit Küche. Ebenfalls verfügen zwei Wohnungen über einen kleinen Balkon. Die Badezimmer, Küchen und Böden wurden bereits renoviert.
Ebenfalls zum Gebäude gehören 3 Kellerabteile, sowie ein Abstellplatz für zwei Autos.
Vorteilhafthaft ist die Nähe zur Lonza in Visp. Die Wohnungen lassen sich sehr gut an Firmen und Angestellte der Lonza vermieten. Aus Erfahrung können wir sagen das diese Liegenschaft eine gute Rendite ermöglicht.
Haben wir Ihr Interesse geweckt? Rufen Sie uns an, um einen Besichtigungstermin zu vereinbaren!
Commodités
Environnement
- Enfants bienvenus
Extérieur
- Balcon(s)
- Parking
Intérieur
- Cheminée décorative
Equipement
- Lave-linge
- Sèche-linge




































