Charmante maisonnette de 5.5 pièces avec beaucoup d’espace
Localisation
Dorfstrasse 154, 4623 NeuendorfCaractéristiques
Nombre de places de parc
Descriptif
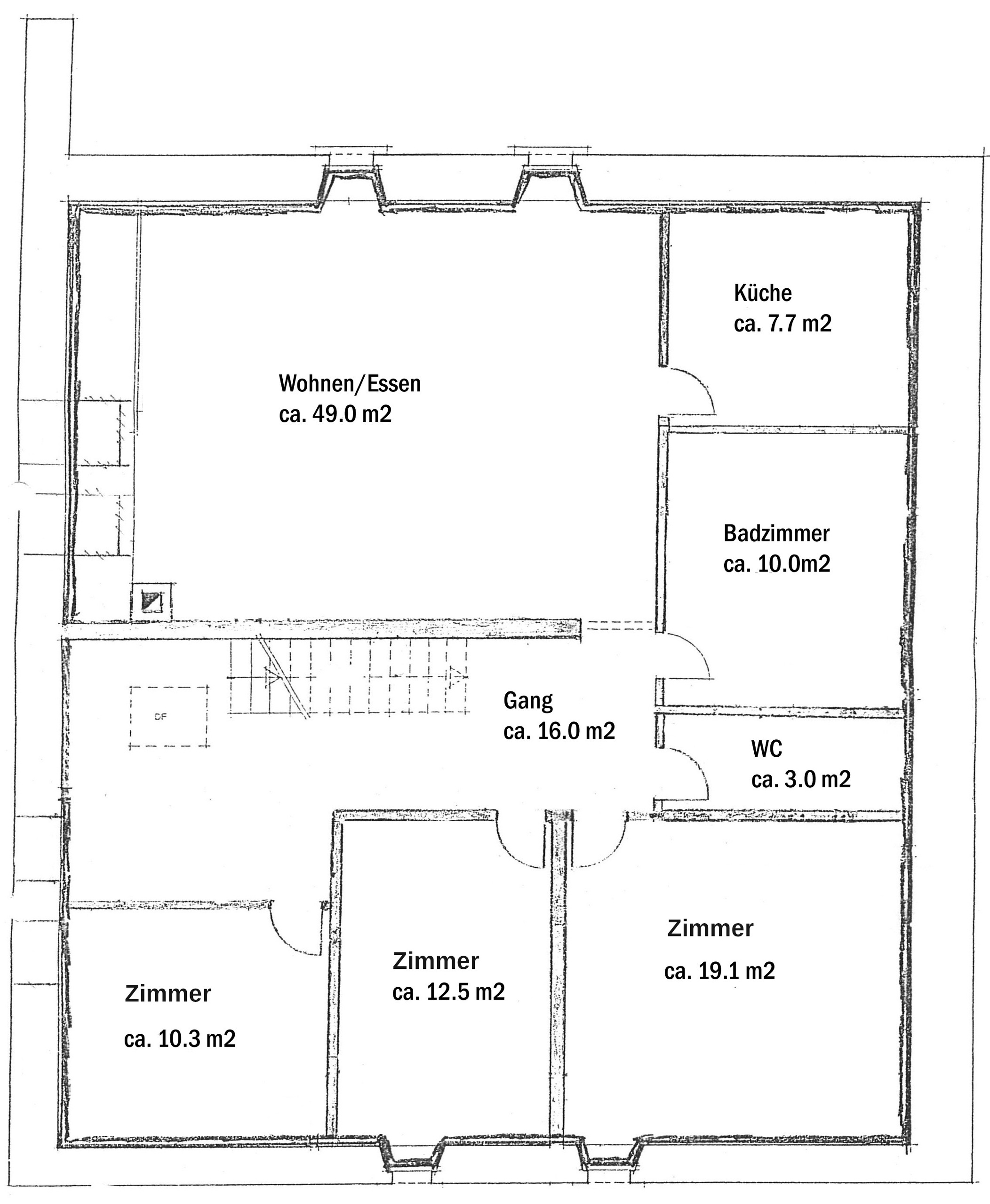
La charmante maison de ville s’étend sur les 2e et 3e étages et offre un espace impressionnant. Un véritable point fort est le chambre mansardée ouverte avec une surface d’environ 70 m² et un accès au balcon orienté au sud. La conception ouverte et les structures de toit visibles créent une atmosphère unique dans l’espace – parfaite pour un studio, un atelier ou un espace de vie représentatif.
Le niveau de finition correspond à la dernière rénovation complète datant de 1994. La propriété est bien entretenue et en bon état, mais elle offre également un espace pour vos propres idées de modernisation ou de conception afin de développer la substance historique de manière contemporaine.
Points forts en un coup d’œil
- Bâtiment historique datant de 1850
- Beaucoup de charme et d’éléments d’origine qui créent une identité
- Grand espace de vie et de rangement au 2e et 3e étage
- Cheminée confortable dans le salon
- Chambre mansardée ouverte avec une surface d’environ 70 m² – utilisable de différentes manières
- Cave avec options de rangement supplémentaires
- Deux places de parking extérieures incluses
Nous serons ravis de vous présenter les avantages de cette offre de logement exceptionnelle lors d’une visite.
>> Utilisez le LIEN pour une visite virtuelle: https://my.matterport.com/show/?m=qDRyxsqYNf3 ou prenez rendez-vous pour une visite sur place dès aujourd’hui.
VOUS DÉSIREZ PLUS D’INFORMATIONS SUR CET OBJET?
Visitez notre site web www.fährhof.ch pour plus de photos, de données et d’informations.
Commodités
Environnement
- Village
- Verdoyant
- Rue commerçante
- Poste
- Restaurant(s)
- Arrêt de bus
- Entrée/sortie autoroute
- Ecole maternelle
- Ecole primaire
- Sentiers de randonnée
Extérieur
- Balcon(s)
- Jardin
- Banc de jardin
- Verdure
- Parking
- Barbecue-cheminée
Intérieur
- Sans ascenseur
- WC séparés
- Cave
- Grenier
- Armoires encastrées
- Cheminée
- Cheminée décorative
- Lumière naturelle
- Poutres apparentes
- Avec cachet
Equipement
- Plaques vitrocéramiques
- Four
- Réfrigérateur
- Lave-vaisselle
- Lave-linge
- Sèche-linge
- Douche
- Baignoire
Sol
- Carrelage
- Moquette
Vue
- Dégagée
- Imprenable
- Vue lointaine
- Champêtre
Style
- Rustique





























