Maisonettewohnung mit sep. Homeoffice: Wg. A3.2
Localisation
Ochsenweg, 9122 MogelsbergCaractéristiques
Descriptif
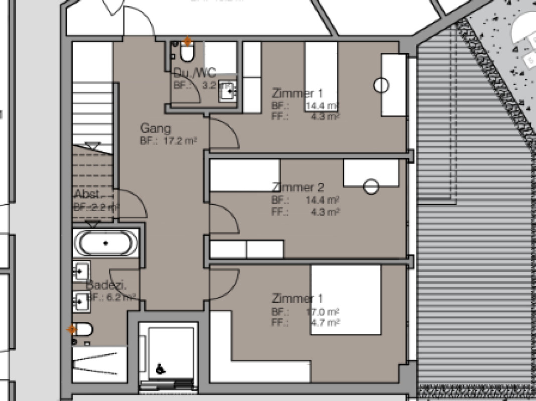
Maisonettewohnung A3.2
Mit der schönen Maisonettewohnung erreichen Sie, neben der Grosszügigkeit, ein Wohngefühl wie im eigenen Haus.
Die Wohnung wird ebenerdig von der Sonnmattstrasse aus erschlossen und hat mit dem internen Abgang eine Erschliessung der Schlaf- und Arbeitszimmer. Der grosse Keller ist von Aussen und von Innen erschlossen. Zwei grosse Terrassen / Sitzplätze laden zum Verweilen ein. Der Keller ist direkt aus der Wohnung zugänglich.
Mit dem Lift erreicht man schwellenfrei und bequem die Tiefgarage.
Mogelsberg- mein goldener Berg!
Mogelsberg ist eine kleines, überschaubares und liebenswertes Dorf. Der Ort liegt auf einem Hochplateau und trohnt über dem Necker. Durch seine Lage ist eine Weitsicht, verbunden mit einer ausgezeichneten Besonnung garantiert.
Viele aktive Vereine laden zur Mitgestaltung ein und die wunderbaren Naturlandschaften laden zum Erholen ein.
Mogelsberg hat einen alten und gepflegten Dorfkern und die Kirche wird seid 200 Jahren paritätisch genutzt.
Ruhige und trotzdem zentrale Lage
Bekanntlich war Mogelsberg früher ein Luftkurort und ist nach wie vor für seinen Erholungswert bekannt.
Unmittelbar angrenzend an den Ortskern von nationaler Bedeutung fügt sich die Überbauung "Sonnmatt" harmonisch und auf die Umgebung abgestimmt in den Westhang ein. Ausgezeichnete Weitsicht und wunderbare Besonnung zeichnen diese Lage aus. Einkaufen kann man direkt im Einkaufzentrum im Erdgeschoss und alle Einrichtungen im Dorf sind in wenigen Gehminuten erreichbar. Der Kindergarten befindet sich in direkter Nachbarschaft und auch die Schule ist in kurzer Distanz erreichbar.
Nachhaltigkeit als Konzept
Neben Funktionalität und Wertigkeit wurde speziell auf Nachhaltigkeit geachtet.
Einige Beispiele:
- Voll-Solardach für eigene Energiegewinnung
- CO2 neutrales Heizsystem mit Anschluss an Fernwärmenetz
- Umweltverträgliche Materialisierung.
- Minergie-Standard
- Raumlüftung mit individueller Anpassung
- Bauweise ausgelegt auf Langlebigkeit und geringe Unterhaltskosten
- Grünflächen für Eigen- und Gemeinsamnutzung
Procap geprüft
Die Wohnüberbauung wurde mit Procap abgestimmt und ist auf Menschen mit Beeinträchtigungen ausgelegt.
Auch dazu einige Beispiele:
- Schwellenfrei
- alle Wohnungen direkt aus Parkgarage/ Eingang mit Lift erschlossen (Teilweise direkt in Wohnung)
- Küchenkonzept auf diese Anforderungen ausgelegt und kann individuell angepasst werden
- Lebensmittelgeschäft im Erdgeschoss
Familienfreundlich
Durch die grosszügigen Grundrisse und Zimmerzahl bis 5.5 sind die schönen Wohnungen ein ideales Zuhause für Familien.
Für Familien ergeben sich weitere Vorteile:
- Kindergarten in Nachbarschaft
- Schulweg ohne gefährliche Verkehrswege
- Vereine für sinnvolle Freizeitgestaltung direkt vor Ort
- Aufwachsen mit Naturverbundenheit und guter, sauberer Luft
Homeoffice oder Eigenes Geschäft
Homeoffice wird in Zukunft immer wichtiger!
Wir haben die Lösung! Einige Wohnungen verfügen über zwei Zugänge, womit ein Raum/Büro direkt vom Aussengang erschlossen wird. Dies hat den Vorteil, dass auch Kunden oder Partner empfangen werden können, ohne lästigen Durchgang durch den Privatbereich.
Commodités
Environnement
- Enfants bienvenus
Extérieur
- Balcon(s)
- Silencieux/tranquille
- Parking
- Garage
Intérieur
- Accès pour handicapés
- Ascenseur
- Animaux bienvenus
Equipement
- Lave-linge
- Sèche-linge
- Téléréseau
- Terrain équipé
Etat
- Neuf
Ensoleillement
- Optimal
Vue
- Montagnes






















































