Les Myosotis
Pièces8
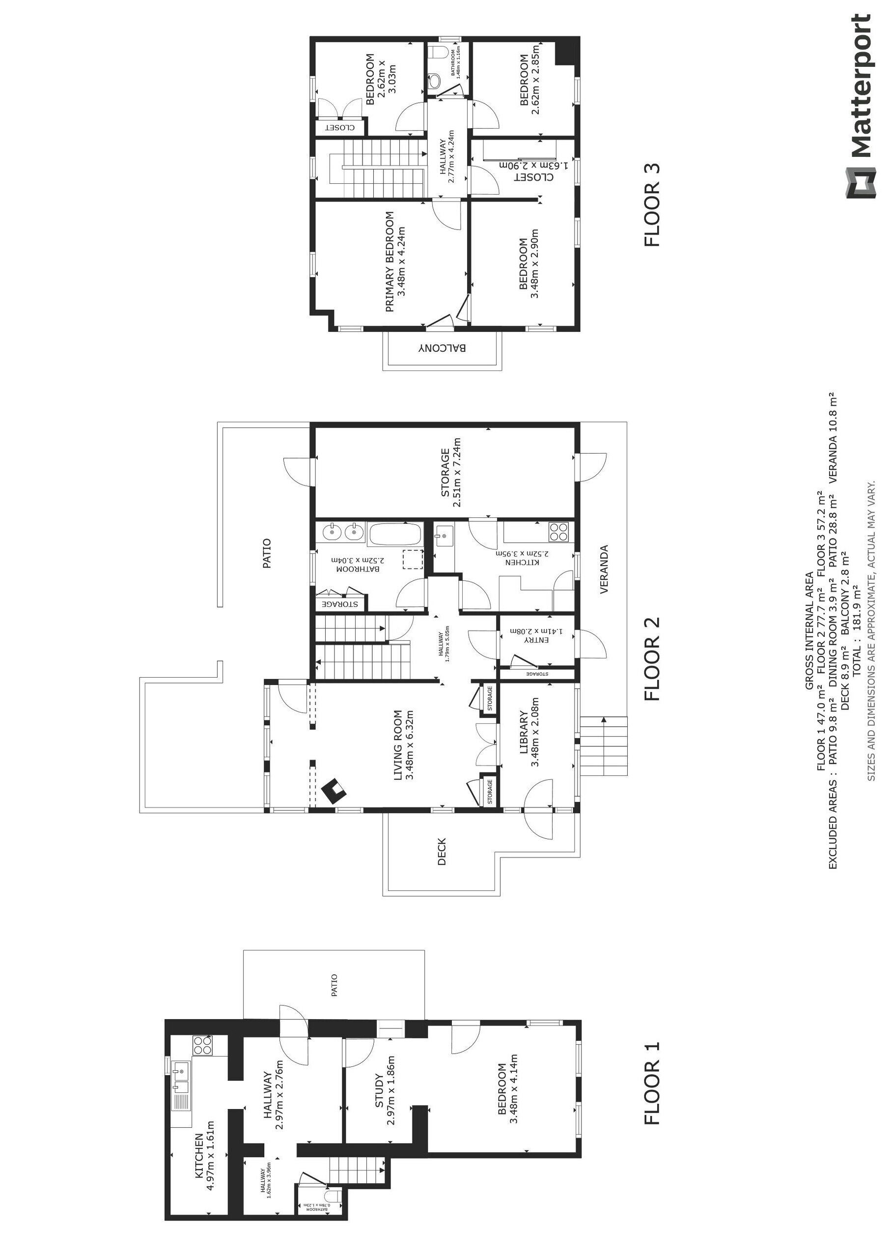
Surface habitable~ 145.2 m²
Prix de l'objetCHF 990'000.-
DisponibilitéImmédiatement
Localisation
Centre de Gryon, 1882 GryonCaractéristiques
Référence
Les Myosotis
Disponibilité
Immédiatement
Résidence secondaire
Autorisé
Vente autorisée aux personnes à l'étranger
Oui
Sanitaires
3
Année de construction
1880
Pièces
8
Chambres
5
Nombre d'étage(s) total
4
Type de chauffage
Mazout
Installations chauffage
Radiateur, Air pulsé, Poêle
Eau chaude sanitaire
Mazout
Etat du bien
À rénover
Standing
Simple
Surface brute de plancher
~ 181.9 m²
Surface terrain
~ 1'462 m²
Surface habitable
~ 145.2 m²
Volume
~ 693 m³
Nombre de WC
3
Places de parc
Oui, obligatoire
Nombre de places de parc
Extérieur
4 | CHF 40'000.- inclus/-e(s)
Descriptif
Spacieux chalet avec beaucoup de cachet situé dans le village de Gryon.
Réparti sur 3 étages, il offre 5 chambres, plusieurs espaces de vie chaleureux et un jardin.
Un bien plein de charme avec un très beau potentiel de rénovation.
Réparti sur 3 étages, il offre 5 chambres, plusieurs espaces de vie chaleureux et un jardin.
Un bien plein de charme avec un très beau potentiel de rénovation.
Commodités
Environnement
- Village
- Verdoyant
- Montagnes
- Commerces
- Enfants bienvenus
- Crèche/garderie
- Ecole primaire
- Ecoles internationales
- Sentiers de randonnée
Extérieur
- Balcon(s)
- Terrasse(s)
- Jardin
- Verdure
- Parking
- Couvert à voiture
Intérieur
- Sans ascenseur
- Cuisine habitable
- WC séparés
- Véranda
- Réduit
- Poêle suédois
- Lumineux
- Avec cachet
Equipement
- Cuisine agencée
- Cuisine équipée
- Baignoire
Sol
- Carrelage
- Parquet
Exposition
- Sud
- Est
Ensoleillement
- Bon
Vue
- Belle vue
- Dégagée
- Montagnes
Distances
Gare
280 m
5'
-
-
Transports publics
120 m
7'
-
-
Autoroute
6.7 km
-
-
20'
Jardin d'enfants
120 m
7'
-
2'
Commerces
210 m
7'
-
2'
Télécabine/skilift
1.25 km
23'
17'
3'
Restaurants
260 m
7'
7'
1'


























