Daphné 02A
Pièces9
Surface habitable~ 182.3 m²
ÉtageRez-de-chaussée
Prix de l'objetCHF 1'399'000.-
DisponibilitéImmédiatement
Localisation
Route des Hôtels 5, 1884 Villars-sur-OllonCaractéristiques
Référence
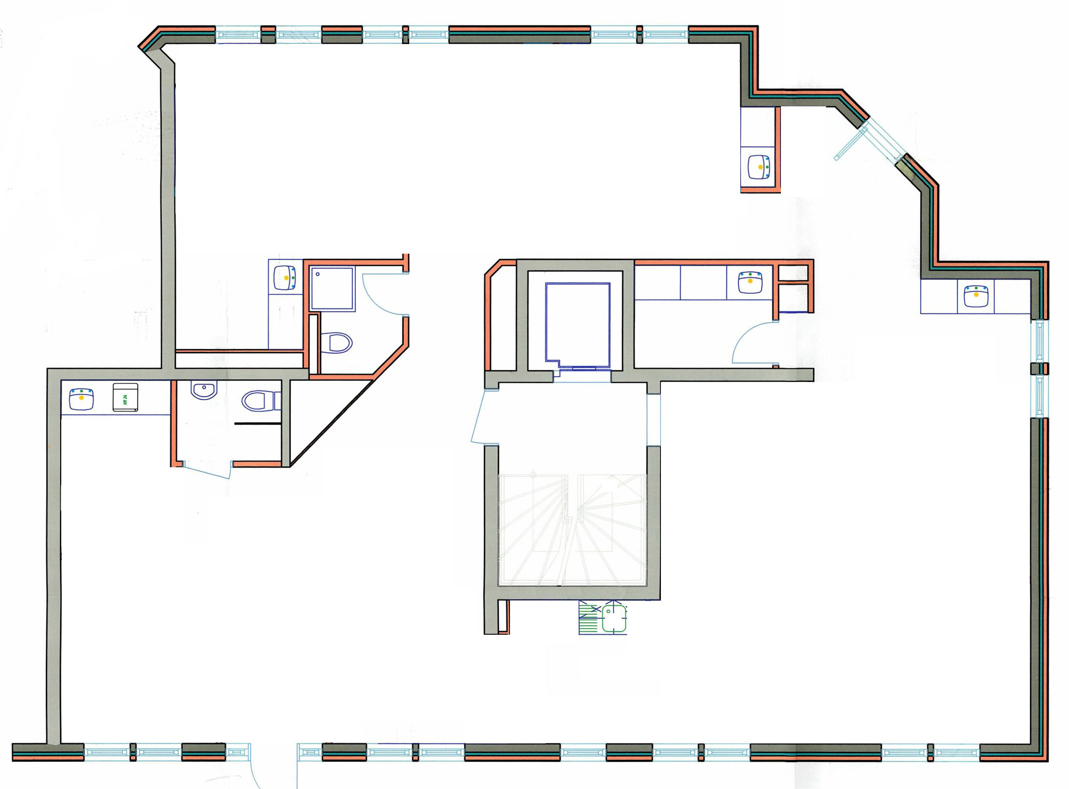
Daphné 02A - Local Commercial/Médical
Disponibilité
Immédiatement
Résidence secondaire
Non autorisé
Vente autorisée aux personnes à l'étranger
Oui
Sanitaires
3
Enveloppe du bâtiment
D
Année de construction
1993
Charges PPE
CHF 11'960.-/an
Balcon
1
Pièces
9
Étage
Rez-de-chaussée
Nombre de niveau du bien
1
Lot
8
Efficacité énergétique
C
Type de chauffage
Gaz
Eau chaude sanitaire
Gaz
Altitude
1'260 m
Standing
Simple
Surface habitable
~ 182.3 m²
Montant du fonds de rénovation
CHF 79'429.- au 31.12.2024
Places de parc
Oui, obligatoire
Nombre de places de parc
Intérieur
1 | CHF 40'000.-
Descriptif
Ancien cabinet dentaire à vendre. Emplacement stratégique pour toute activité commerciale, avec la possibilité de changer l'affectation pour en créer des logements en résidence principale.
Ce local polyvalent offre de nombreuses possibilités d'aménagement et se compose de plusieurs espaces fonctionnels, incluant une zone de réception et d'attente, des salles de consultation, des pièces techniques, ainsi que des installations sanitaires et de rangement. Le local est lumineux, bien agencé et prêt à accueillir votre activité médicale ou paramédicale.
Situé dans un emplacement stratégique, ce bien est une opportunité unique d'acquérir un espace adaptable à de nombreuses spécialités.
Ce local polyvalent offre de nombreuses possibilités d'aménagement et se compose de plusieurs espaces fonctionnels, incluant une zone de réception et d'attente, des salles de consultation, des pièces techniques, ainsi que des installations sanitaires et de rangement. Le local est lumineux, bien agencé et prêt à accueillir votre activité médicale ou paramédicale.
Situé dans un emplacement stratégique, ce bien est une opportunité unique d'acquérir un espace adaptable à de nombreuses spécialités.
Commodités
Environnement
- Village
- Montagnes
- Commerces
- Rue commerçante
- Banque
- Poste
- Restaurant(s)
- Pharmacie
- Gare
- Arrêt de bus
- Ecoles internationales
- Centre sportif
- Piste de ski
- Station de ski
- Remontées mécaniques
- Piste ski de fond
- Sentiers de randonnée
Extérieur
- Parking
- De la route
Intérieur
- Garage
- Cuisine habitable
- WC séparés
- Cave
- Armoires encastrées
- Lumineux
Equipement
- Kitchenette
- Buanderie collective
- Baignoire
- Douche
Sol
- Parquet
- Linoléum
- Moquette
Etat
- Reprise en l'état
Exposition
- Sud
- Est























