Appartement de 5,5 pièces avec vue lac
Pièces5.5
Surface habitable163 m²
Prix de l'objetCHF 1'445'000.-
DisponibilitéA convenir
Localisation
1110 MorgesCaractéristiques
Référence
KI-119-A
Disponibilité
A convenir
Sanitaires
2
Année de construction
2025
Pièces
5.5
Surface habitable
163 m²
Descriptif
Au coeur du charmant village de Reverolle, dans un environnement calme et verdoyant, ce nouveau projet résidentiel intimiste propose uniquement deux logements spacieux, réunis dans une petite copropriété à taille humaine. Le permis de construire est en force, et la livraison est prévue pour fin 2025.
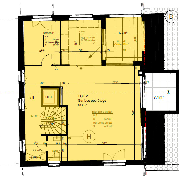
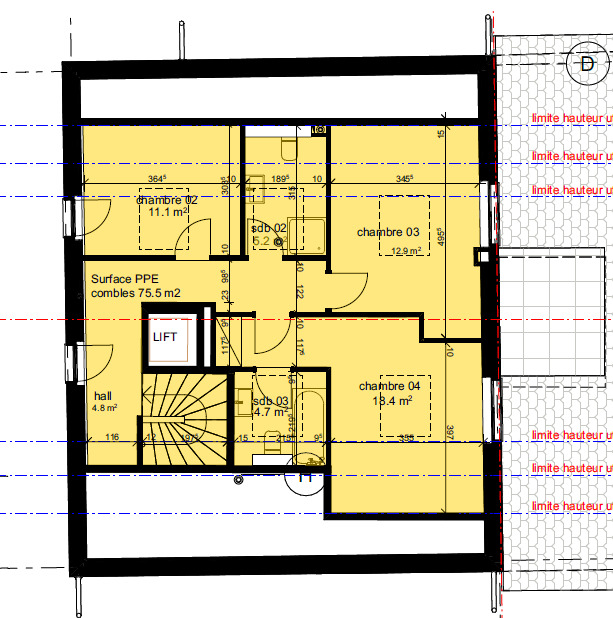
Le lot 2, encore disponible, est un élégant duplex de 5.5 pièces situé au 1er étage, avec la partie nuit aménagée dans les combles. Il offre une surface généreuse de 163 m² habitables. Conçu pour un confort de vie optimal, il séduit par sa distribution harmonieuse, ses volumes baignés de lumière et ses espaces extérieurs – un balcon et une terrasse couverte – qui prolongent naturellement le séjour vers la nature environnante.
Les finitions sont laissées au choix de l'acquéreur, pour une personnalisation complète selon vos envies. La qualité de construction est irréprochable et répond aux normes actuelles en matière de confort thermique et acoustique. Une pompe à chaleur combinée à des panneaux photovoltaïques assure une gestion énergétique performante et durable tout au long de l'année.
Deux places de stationnement, dont une couverte, complètent ce bien. De plus, un crédit de construction est déjà en place auprès de la BCV à Morges, offrant une solution de financement simple et sécurisée pour accompagner votre projet.
Ce bien rare allie modernité, tranquillité et cadre de vie privilégié. Une belle opportunité à saisir pour celles et ceux qui recherchent un lieu de vie durable et élégant, à quelques minutes des commodités.
Ne manquez pas cette opportunité unique : contactez nous pour organiser une visite
Le lot 2, encore disponible, est un élégant duplex de 5.5 pièces situé au 1er étage, avec la partie nuit aménagée dans les combles. Il offre une surface généreuse de 163 m² habitables. Conçu pour un confort de vie optimal, il séduit par sa distribution harmonieuse, ses volumes baignés de lumière et ses espaces extérieurs – un balcon et une terrasse couverte – qui prolongent naturellement le séjour vers la nature environnante.
Les finitions sont laissées au choix de l'acquéreur, pour une personnalisation complète selon vos envies. La qualité de construction est irréprochable et répond aux normes actuelles en matière de confort thermique et acoustique. Une pompe à chaleur combinée à des panneaux photovoltaïques assure une gestion énergétique performante et durable tout au long de l'année.
Deux places de stationnement, dont une couverte, complètent ce bien. De plus, un crédit de construction est déjà en place auprès de la BCV à Morges, offrant une solution de financement simple et sécurisée pour accompagner votre projet.
Ce bien rare allie modernité, tranquillité et cadre de vie privilégié. Une belle opportunité à saisir pour celles et ceux qui recherchent un lieu de vie durable et élégant, à quelques minutes des commodités.
Ne manquez pas cette opportunité unique : contactez nous pour organiser une visite
Commodités
Extérieur
- Balcon(s)
Intérieur
- Ascenseur


