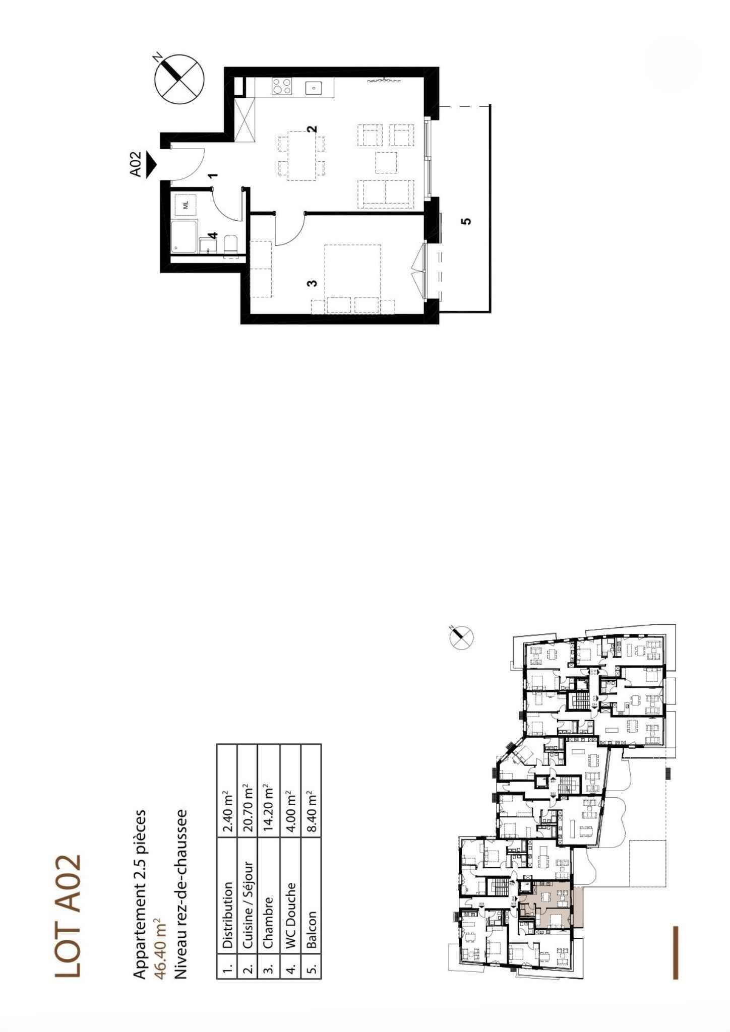
Appartement de 2.5 pièces
Pièces2.5
Surface habitable46 m²
Prix de l'objetCHF 830'000.-
DisponibilitéA convenir
Localisation
Lausanne, 1005 LausanneCaractéristiques
Référence
79368-79368-A02
Disponibilité
A convenir
Année de construction
2026
Pièces
2.5
Surface habitable
46 m²
Descriptif
Appartement de 42.2 m² habitables + balcon de 8.4 m²
Résidence de la Vuachère - Le calme au cur de Lausanne
Nichée dans le quartier paisible et prisé des Mousquines, la Résidence de la Vuachère s'inscrit dans un environnement singulier, à la fois central et abrité. Entre ville et nature, elle offre un équilibre rare : rejoindre aisément les commerces, les transports et les écoles, tout en profitant de la quiétude d'une adresse discrète et verdoyante.
Le permis est en force et le chantier est désormais ouvert marquant la concrétisation d'un projet résidentiel d'exception.
Une conception architecturale pensée dans le détail
Composée de trois bâtiments à l'architecture sobre, élégante et contemporaine, la Résidence s'insère harmonieusement dans un parc arborisé où la nature accompagne l'architecture.
Le projet répond aux normes Minergie, garantissant efficience énergétique et qualité d'exécution : une pompe à chaleur assure la production énergétique, distribuée par chauffage au sol, garantissant un confort optimal et une gestion maîtrisée des ressources. Les matériaux, choisis avec soin, traduisent une volonté d'intégration respectueuse au site et de durabilité.
Un parking souterrain relie les bâtiments et pour offrir un accès direct et sécurisé à chaque logement et faciliter la vie des résidents.
L'aménagement paysager, conçu dans un esprit de continuité naturelle, confère à l'ensemble une atmosphère apaisante et élégante.
Des logements à composer selon ses envies
La Résidence compte trente appartements de 2.5 à 5.5 pièces, chacun prolongé par un balcon, une terrasse généreuse ou un jardin privatif.
Les surfaces, modulables, offrent la possibilité de réunir plusieurs lots afin de créer des volumes, adaptés à toutes les manières d'habiter, du pied à terre raffiné à l'appartement familial spacieux.
Les finitions sélectionnées dans une gamme de matériaux de grande qualité laissent place à la personnalisation. Chaque acquéreur peut ainsi composer un intérieur à son image.
Un cadre de vie entre sérénité et proximité
Accessible par une voie privée, la Résidence de la Vuachère se situe en retrait des circulations, tout en demeurant à quelques minutes du centre-ville lausannois. Le quartier, résidentiel et verdoyant, est animé d'une atmosphère sereine. Une adresse où le rythme de la ville se mêle à la douceur d'un environnement préservé conférant au projet une qualité de vie unique à Lausanne.
Un projet en devenir
La Résidence de la Vuachère propose une nouvelle manière d'habiter Lausanne : un lieu clair, mesuré et ouvert sur la nature, offrant un confort durable au cur de la cité.
Un projet qui allie modernité architecturale, sobriété énergétique et art de vie urbain dans l'un des quartiers les plus convoités de la capitale vaudoise.
Livraison 2027.
www.residencevuachere.ch
Résidence de la Vuachère - Le calme au cur de Lausanne
Nichée dans le quartier paisible et prisé des Mousquines, la Résidence de la Vuachère s'inscrit dans un environnement singulier, à la fois central et abrité. Entre ville et nature, elle offre un équilibre rare : rejoindre aisément les commerces, les transports et les écoles, tout en profitant de la quiétude d'une adresse discrète et verdoyante.
Le permis est en force et le chantier est désormais ouvert marquant la concrétisation d'un projet résidentiel d'exception.
Une conception architecturale pensée dans le détail
Composée de trois bâtiments à l'architecture sobre, élégante et contemporaine, la Résidence s'insère harmonieusement dans un parc arborisé où la nature accompagne l'architecture.
Le projet répond aux normes Minergie, garantissant efficience énergétique et qualité d'exécution : une pompe à chaleur assure la production énergétique, distribuée par chauffage au sol, garantissant un confort optimal et une gestion maîtrisée des ressources. Les matériaux, choisis avec soin, traduisent une volonté d'intégration respectueuse au site et de durabilité.
Un parking souterrain relie les bâtiments et pour offrir un accès direct et sécurisé à chaque logement et faciliter la vie des résidents.
L'aménagement paysager, conçu dans un esprit de continuité naturelle, confère à l'ensemble une atmosphère apaisante et élégante.
Des logements à composer selon ses envies
La Résidence compte trente appartements de 2.5 à 5.5 pièces, chacun prolongé par un balcon, une terrasse généreuse ou un jardin privatif.
Les surfaces, modulables, offrent la possibilité de réunir plusieurs lots afin de créer des volumes, adaptés à toutes les manières d'habiter, du pied à terre raffiné à l'appartement familial spacieux.
Les finitions sélectionnées dans une gamme de matériaux de grande qualité laissent place à la personnalisation. Chaque acquéreur peut ainsi composer un intérieur à son image.
Un cadre de vie entre sérénité et proximité
Accessible par une voie privée, la Résidence de la Vuachère se situe en retrait des circulations, tout en demeurant à quelques minutes du centre-ville lausannois. Le quartier, résidentiel et verdoyant, est animé d'une atmosphère sereine. Une adresse où le rythme de la ville se mêle à la douceur d'un environnement préservé conférant au projet une qualité de vie unique à Lausanne.
Un projet en devenir
La Résidence de la Vuachère propose une nouvelle manière d'habiter Lausanne : un lieu clair, mesuré et ouvert sur la nature, offrant un confort durable au cur de la cité.
Un projet qui allie modernité architecturale, sobriété énergétique et art de vie urbain dans l'un des quartiers les plus convoités de la capitale vaudoise.
Livraison 2027.
www.residencevuachere.ch
Commodités
Extérieur
- Balcon(s)
Intérieur
- Ascenseur












