Spacieux appartement de 6 pièces dans un ancien corps de ferme rénové à Bernex
Pièces6
Surface habitable248 m²
Prix de l'objetCHF 1'950'000.-
DisponibilitéA convenir
Localisation
1233 BernexCaractéristiques
Référence
648
Disponibilité
A convenir
Sanitaires
4
Année de construction
1830
Dernières rénovations
2014
Pièces
6
Nombre de niveaux du bien
4
Surface habitable
248 m²
Descriptif
Situé à Bernex, au lieu-dit « Chèvres », ce magnifique appartement profite d'un cadre résidentiel recherché, alliant calme, verdure et proximité immédiate de Genève.
Cet appartement de charme est niché au sein d'un ancien corps de ferme datant de 1830, entièrement rénové en 2014 et divisé en seulement deux logements sous le régime PPE.
Il profite d'une généreuse surface PPE de 248 m² ainsi que d'un balcon de 7 m² répartis sur quatre niveaux. Ce bien rare séduit par ses volumes, sa luminosité et ses prestations de qualité.
Distribution intérieure :
Rez-inférieur : cuisine moderne ouverte sur un vaste séjour/salle à manger baigné de lumière grâce aux verrières motorisées avec capteurs de pluie, buanderie, réduit et carnotzet actuellement aménagé en chambre à coucher avec salle de bains attenante.
Rez-de-chaussée (niveau de l'entrée) : grand hall d'entrée agrémenté de nombreux placards intégrés, WC visiteurs avec espace rangements ainsi qu'une chambre à coucher avec salle d'eau privative.
Premier étage : superbe suite parentale avec salle de douche complète et accès au balcon orienté Sud-Est.
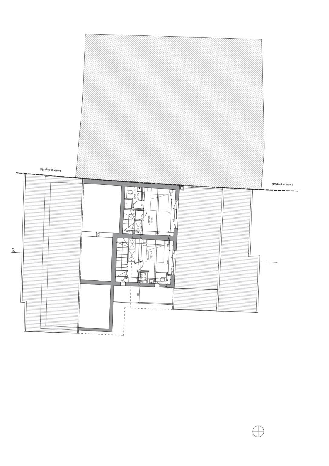
Combles : troisième chambre à coucher avec salle de douche attenante.
À cela s'ajoute une magnifique terrasse prolongée par un jardin joliment arboré et aménagé, offrant une surface totale de 229 m², idéal pour profiter des beaux jours en toute tranquillité.
L'appartement dispose également de 3 places de parking privatives ainsi que de nombreux emplacements visiteurs.
Ce bien rare est une opportunité idéale pour une famille en quête d'espace, de confort et d'authenticité, à seulement quelques minutes du centre de Genève.
A visiter sans tarder
Calculs de pondération :
Sous-sol : 107 m² à 50% → 53,50 m²
Rez-de-chaussée : 61 m² à 100% → 61 m²
1er étage : 55 m² à 100% + balcon de 7 m² à 50% (3,50 m²) → 58,50 m²
Combles : 25 m² à 50% → 12,50 m²
Jardin / terrasse : 229 m² à 10% → 22,90 m²
Total surface pondérée : 208,40 m²
Cet appartement de charme est niché au sein d'un ancien corps de ferme datant de 1830, entièrement rénové en 2014 et divisé en seulement deux logements sous le régime PPE.
Il profite d'une généreuse surface PPE de 248 m² ainsi que d'un balcon de 7 m² répartis sur quatre niveaux. Ce bien rare séduit par ses volumes, sa luminosité et ses prestations de qualité.
Distribution intérieure :
Rez-inférieur : cuisine moderne ouverte sur un vaste séjour/salle à manger baigné de lumière grâce aux verrières motorisées avec capteurs de pluie, buanderie, réduit et carnotzet actuellement aménagé en chambre à coucher avec salle de bains attenante.
Rez-de-chaussée (niveau de l'entrée) : grand hall d'entrée agrémenté de nombreux placards intégrés, WC visiteurs avec espace rangements ainsi qu'une chambre à coucher avec salle d'eau privative.
Premier étage : superbe suite parentale avec salle de douche complète et accès au balcon orienté Sud-Est.
Combles : troisième chambre à coucher avec salle de douche attenante.
À cela s'ajoute une magnifique terrasse prolongée par un jardin joliment arboré et aménagé, offrant une surface totale de 229 m², idéal pour profiter des beaux jours en toute tranquillité.
L'appartement dispose également de 3 places de parking privatives ainsi que de nombreux emplacements visiteurs.
Ce bien rare est une opportunité idéale pour une famille en quête d'espace, de confort et d'authenticité, à seulement quelques minutes du centre de Genève.
A visiter sans tarder
Calculs de pondération :
Sous-sol : 107 m² à 50% → 53,50 m²
Rez-de-chaussée : 61 m² à 100% → 61 m²
1er étage : 55 m² à 100% + balcon de 7 m² à 50% (3,50 m²) → 58,50 m²
Combles : 25 m² à 50% → 12,50 m²
Jardin / terrasse : 229 m² à 10% → 22,90 m²
Total surface pondérée : 208,40 m²















