Produktionsstätte
Preis auf Anfrage
Rebbergstrasse 16, 3953 Varen
Nach Absprache
Wohn- und Gewerbefläche für kreative Unternehmer
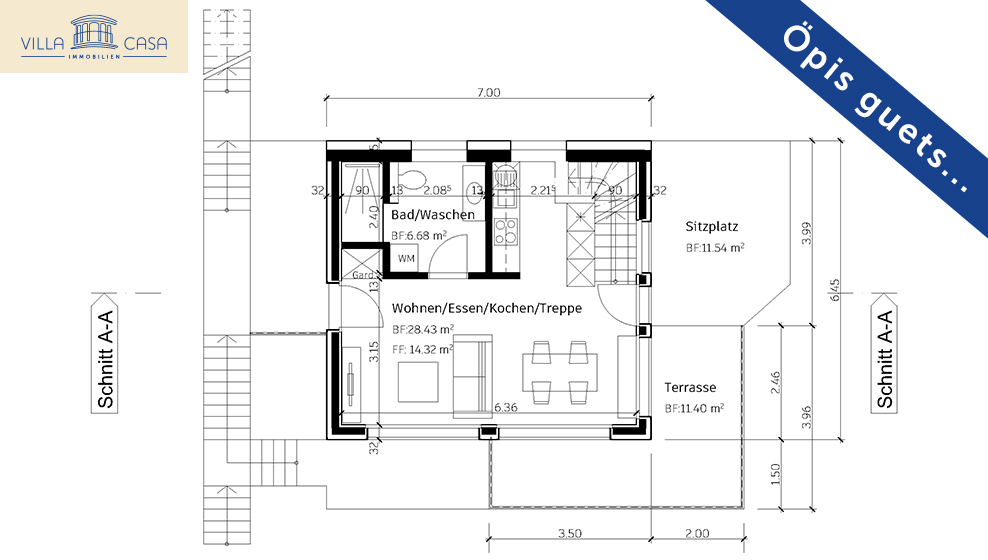
Einzigartige Gelegenheit: Wohn-, Produktions- und Lagerhaus in sonniger, unverbaubarer Lage in Varen, Wallis Willkommen bei dieser außergewöhnlichen Immobilienchance in Varen, Wallis! Dieses vielseitige Wohn-, Produktions- und Lagerhaus bietet Ihnen nicht nur eine idyllische Umgebung in sonniger Lage, sondern auch zahlreiche Möglichkeiten zur Nutzung. Mit einer Wohnfläche von 210 m², einer Gewerbefläche von 377 m² und einer großzügigen Terrasse von 155 m², eröffnen sich Ihnen vielfältige Perspektiven: 1. Wohnhaus für Familien und Genussliebhaber Die großzügige Wohnfläche bietet ausreichend Platz für eine Familie und schafft ein warmes, gemütliches Zuhause. Genießen Sie die sonnigen Tage auf der herrlichen Terrasse und erleben Sie das Walliser Lebensgefühl in vollen Zügen. Das Anwesen bietet einen atemberaubenden Blick auf die umliegende Natur und die Weinberge. 2. Gewerbefläche für kreative Unternehmer Die 377 m² Gewerbefläche können für verschiedene...

































































































